Новый 3-спальный пентхаус в Никосии №196065
Дополнительно:
Описание:
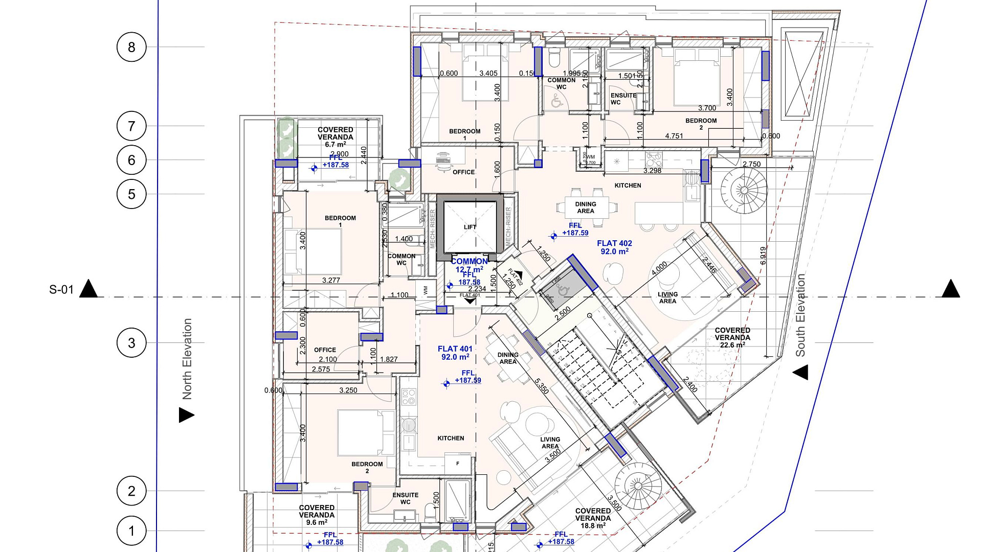
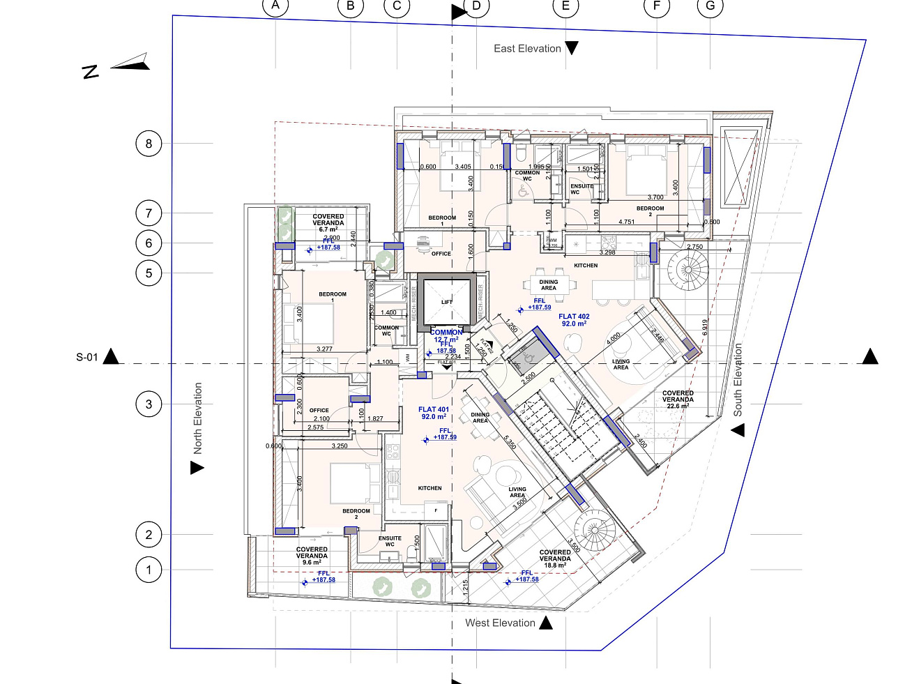
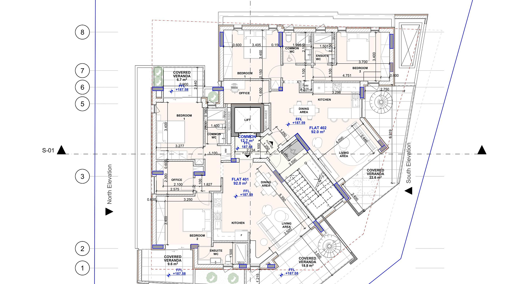
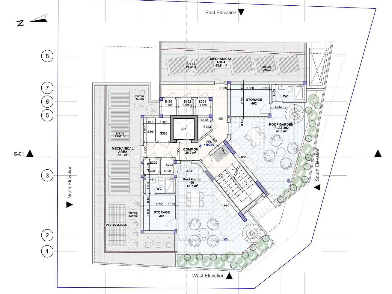
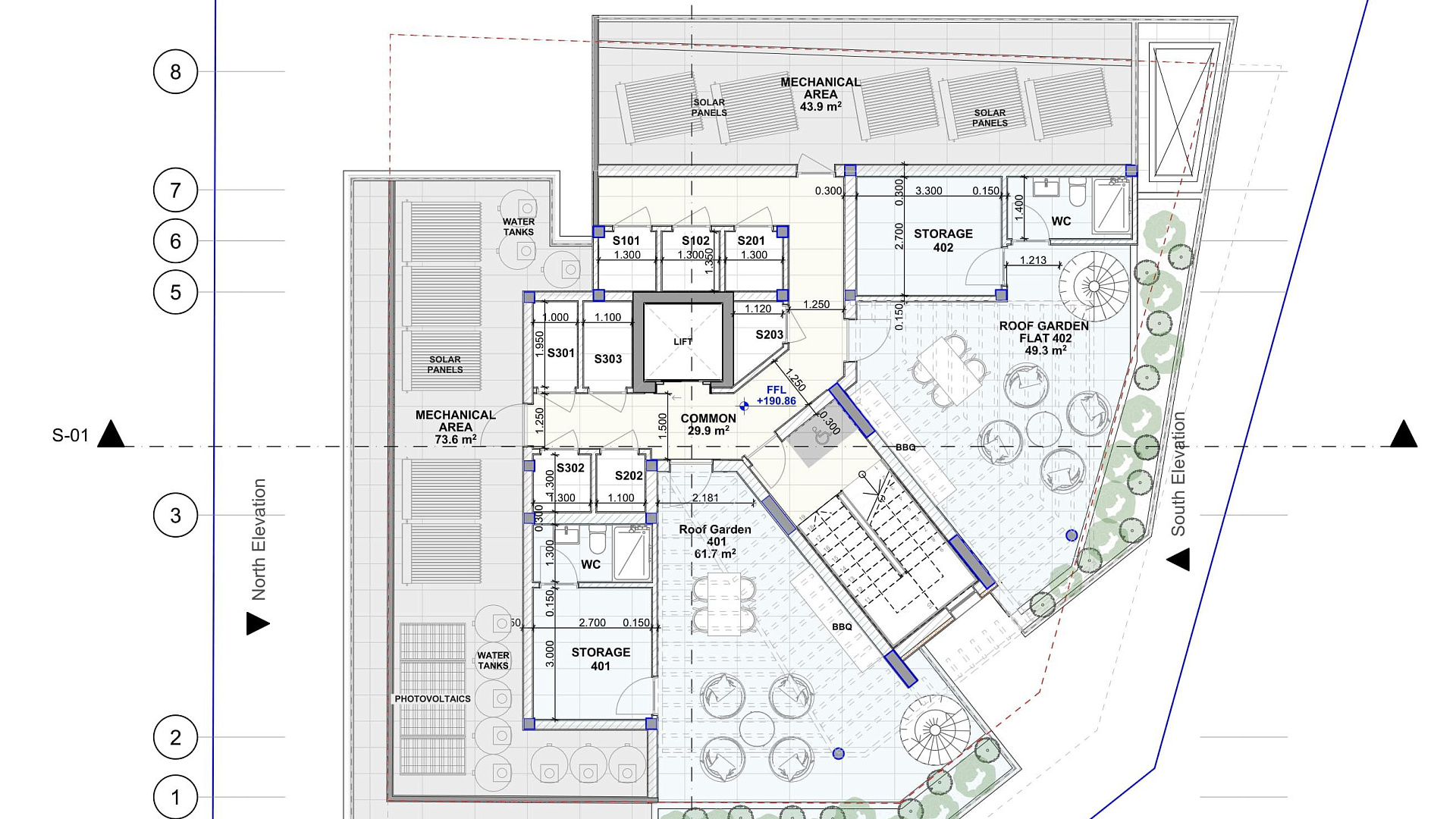
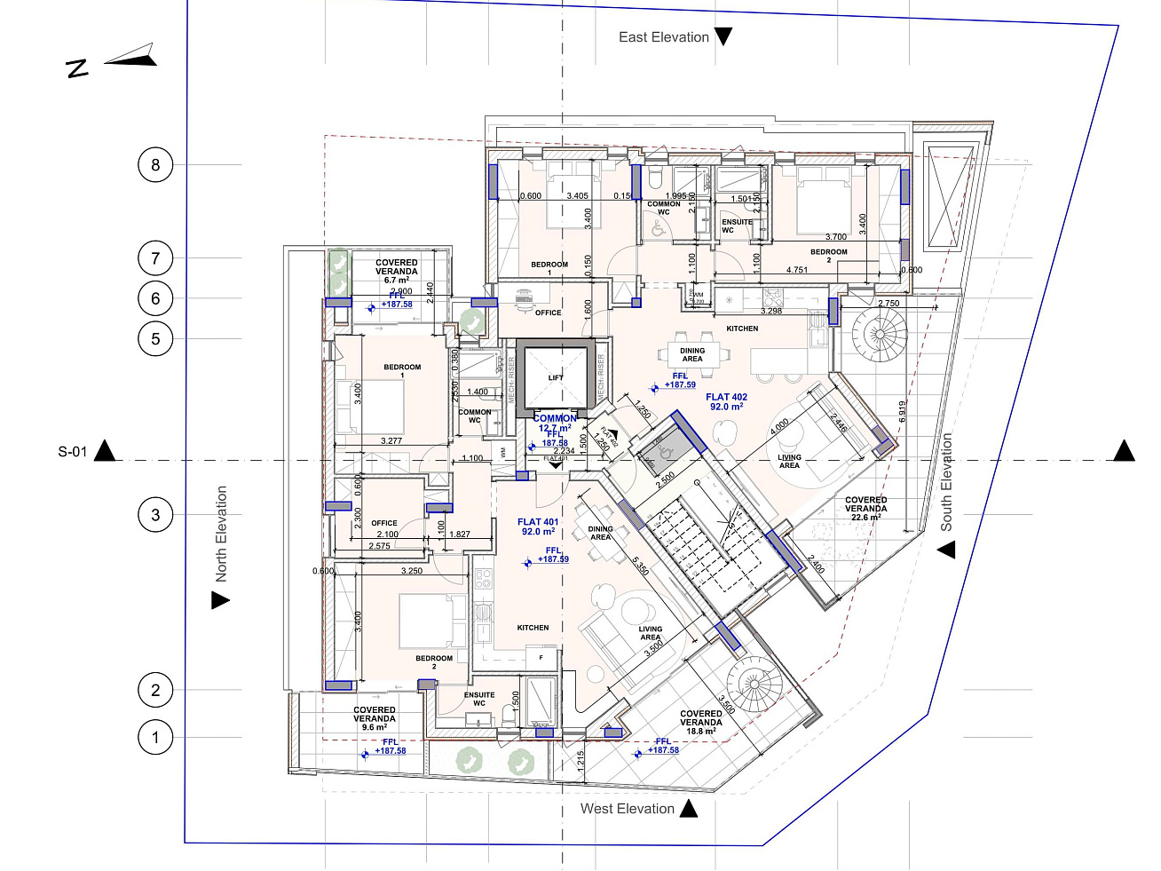
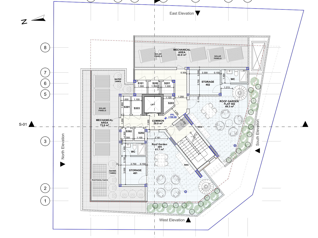
Продаётся пентхаус с планировкой 2+1 и террасой на крыше в районе Lykavitos, Nicosia. Квартира расположена в современном жилом комплексе нового строительства в одном из престижных и центральных районов Никосии. Проект отличается современной архитектурой, использованием качественных строительных и отделочных материалов, а также продуманными планировками, ориентированными на комфортное городское проживание. В здании предусмотрены лифт, кладовые помещения и парковка. Удобное расположение рядом с деловым центром города, магазинами, кафе, школами и другими объектами инфраструктуры делает данный объект отличным выбором как для проживания, так и для инвестиции.
Читать далее
Объект
№196065
Тип:
Квартира / Апартаменты
Город:
Район:
Комплекс:
Застройщик:
Кол-во спален:
3
Ванных комнат:
3
Общая площадь:
164 м2
Жилая площадь:
92 м2
Этажность:
4
Этаж:
4
Год постройки:
01/2028
Класс энергоэффективности:
A
375 000 EUR
+ VAT
375000
2 287
EUR/м2
Записаться на просмотр
Похожие предложения
3372 объекта
Показать все
Интересное
