Новая 4-спальная вилла в Никосии №194145
Дополнительно:
Новостройка
Парковка
Описание:
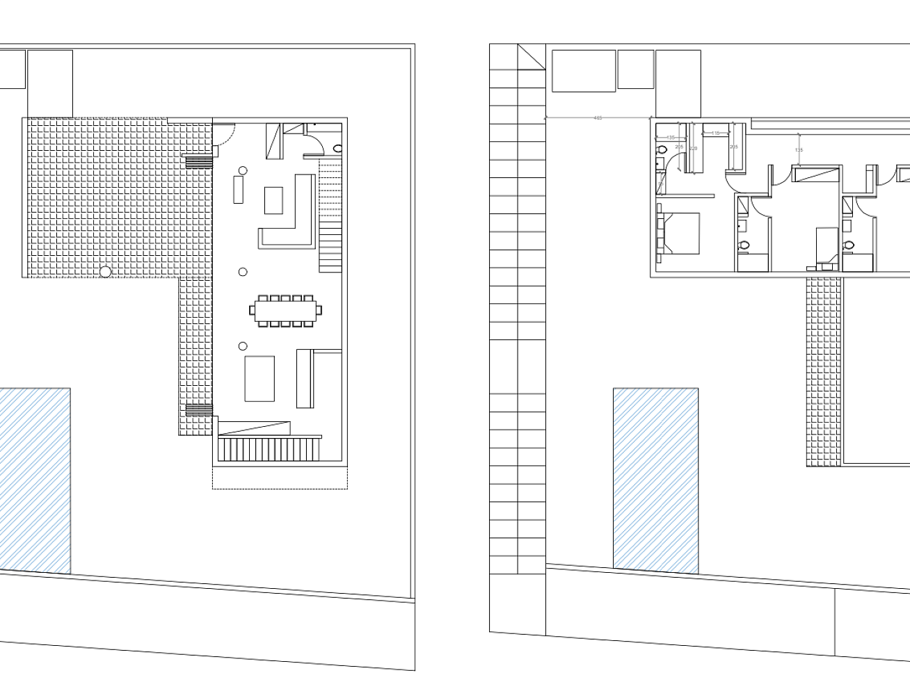
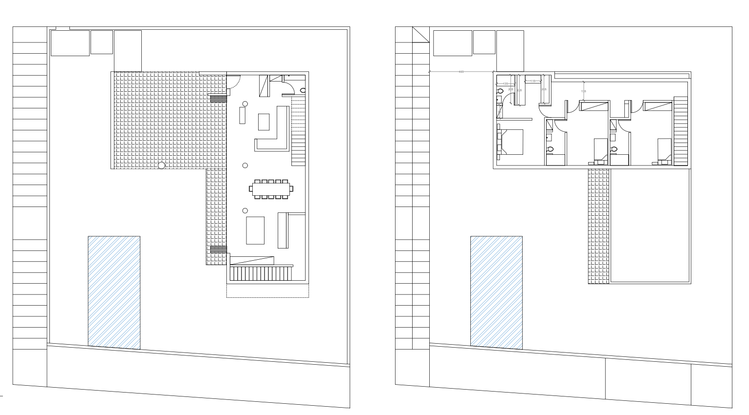
Продается 4 спальный дом расположенный на угловом участке с видом на прекрасную скалу Chrysospiliotissa Rock в Deftera, этот комплекс был создан с целью предложить клиентам изысканные и уникальные объекты. 2 парковочных крытых места, может быть установлен бассейн.
Читать далее
Объект
№194145
Тип:
Вилла / Дом
Город:
Район:
Комплекс:
Застройщик:
Кол-во спален:
4
Ванных комнат:
3
Общая площадь:
210 м2
Жилая площадь:
170 м2
Площадь участка:
610 м2
Этажность:
2
Год постройки:
12/2027
Класс энергоэффективности:
A
Цена по запросу
Записаться на просмотр
Похожие предложения
918 объектов
Показать все
Ранее просмотренные объекты
Интересное
