1-спальные апартаменты в Лимассоле №193301
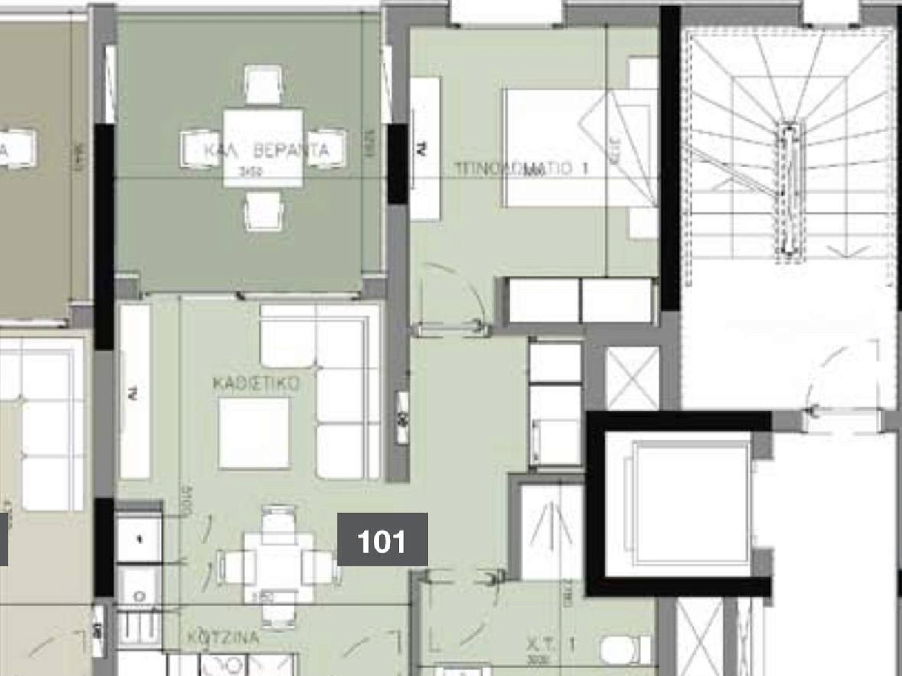
Продаётся уютная односпальная квартира площадью 72 м² в районе Zakaki, город Limassol. Апартаменты включают одну спальню, одну ванную комнату, гостиную с кухней открытого плана и террасу 12 м²; жилая площадь составляет 51 м². Квартира расположена на 1-м этаже. Недвижимость частично оснащена инженерными системами: выполнена подводка под кондиционирование и тёплый пол, установлены термо-алюминиевые окна, двери повышенной безопасности, качественная сантехника и керамика в санузлах, а также кухни и шкафы европейского производства с премиальной отделкой. Комплекс предлагает закрытую охраняемую территорию с бассейном, тренажёрным залом, сауной, кладовыми и крытыми парковочными местами, что повышает комфорт проживания и инвестиционную привлекательность.
Локация отличается динамичным развитием: всего в 2 минутах находится знаменитый пляж Lady’s Mile, рядом крупнейший в Европе казино-курорт City of Dreams и новое 18-луночное гольф-поле, а напротив — торгово-развлекательный центр Limassol Mall, обеспечивающий доступ ко всей инфраструктуре района.
Квартира обладает важным преимуществом — она подходит под получение ПМЖ Кипра, что открывает возможность проживания в стране ЕС и, после вступления Кипра в Шенген, свободного перемещения по Европе. Сдача объекта запланирована на февраль 2026 года.
