Новая 1-спальная квартира в Никосии №189165
Дополнительно:
Новостройка
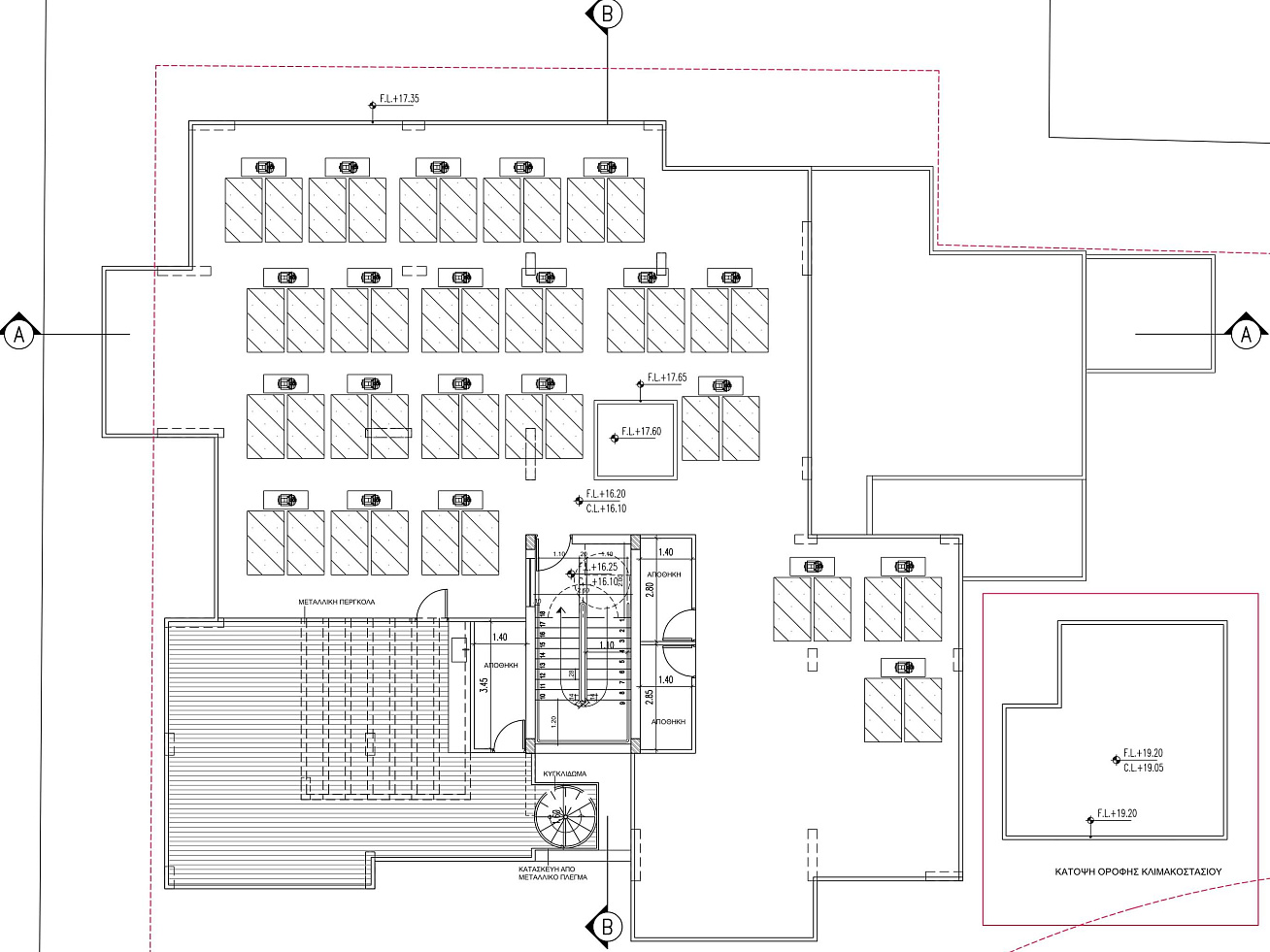
Парковка
Кладовая
Лифт
Описание:
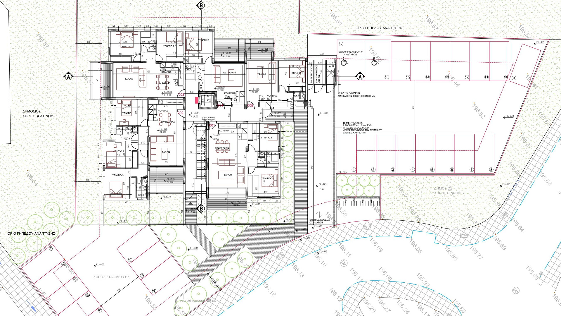
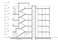
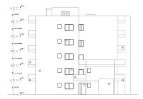
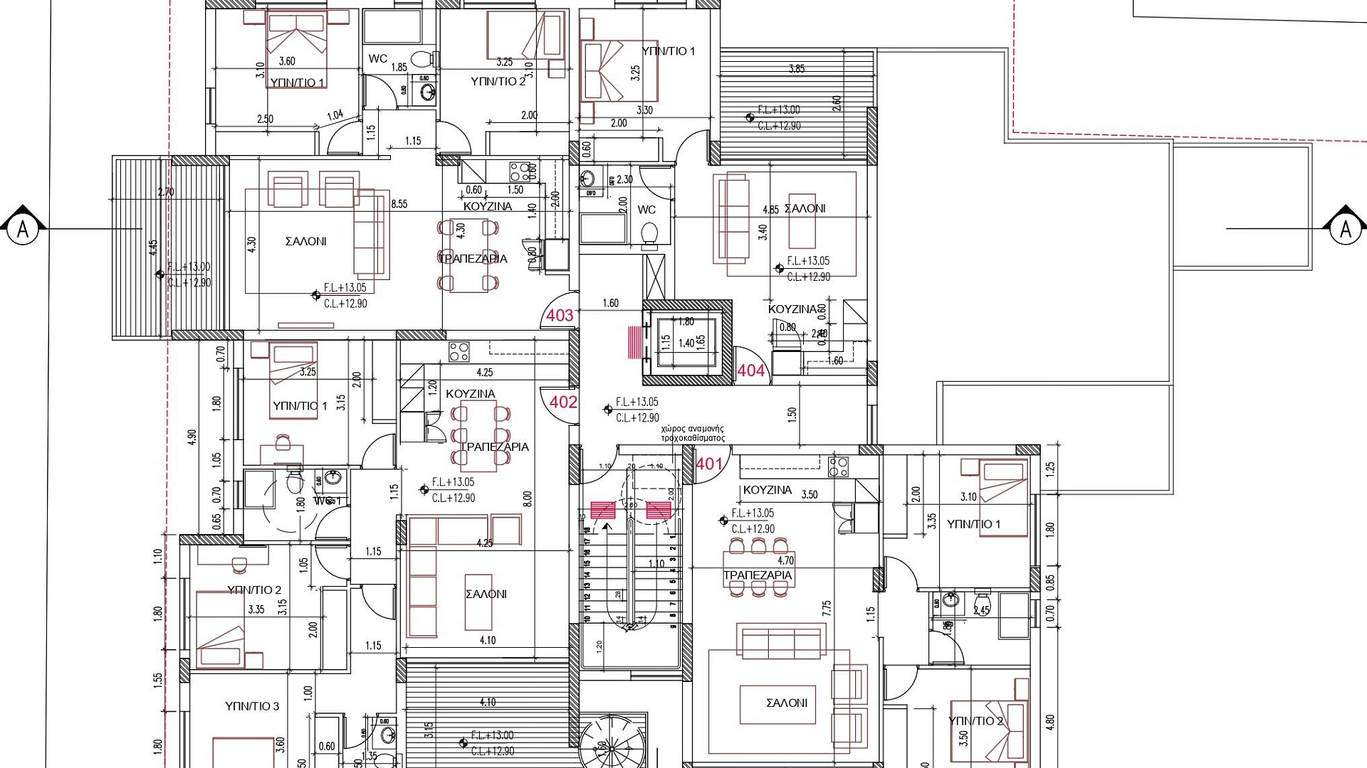
Продаётся современная квартира в престижном районе Aglantsia, Nicosia. Жилой проект расположен в одном из лучших районов столицы — с лёгким доступом к автомагистрали, всей городской инфраструктуре и в непосредственной близости от Кипрского университета. Комплекс отличается минималистичной архитектурой, продуманным дизайном и великолепным открытым видом на зелёную зону. Квартиры оснащены термоизоляцией, системой видеодомофона и солнечными панелями, что обеспечивает энергоэффективность, комфорт и низкие эксплуатационные расходы. Это идеальный выбор как для проживания, так и для инвестиций благодаря удачному расположению и высокому качеству строительства.
Читать далее
Объект
№189165
Тип:
Квартира / Апартаменты
Город:
Район:
Комплекс:
Застройщик:
Кол-во спален:
1
Ванных комнат:
1
Общая площадь:
58 м2
Жилая площадь:
47 м2
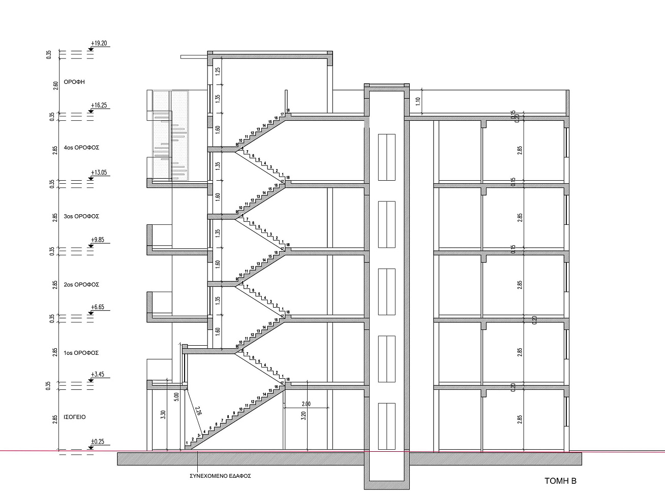
Этажность:
4
Этаж:
4
Год постройки:
11/2027
Класс энергоэффективности:
A
135 000 EUR
+ VAT
135000
2 328
EUR/м2
Записаться на просмотр
Похожие предложения
3840 объектов
Показать все
Ранее просмотренные объекты
Интересное
