Новое коммерческое здание в Лимассоле №189090
Продаётся целое офисное здание в районе Zakaki, Limassol. Ультрасовременный офисный комплекс расположен в одной из самых востребованных локаций Закаки, в окружении развитой инфраструктуры. Удобное расположение обеспечивает быстрый доступ к новому казино, порту, крупнейшему торговому центру Лимассола и автомагистрали, что делает объект особенно привлекательным для бизнеса.
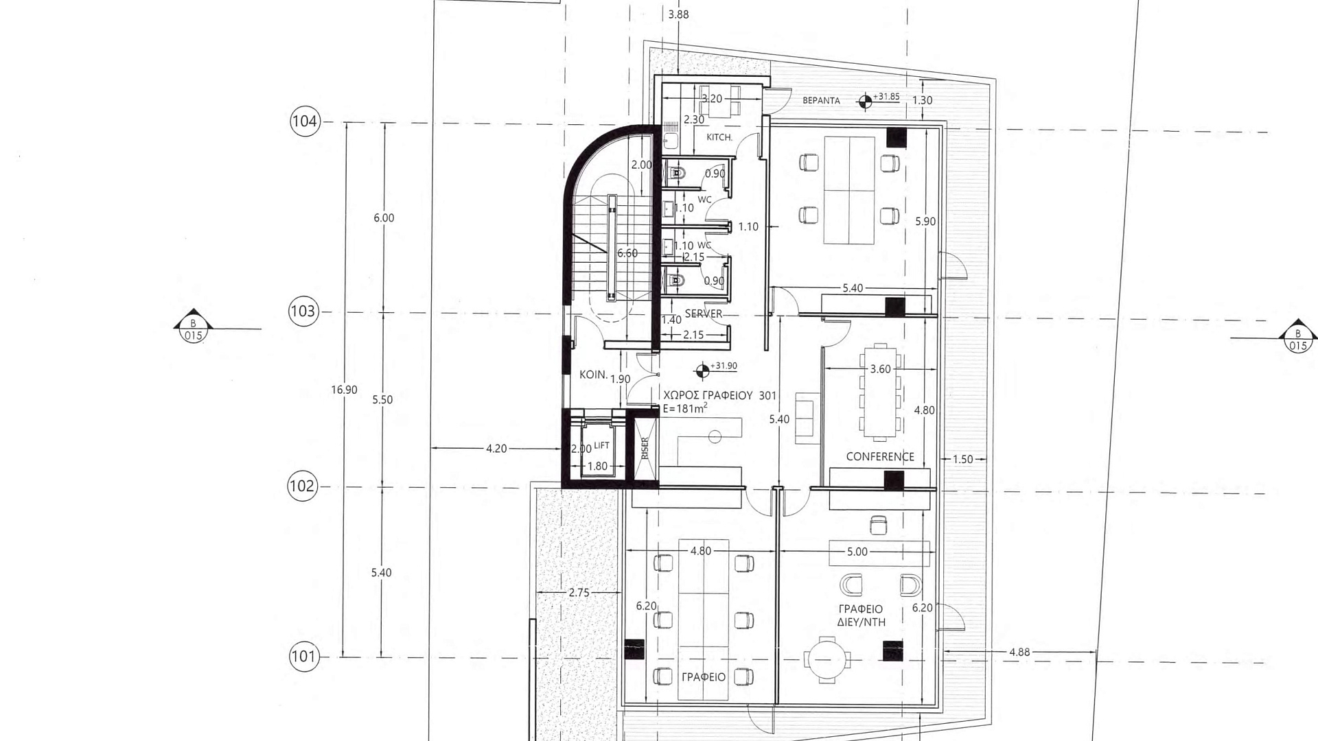
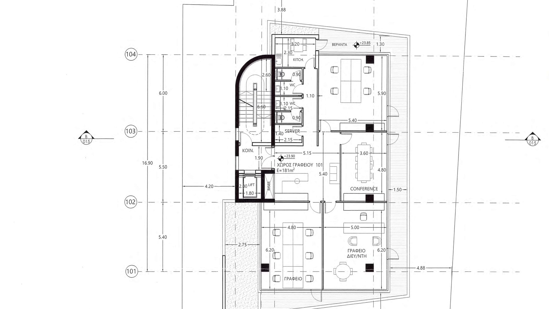
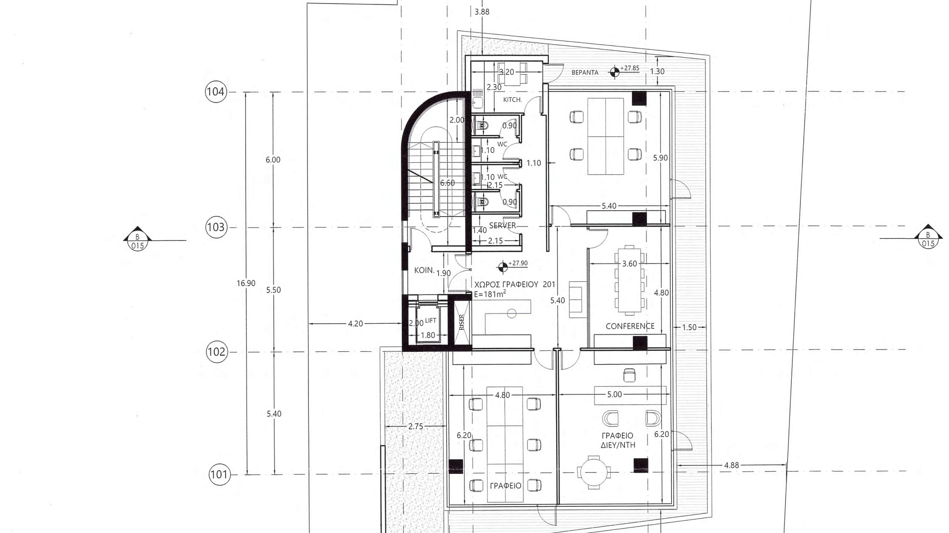
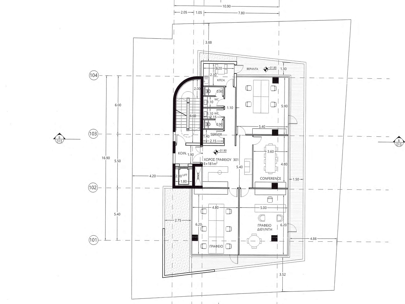
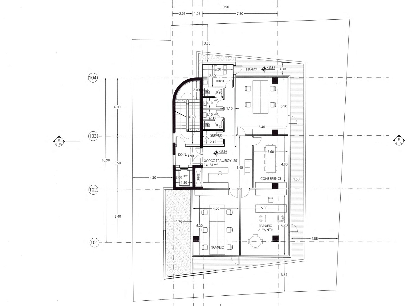
Здание спроектировано по архитектурным планам известного архитектора и возведено с использованием материалов премиального качества. В составе комплекса — подземный паркинг, просторный вестибюль с зоной ресепшн, технический этаж и три уровня офисных помещений открытого типа, дополненных большими крытыми верандами, создающими функциональные и светлые рабочие пространства.
Объект идеально подходит для компаний, которые хотят разместить штаб-квартиру в престижном и стратегически удобном месте. Это также отличный вариант для инвесторов, ищущих современное, высококачественное здание с большими возможностями коммерческого использования.
