Новый офис в Лимассоле №189077
Продаётся офисный этаж в современном бизнес-здании, расположенном в районе Zakaki, Limassol. Ультрасовременное офисное здание находится в одной из лучших локаций Закаки, рядом со всей необходимой инфраструктурой. Удобное расположение обеспечивает быстрый доступ к новому казино, порту, крупнейшему торговому центру Лимассола и автомагистрали.
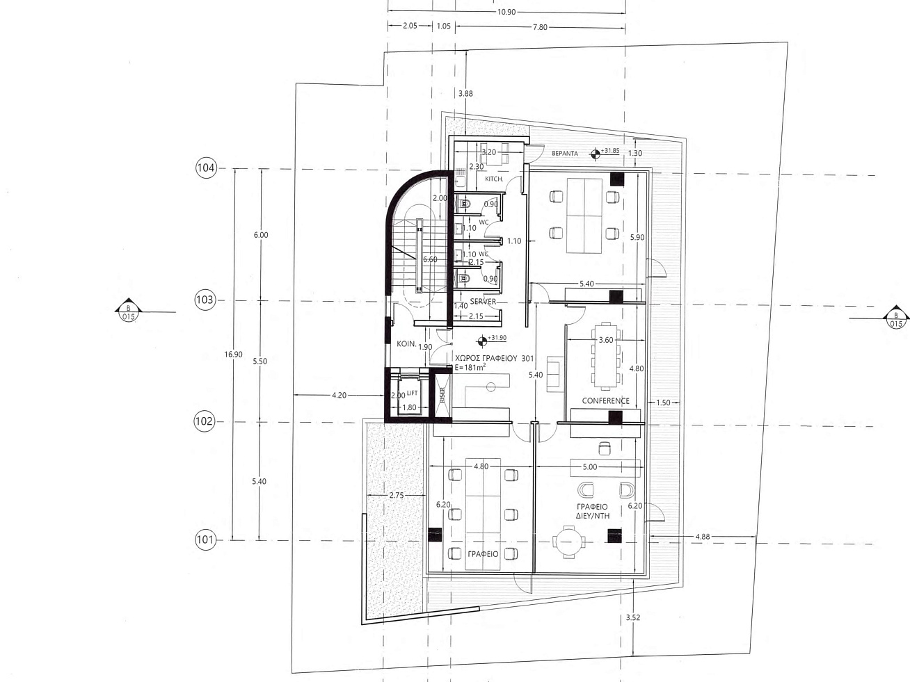
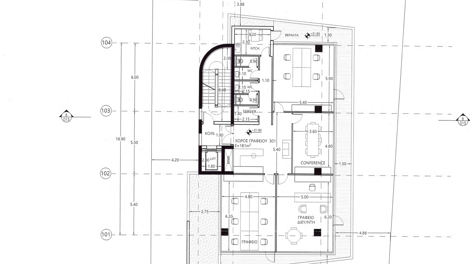
Проект выполнен по архитектурным планам известного архитектора, а строительство осуществляется по самым высоким стандартам и с использованием материалов премиального качества. Здание включает подземный паркинг, просторный вестибюль с зоной ресепшн, механический этаж и три уровня офисных помещений открытого типа с большими крытыми верандами.
Офисный этаж идеально подходит для компаний, которым важно современное пространство, престижное расположение и функциональная планировка. Отличный выбор для бизнеса, ценящего качество, имидж и удобный доступ к ключевым районам города.
