Земля в Лимассоле №189016
Описание:
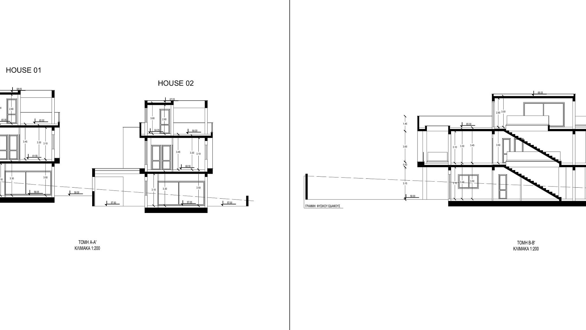
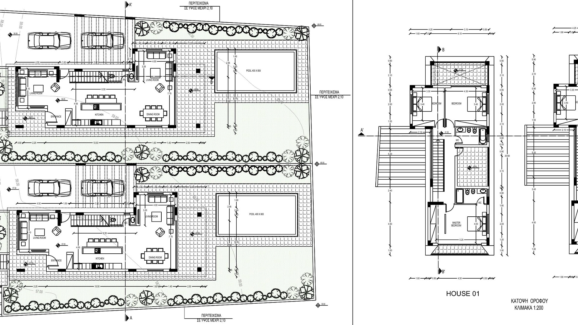
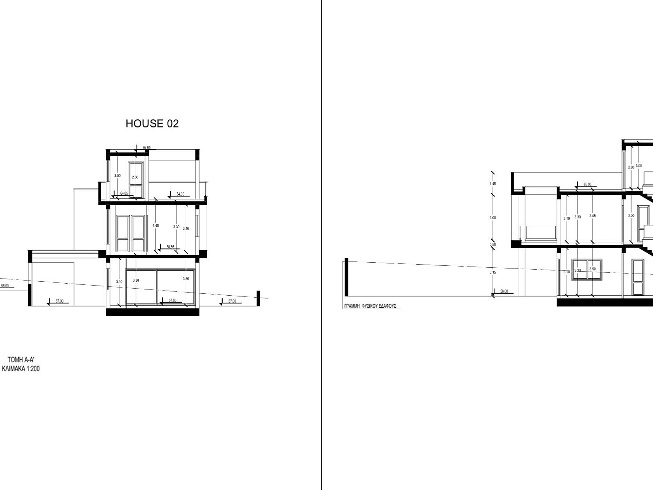
Продаётся участок в районе Mesovounia, Limassol, с утверждённым планировочным разрешением на строительство двух вилл. Уникальный участок площадью 1017 м² имеет правильную квадратную форму и расположен среди роскошных вилл, что подчёркивает высокий статус района. Это идеальный вариант для строительства двух современных и просторных вилл. Участок находится в одном из самых востребованных жилых районов Лимассола с удобным выездом на автомагистраль и всего в 10 минутах от моря и центра города. Готовое планировочное разрешение делает покупку особенно выгодной, позволяя сразу приступать к проектированию и строительству.
Читать далее
Объект
№189016
Тип:
Земля
Город:
Район:
Комплекс:
Застройщик:
Площадь участка:
1017 м2
Этажность:
2
Расстояние до моря:
1600 м
Зона:
Κα9
Процент застройки:
40
Процент покрытия:
25
850 000 EUR
+ VAT
850000
836
EUR/м2
Записаться на просмотр
Похожие предложения
3884 объекта
Показать все
Ранее просмотренные объекты
5 объектов
Показать все
Интересное
