Новое жилое здание в Никосии №186043
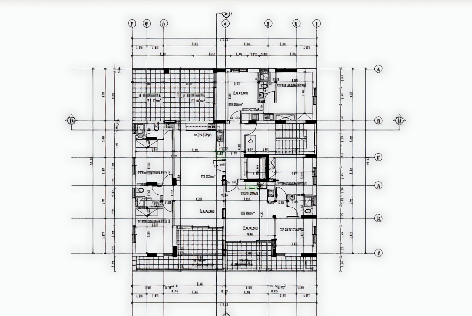
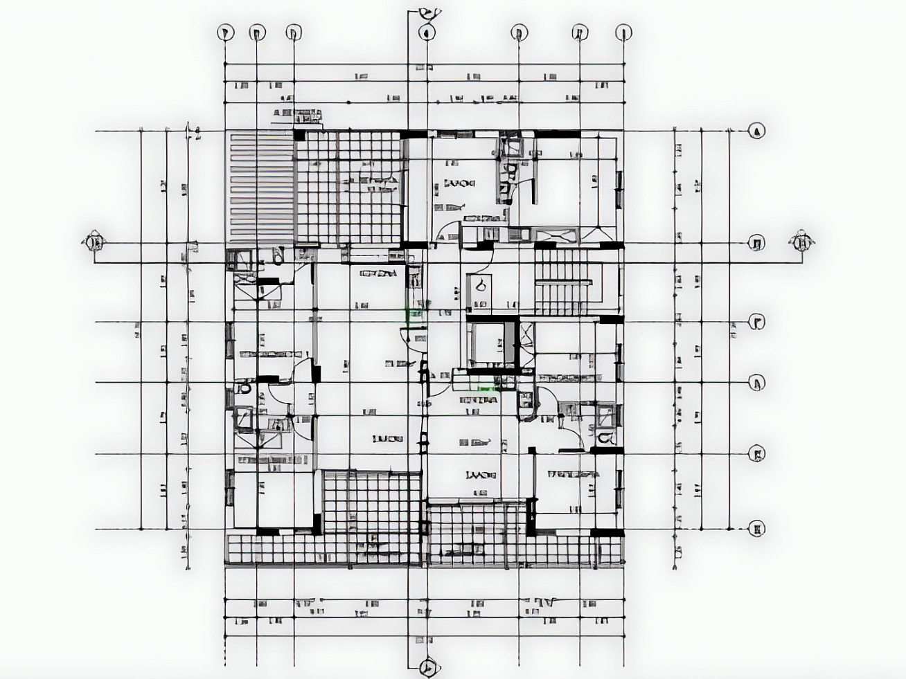
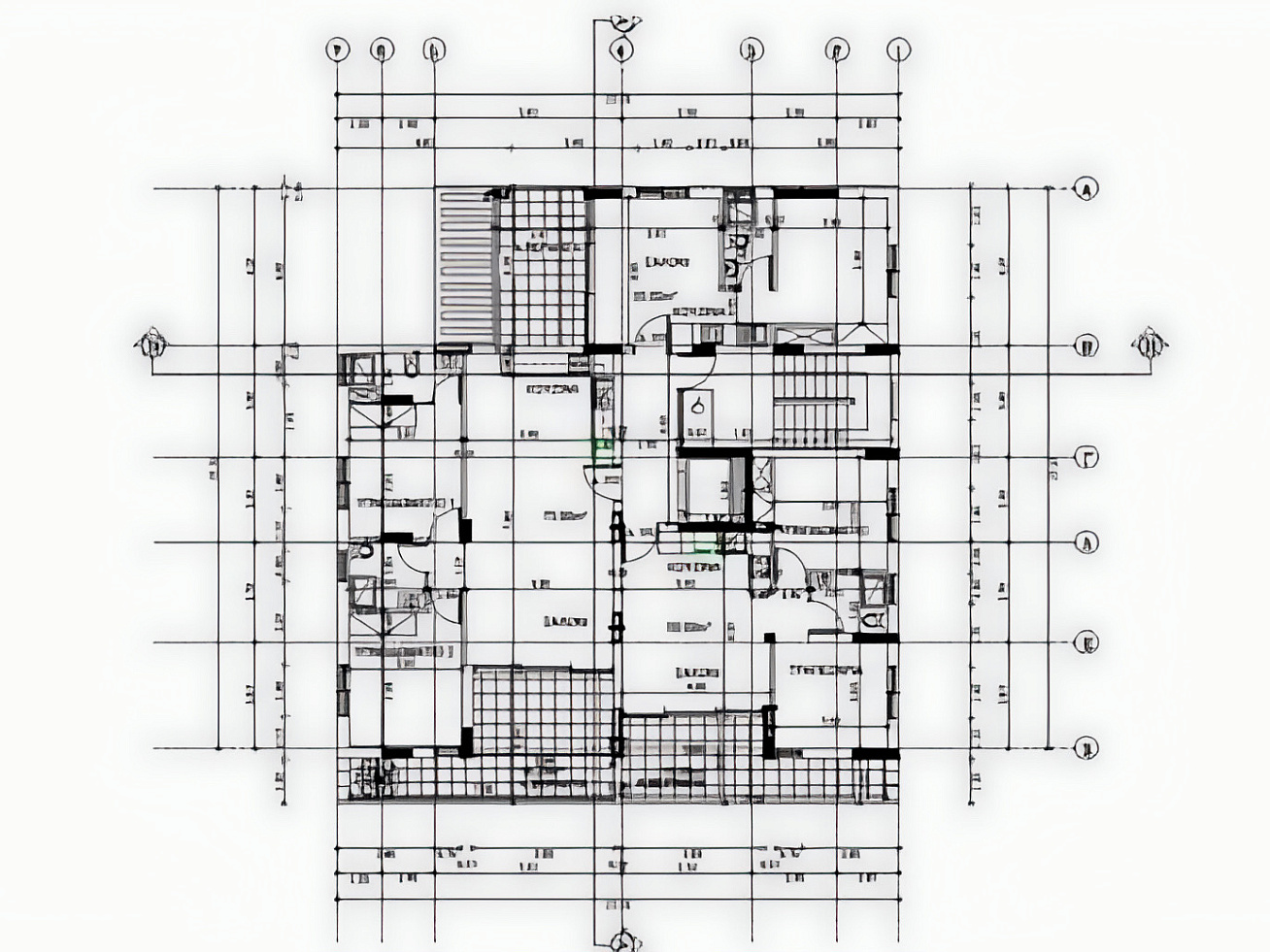
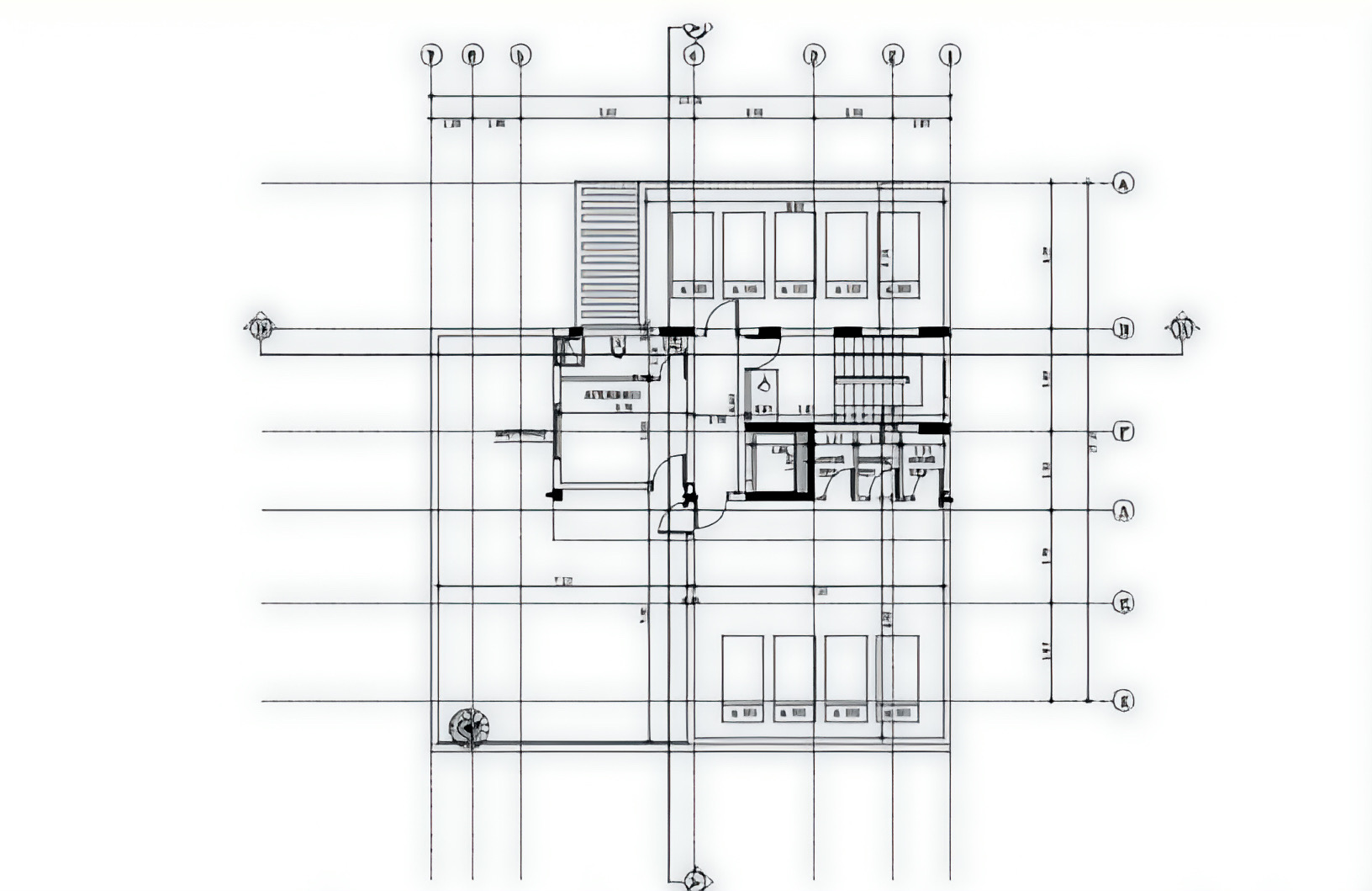
Продаётся новый жилой комплекс в районе Strovolos, Nicosia. В блоке всего 9 квартир. Квартиры под номерами 101, 201 и 301 имеют планировку 1+1 — одна спальня и дополнительная комната (офис), по размерам сопоставимая с полноценной спальней. Все квартиры включают просторную гостиную с кухней открытого типа, кладовую и крытое парковочное место. Рядом с комплексом будет проложена новая дорога. В каждой квартире предусмотрены выводы под установку фотовольтаических панелей (оплачиваются отдельно) и кондиционеров. Отопление не предусмотрено. Здания выполнены из высококачественных материалов, с тепло- и звукоизоляцией, современными лифтами и энергоэффективными системами. Этот проект сочетает функциональность, качество и комфорт, предлагая удобное жильё в спокойном и благоустроенном районе Никосии.
