Новое коммерческое здание в Лимассоле №185947
Дополнительно:
Новостройка
Кондиционер
Парковка
Туалет
Кухня
Ресепшн
Конференц-зал
Инвестиции в недвижимость Кипра
Описание:
Продается коммерческое здание в районе Agios Ioannis Limassol. Это отличный вариант для инвестиций.
Основные характеристики:
-Земельный участок 592 м2
-Общая крытая площадь: 1962 m2
Планировка здания:
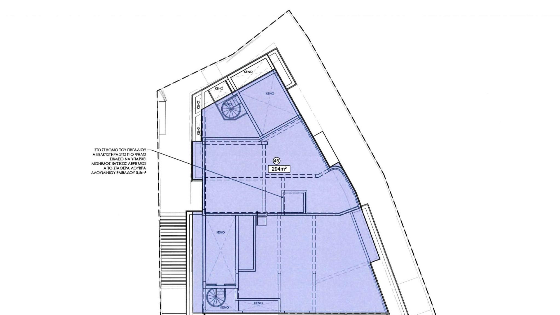
-Подвал: 455 m2
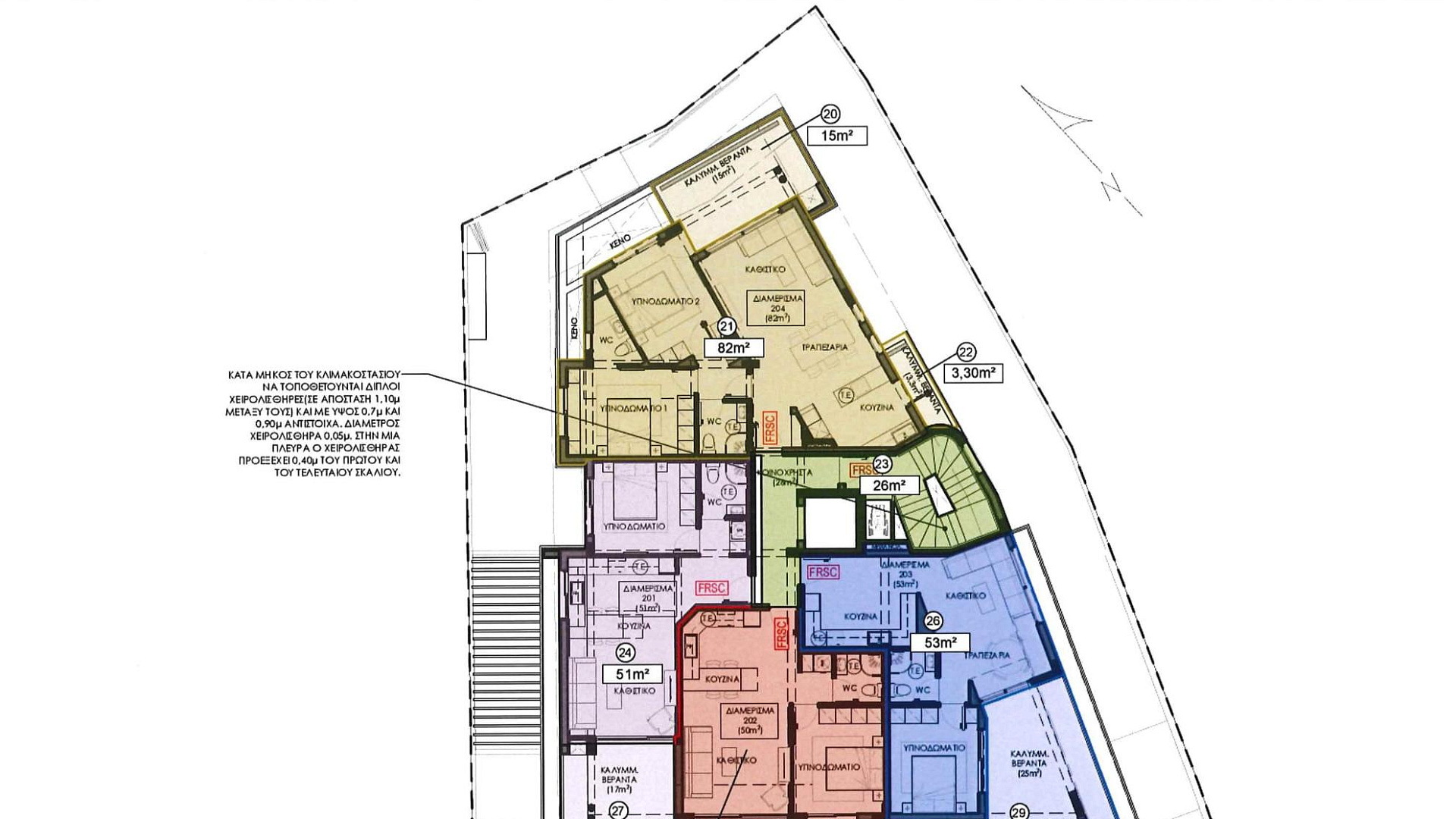
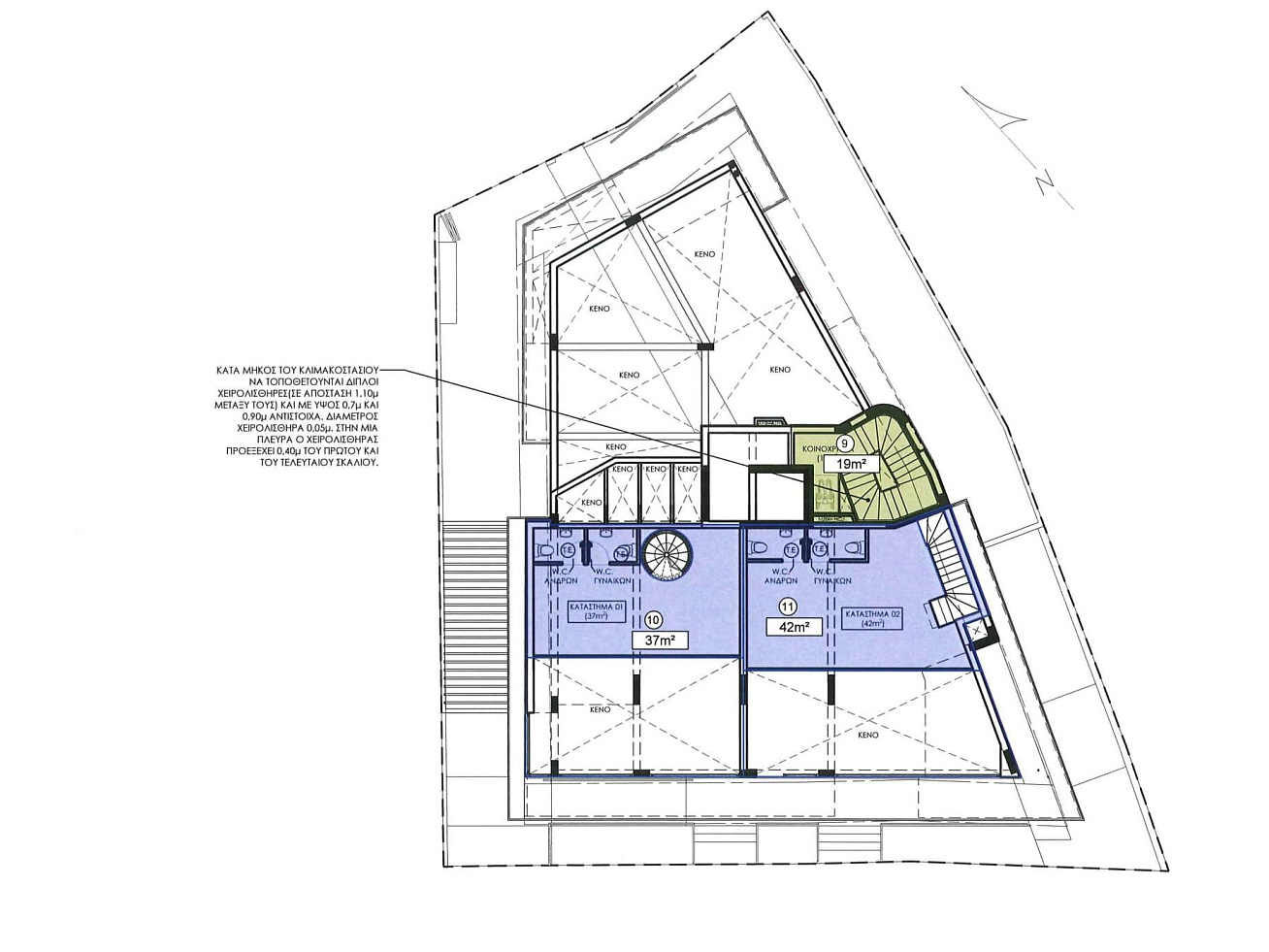
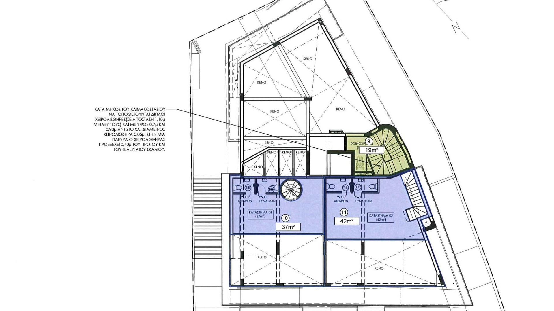
-Магазины: магазин 01 - 75 м2, мезонин 37м2; магазин 02 - 84 м2, мезонин 42 м2
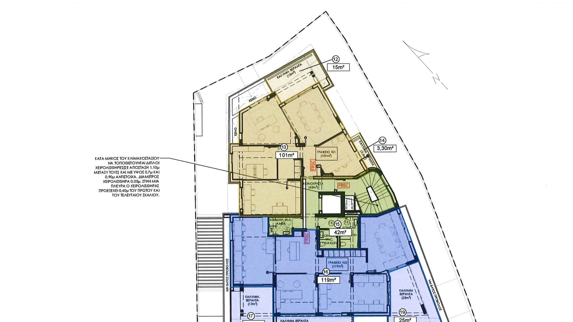
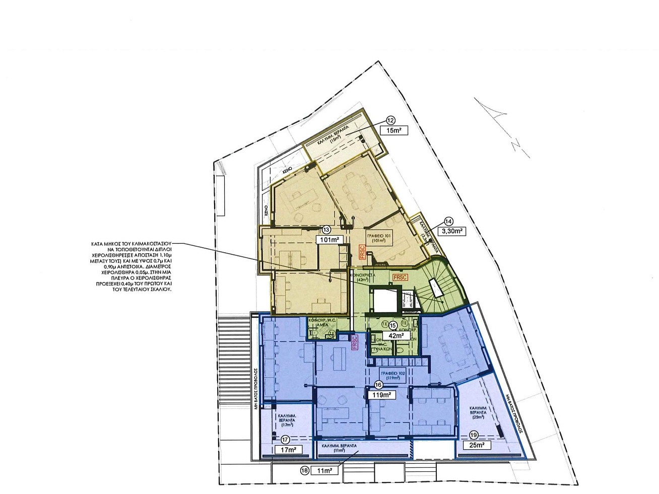
-Офисы: (1-й этаж) офис 101 - 101 м2; офис 102 - 119 м2
-Квартиры (2 этаж): три 1-местные (51, 50, 53 м2) и одна 2-местная (82 м2)
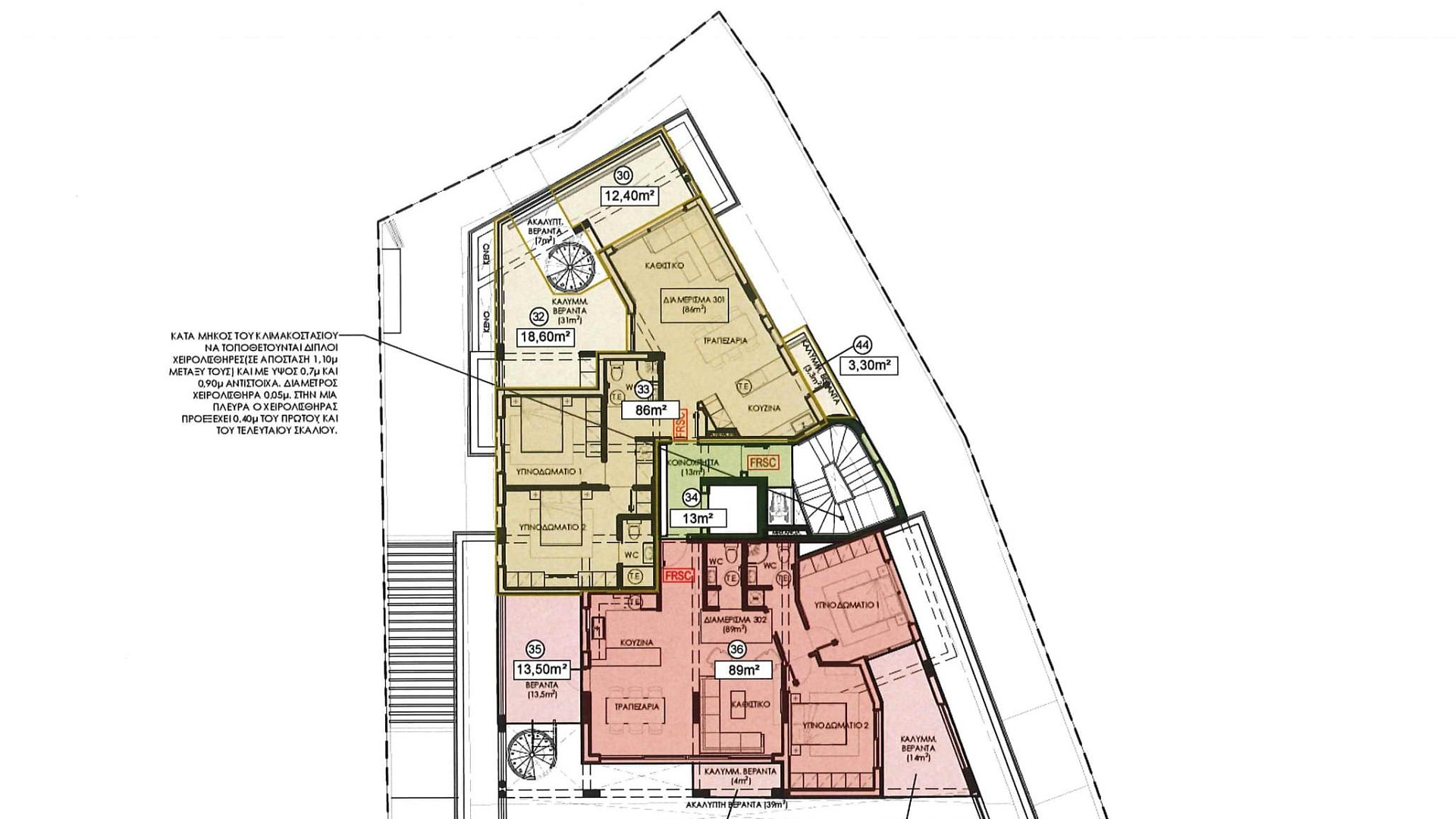
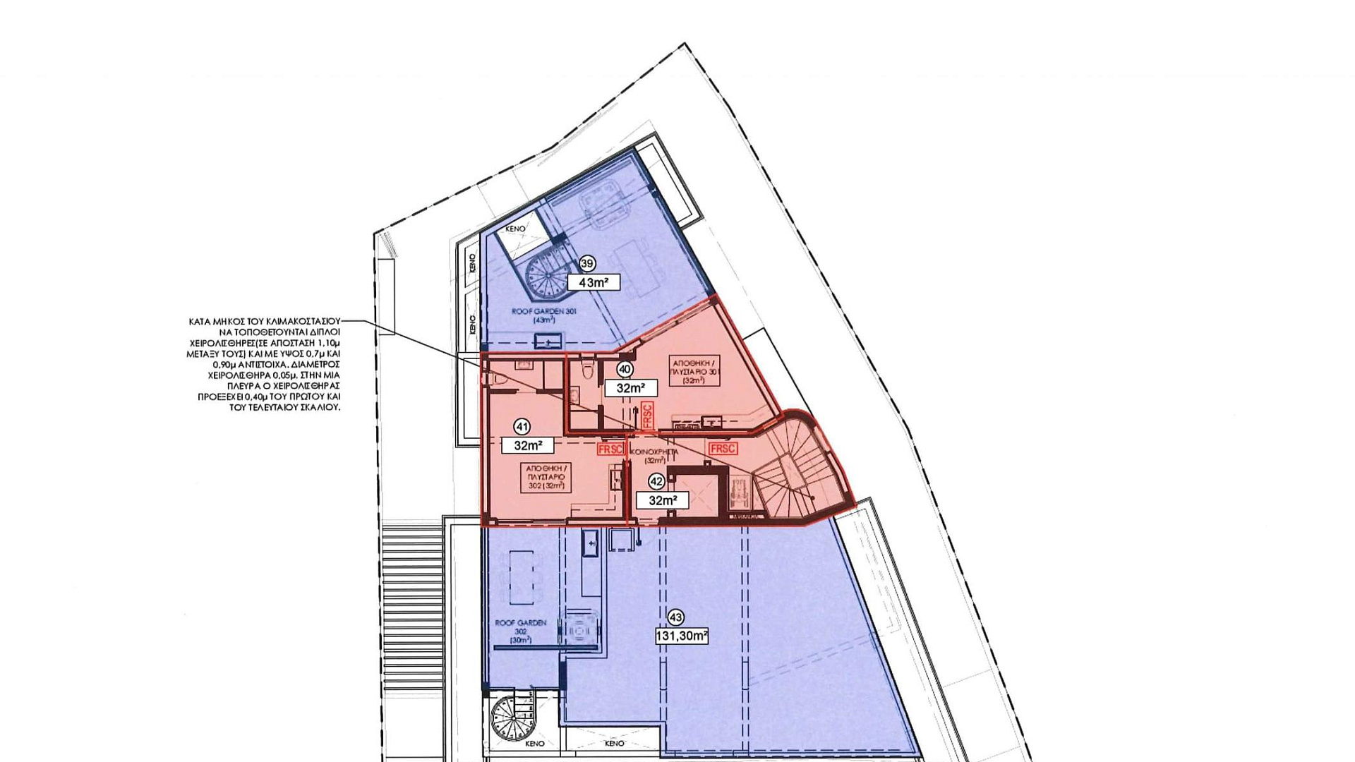
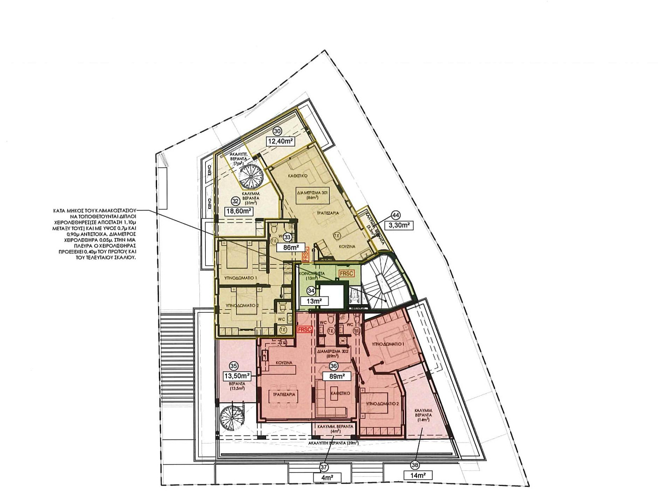
-Апартаменты (3-й этаж):две 2-местные (86, 89 м2).Кладовая/прачечная на крыше: 32 м2 + 32 м2
Здание имет удобное расположение с легким доступом к основным дорогам. Подходит для розничной торговли, офисов и жилья. В ближайшее время ожидается разрешение на строительство магазинов, офисов и апартаментов.
Читать далее
Объект
№185947
Тип:
Коммерческая недвижимость
Город:
Район:
Комплекс:
Застройщик:
Общая площадь:
592 м2
Площадь участка:
592 м2
Этажность:
4
Год постройки:
2025
Расстояние до моря:
1200 м
Класс энергоэффективности:
A
1 150 000 EUR
+ VAT
1150000
1 943
EUR/м2
Записаться на просмотр
Похожие предложения
2921 объект
Показать все
Интересное
