Новая 5-спальная вилла в Лимассоле №178914
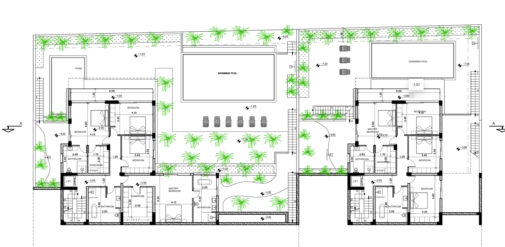
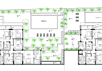
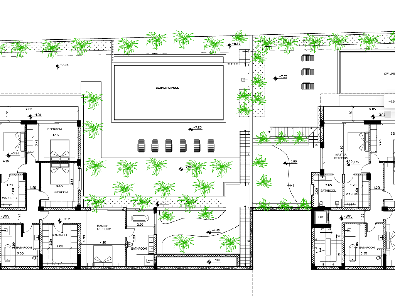
Продажа 5 - ти спальной виллы в районе Germasogeia, Limassol. Удобное расположение рядом с выездами на Гермасою и Агиос Афанасиос обеспечивает быстрый доступ как в центр города, так и к морю. Инвестиционная вилла с защищённой панорамой и премиальной инженерией Panoramic Protected Residence. Вилла имеет каскадную посадку по рельефу. Это создаёт чёткое разделение «парадного» уровня и курортной зоны. Она имеет три уровня, перепад высот создаёт ощущение приватности и «парящего» дома над долиной. Слева от участка — зелёная зона 800 м2, где строительство невозможно. Напротив въездной группы — участок водного резервуара района Гермасойя, который перекрывает перспективу строительства перед домом со стороны главного входа ( с трех сторон нет соседей) Это означает: перед вами не появится новое строительство, панорама останется открытой, плотность застройки вокруг ограничена. Кроме того вид защищён с трёх сторон. Для инвестиционного покупателя это критически важно — защищённый вид = защищённая стоимость. Уровень 0 — входной уровень - вьезд в просторный крытый гараж на два автомобиля с секционными автоматическими воротами. Второй вход — прямо из гаража в гардеробную (17,6 м2). Пальто, ключи, сумки — всё исчезает за закрытой дверью. Далее - просторный опен-план: гостиная, столовая, кухня — единое пространство с панорамным остеклением в сторону долины, в центре — двусторонний дизайнерский камин. Он не делит комнату — он создаёт атмосферу. С этого уровня — лестница вниз, к бассейну, а также лифт. Также на этом уровне есть гостевой WC. Уровень (-1) - это уровень спален, четыре спальни, каждая — с выходом на балкон или террасу с видом на долину или в сад. Это не компромиссные «Bedroom» на 9-10 м2, типичные для кипрской рынка, а полноценные комнаты с пространством для жизни - Master bedroom suit ( с выходом на собственную приватную террасу, утопающую в зелени - атмосфера «Maldives - style») , плюс собственная ванная комната и гардеробная - общая площадь 47 м2. Ванная 2.55×5.20 м с двумя видовыми окнами — одно смотрит на долину, другое выходит в сад. Ванна расположена напротив окон. Собственная терраса с тропическим душем и прямым спуском к бассейну. Спальня 2 ( 16,4 м2) - Спальня 3 (14,3 м2) - Спальня 4 (с выходом на собственную приватную террасу, утопающую в зелени - атмосфера «Maldives - style» и выход на балкон с видом на долину) плюс собственная ванная комната и гардеробная - общая площадь 34 м2. • Просторная ванная комната с собственной ванной и душевой кабиной -14 м2. Уровень (-2) - Курортный уровень: там находится пятая спальня с собственной ванною комнатой (также имеет провижен под кухню) - 22 м2, постирочная, гостевой туалет. На этом уровне находится бассейн 10м х 5м с подогревом, просторная крытая веранда 92 м2 - затенённая зона отдыха у бассейна. Также есть декоративный пруд.
С технической точки зрения вилла строится по усиленной конструктивной схем. Немецкая полиуретановая гидроизоляция Poreure (системная защита от влаги) применяется в фундаментах, перекрытиях, крыше, чаше бассейн. При заливке используется специальная гидроизоляционная добавка в бетон , которая снижает водопроницаемость бетона.В результате бетон не впитывает влагу, конструкция служит дольше, отсутствует внутренняя сырость. С внешней стороны стен используется MULTIPOR — минеральный экологичный материал с высокой паропроницаемостю - «дышащие» стены что обеспечивает устойчивость к плесени. Стены, контактирующие с грунтом, утепляются , покрываются гидроизоляционным составом, а затем гидроизолируются немецкой гидроизоляцией. Преимущества: экологически чистый материал, паропроницаемый, не горит, не выделяет токсинов, работает десятилетиями без потере свойств. Толщина утепления: 10 см - это снижает риск конденсата и делает подземные уровни сухими. Энергоэффективность Class A - 6 kW фотовольтаика - частичная энергетическая автономия которая обеспечивает низкие счета за электроэнергию. Система теплых полов работает от теплового насоса что обеспечивает энергоэффективное отопление и равномерный микроклимат. В доме используется VRV система кондиционирования со скрытым монтажом внутренних блоков VRF / ORV. На вилле используется профессиональная система автоматизации - интеллектуальный дом KNX что обеспечивает управление освещением со сценарииями “Вечер”, “Отъезд”, “Гости”, интеграцию отопления и кондиционирования, контроль энергопотребления, управление со смартфона Это европейский стандарт премиальной недвижимости. Вилла проектируется как энергоэффективный объект с низкими эксплуатационными расходами.
