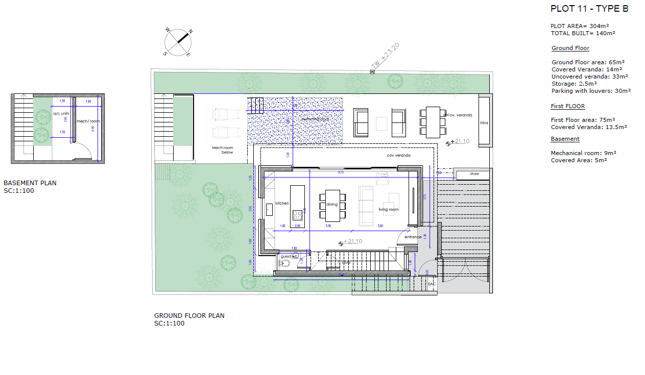
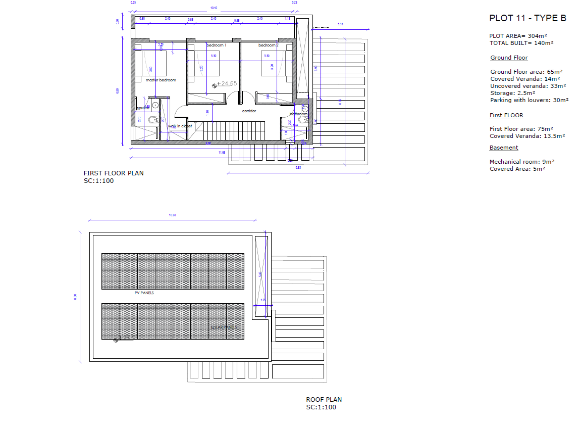
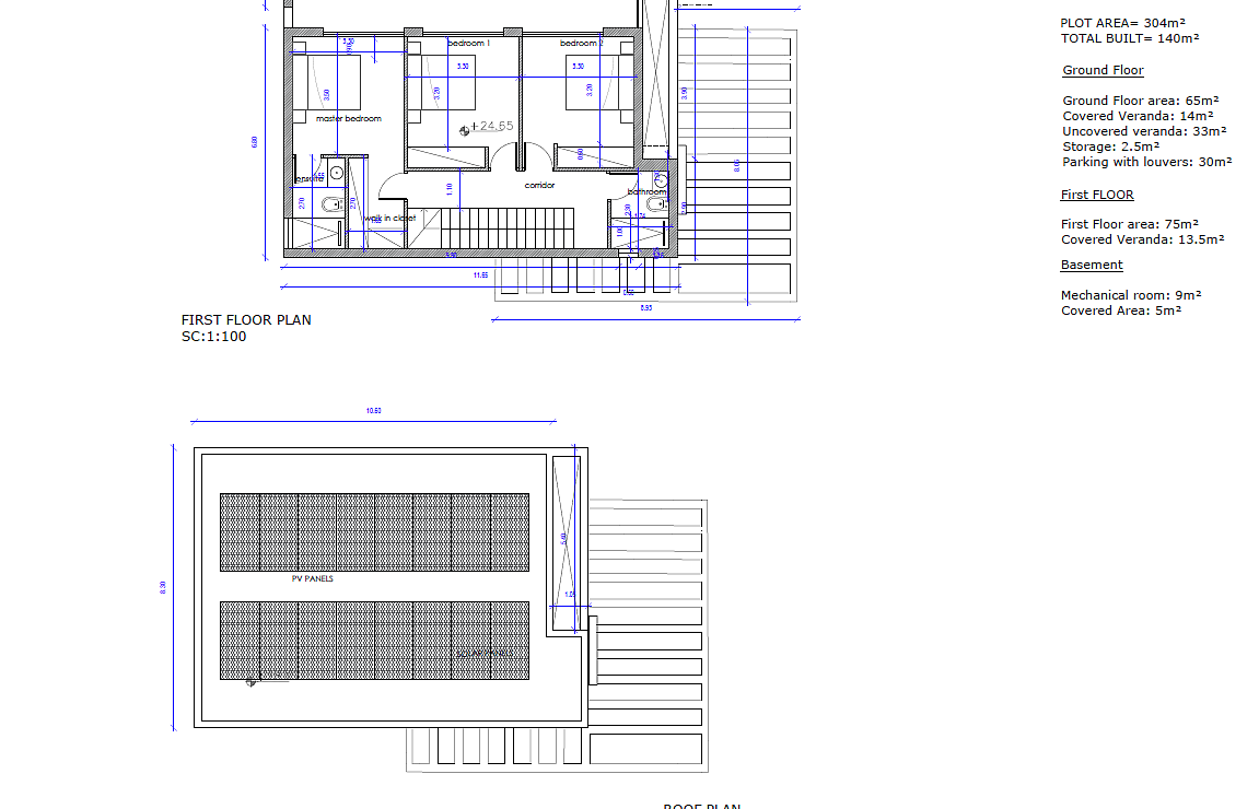
New 3-bedroom villa in Paphos № 209668
Villa for sale in Geroskipou area, Paphos. A modern complex of 15 luxury villas located in a tourist area just 200 meters from the beach. The project is designed for clients seeking a modern coastal lifestyle combining privacy, comfort and modern design within walking distance from the sea.
Modern design, emphasizing the harmonious combination of indoor and outdoor space: spacious living room, dining room and kitchen. High ceilings and high doors in all rooms. A 4.8 kW photovoltaic system with solar panels, a VRV cooling system for efficient and customizable climate control, a underfloor heating system (water with a hydraulic kit), a water filtration and softening system, an alarm system, a security lock at the entrance, and energy-efficient thin aluminum windows are installed. Complete thermal insulation, ensuring energy efficiency of category A. Electric entrance gates and the possibility of installing a charger for electric vehicles. Private pool 3x6 meters. Barbecue area. Private parking.
Restaurants, cafes, hotels and other amenities are located nearby, allowing the complex to combine a peaceful coastal life with everyday amenities.
