
New 3-bedroom house in Nicosia / Anthoupolis Nicosia №204810




Additional:
Description:
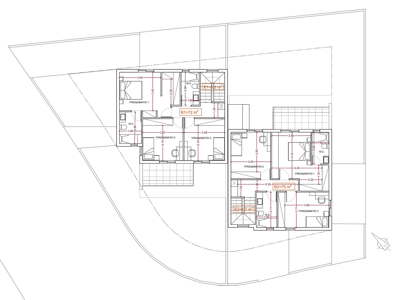
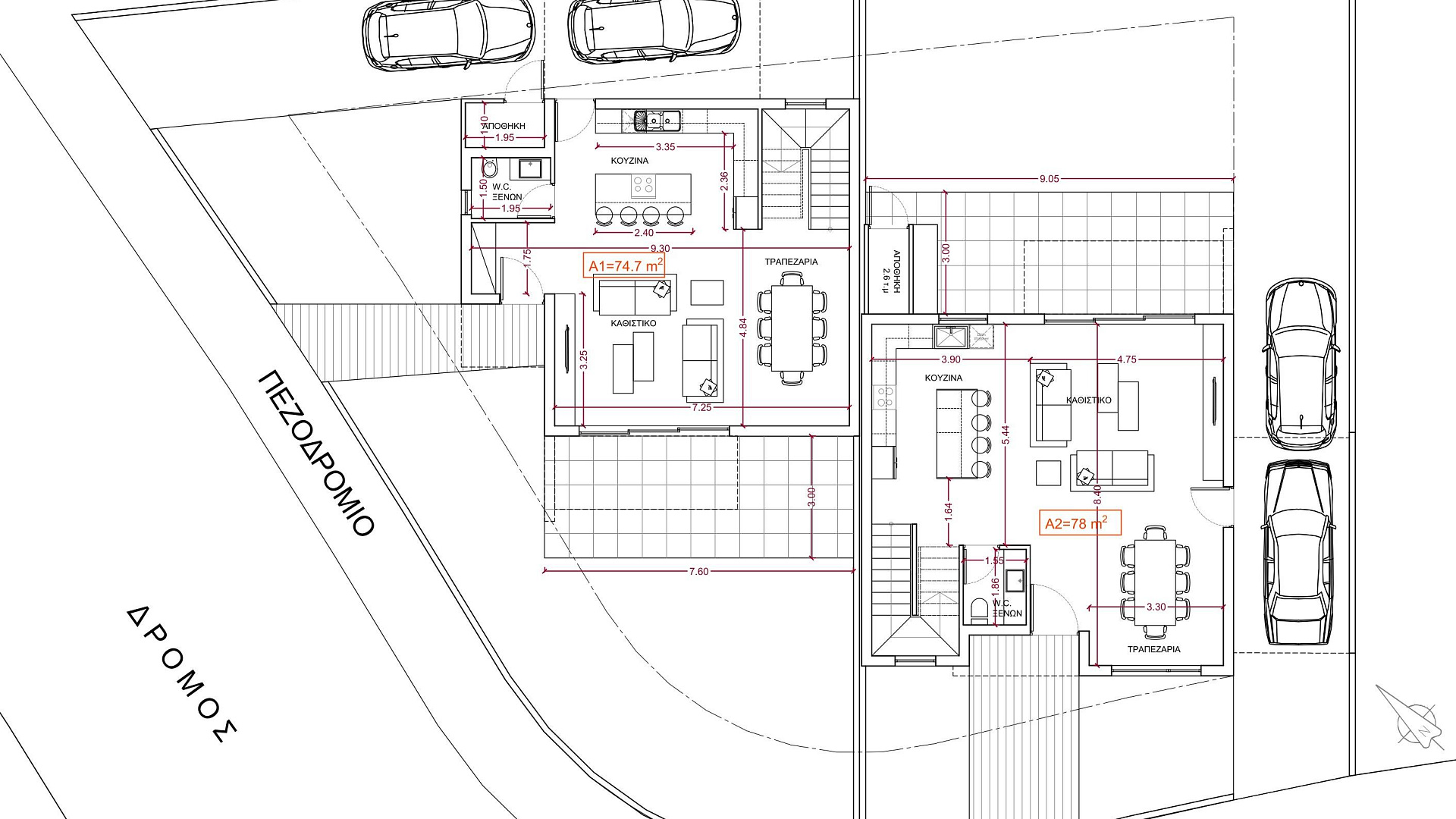
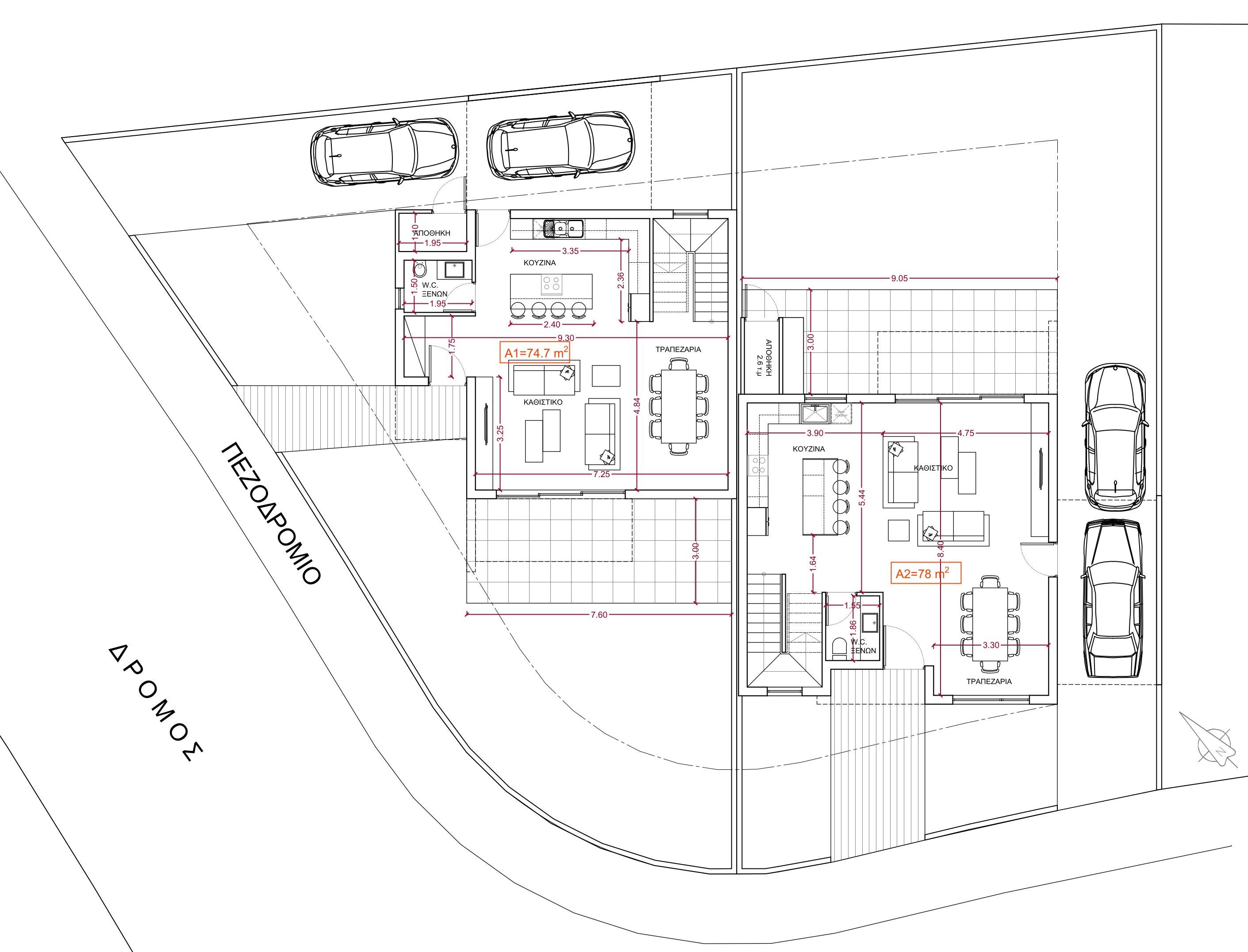
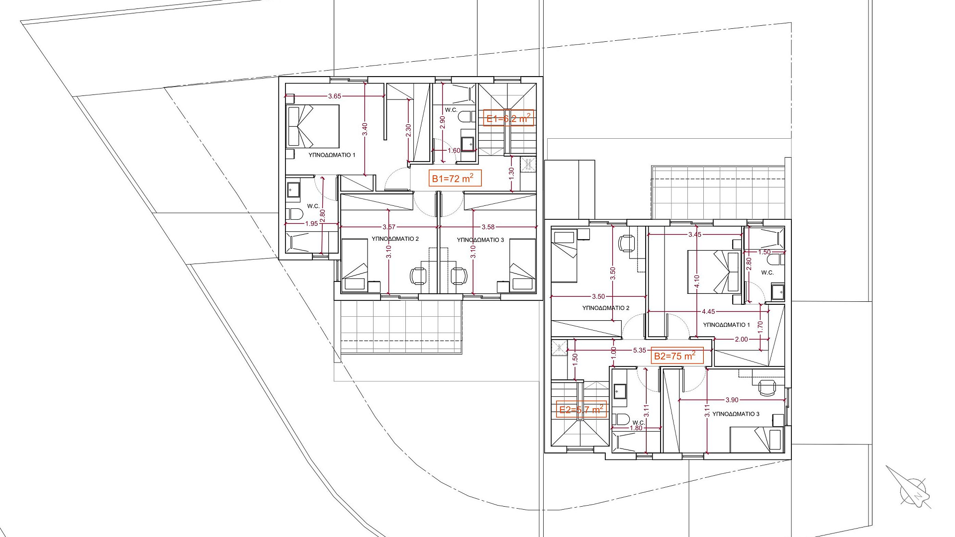
Modern house for sale in Lakatamia, Nicosia. The house was built using high-quality building materials and modern technologies that ensure a high level of comfort, energy efficiency and reliability of the structure. The building is made of a reinforced concrete frame with full antiseismic protection and an external thermal insulation system, which guarantees comfortable living at any time of the year. The decoration uses high-quality ceramic coverings on the ground floor and laminate flooring on the upper level, and the staircase is made using marble or granite. Aluminum double-glazed windows are installed, a modern kitchen, built-in wardrobes in the bedrooms and high-quality plumbing according to the buyer's choice. The house is equipped with a solar water heater, a pressurized water supply system, a complete electric and hydraulic installation, a 3 kW photovoltaic system, as well as preparation for central heating and air conditioning. The territory is landscaped, a private courtyard and exterior landscaping are provided. This house is a modern and functional accommodation, ideal for a comfortable family life or a long-term investment in one of the most convenient areas of Nicosia.
№204810
House / Villa
City:
District:
Complex:
3
2
165 m²
153 m²
275 m²
2
07/2027
A
€1,939 / m²
DOM Real Estate
+357 22 008 359







