
New 2-bedroom apartment in Nicosia / Strovolos №203058




Additional:
Description:
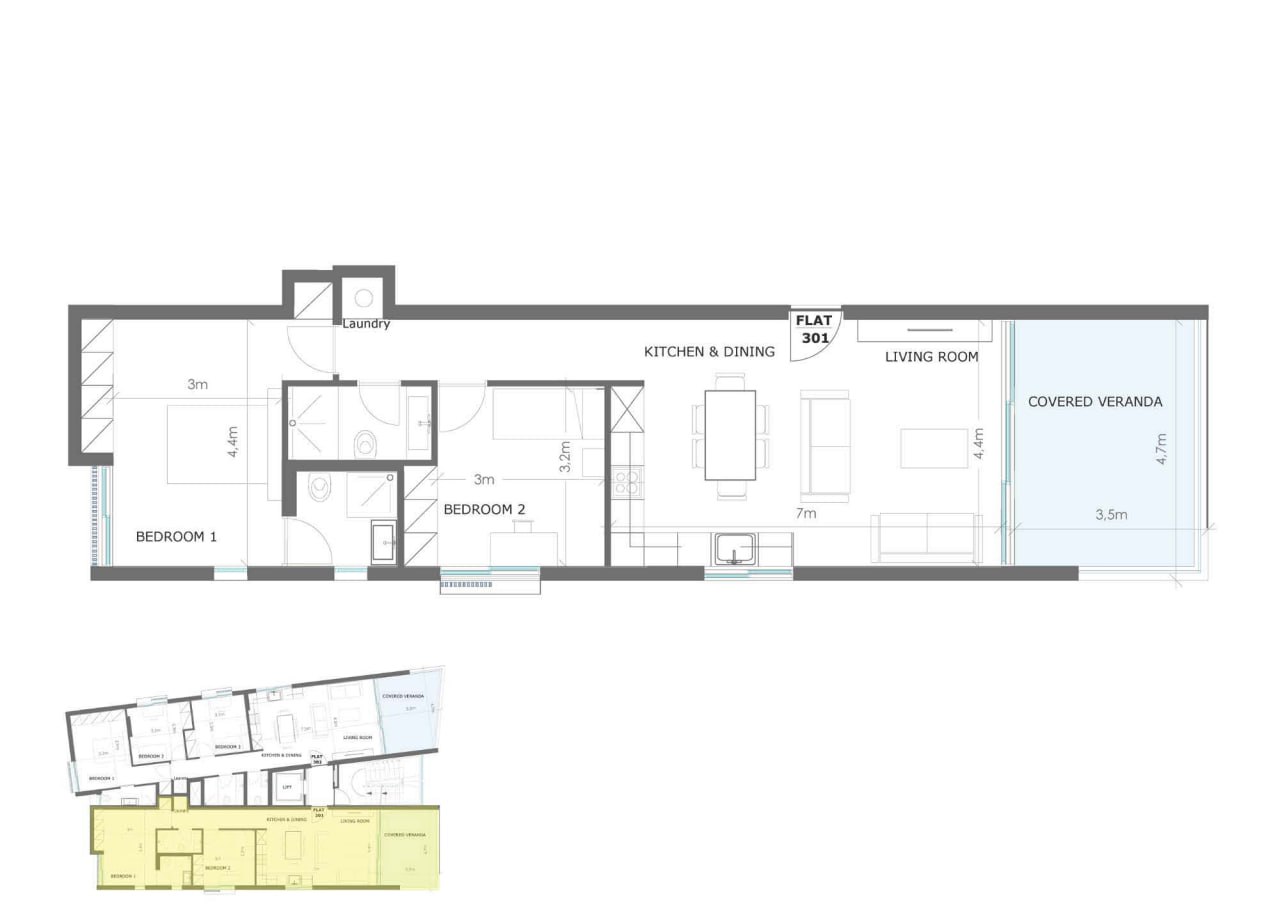
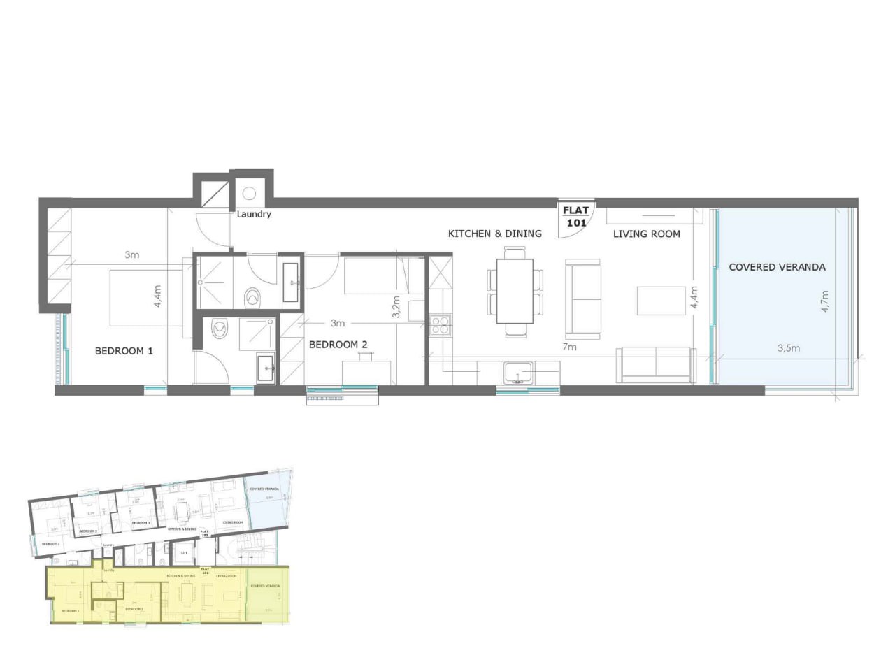
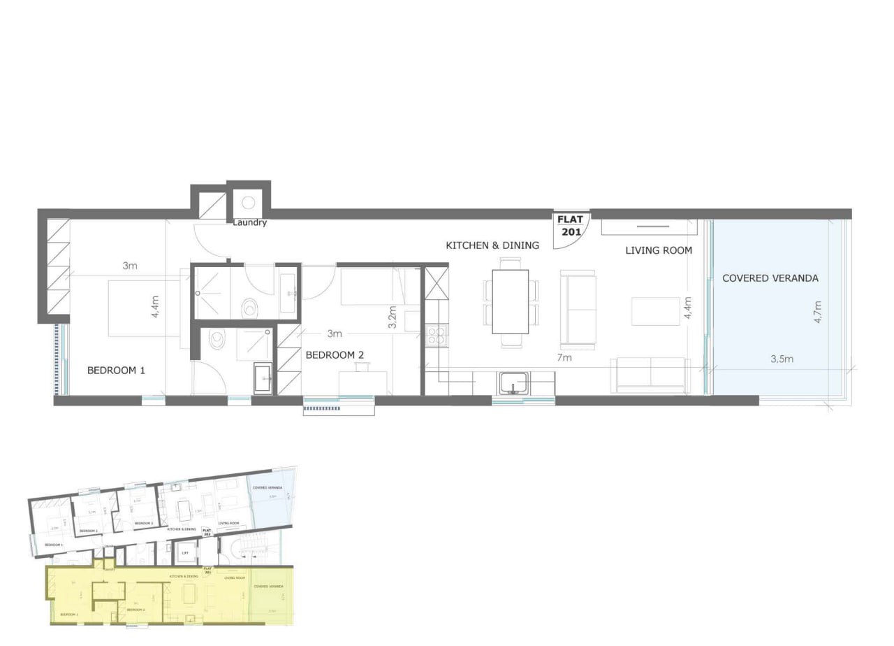
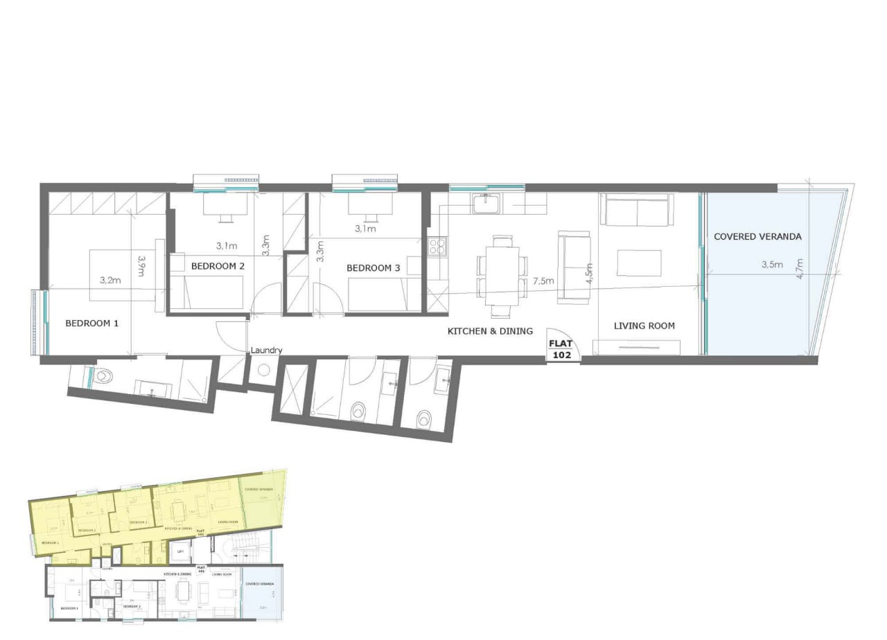
Apartment for sale in Strovolos, Nicosia. A modern three-storey building with six apartments, on each floor there are apartments with three and two bedrooms. Each apartment has a stylish open-plan kitchen and living room, as well as a spacious veranda. Master bedroom with en-suite bathroom. There is a separate laundry room. Only high-quality modern materials and plumbing are used in construction and decoration. This energy-efficient complex is rated "A", which significantly reduces utility costs. The project also provides a covered parking and a storage room. The apartment has large floor-to-ceiling balcony doors, underfloor heating with heat pump technology, preparation for the installation of air conditioning (hidden in the living room), Italian open-plan kitchens (Pedini) from Fabrica, electrically controlled external blinds, preparation for charging an electric vehicle. The complex is located on the top of Pernera Hill, offering stunning views and a peaceful environment, close to the English school and the park. This location ensures a peaceful life with easy access to urban amenities.
№203058
Apartment
City:
District:
Complex:
2
2
99 m²
83 m²
3
3
07/2026
A
€3,333 / m²
DOM Real Estate
+357 25 056 478











