New 2-bedroom villa in Limassol № 192938
Townhouse for sale in an exclusive complex providing not only luxury accommodation, but also first-class infrastructure for maintaining a comfortable and healthy lifestyle for the whole family in the area of Agios Tychonas, Limassol.
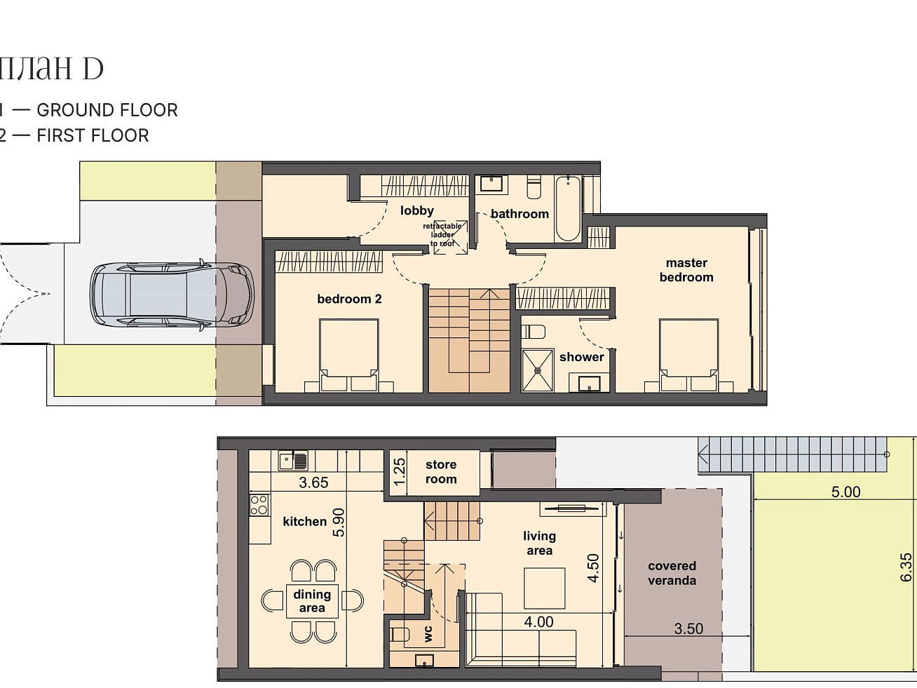
The project provides for an open-plan kitchen and living room. High-quality finish with a predominance of natural eco-materials (stone, wood).
The heat-insulating facade, heat-insulated doors and windows ensure high energy efficiency and reduce utility costs. Parking is available for the car.
The complex's infrastructure includes not only swimming pools and green areas for recreation, but also a clubhouse with a lounge area and coworking space, a padel court, a gym and yoga area, a summer cinema, and an indoor playground. In addition, there are guest parking spaces and 24-hour security. The central part of the territory is completely pedestrian—free of cars and traffic. The space is designed as a green safe zone for residents to walk and relax.
There is a diverse infrastructure nearby, and easy access to the expressway leading to key points in Limassol.
