
New 4-bedroom house in Paphos / Pomos №191754




Additional:
Description:
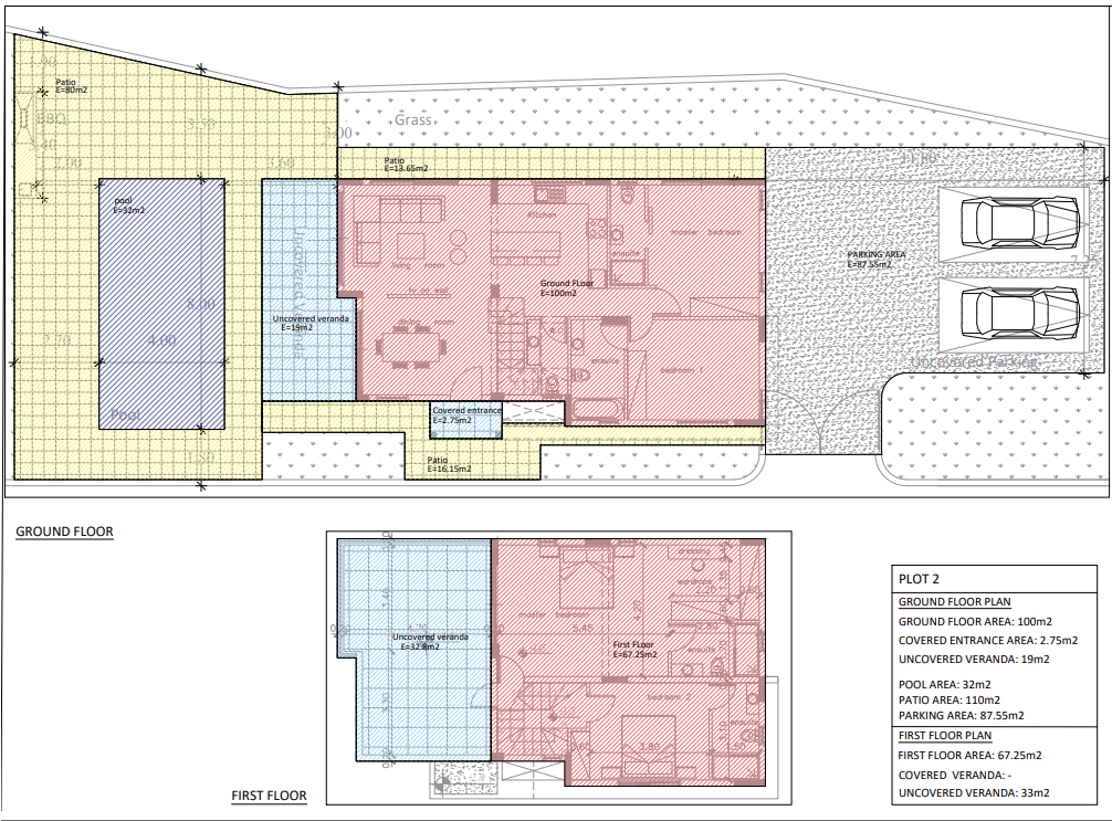
A modern 4-bedroom villa for sale in Pafos, Pomos, located just 100 meters from the beach. On the ground floor of the villa there are 2 double bedrooms with private bathrooms, and on the upper floor there are 2 more double bedrooms, also with bathrooms. The house is equipped with spacious areas, an open-plan kitchen. Outside, the villa has large private terraces with spectacular views of the sea and sunsets, a private pool measuring 8 x 4 meters and a garden with parking for two cars. This villa is designed for a peaceful and comfortable stay surrounded by nature, ideal for permanent residence, as well as for a vacation or a country weekend. The villa is located in the traditional fishing village of Pomos, which offers local amenities including shops and taverns by the sea. The coast is characterized by picturesque green mountains, beaches with black sand and stones, as well as crystal clear turquoise water. The fishing harbor is the center of local life, and nearby stretches a long stretch of pristine beach, sheltered by rocks.
№191754
House / Villa
City:
District:
Complex:
4
4
222 m²
170 m²
636 m²
2
07/2026
100 м
A
€3,401 / m²
DOM Real Estate
+35726020829











