New 2-bedroom flat in Larnaca № 190765
Additional:
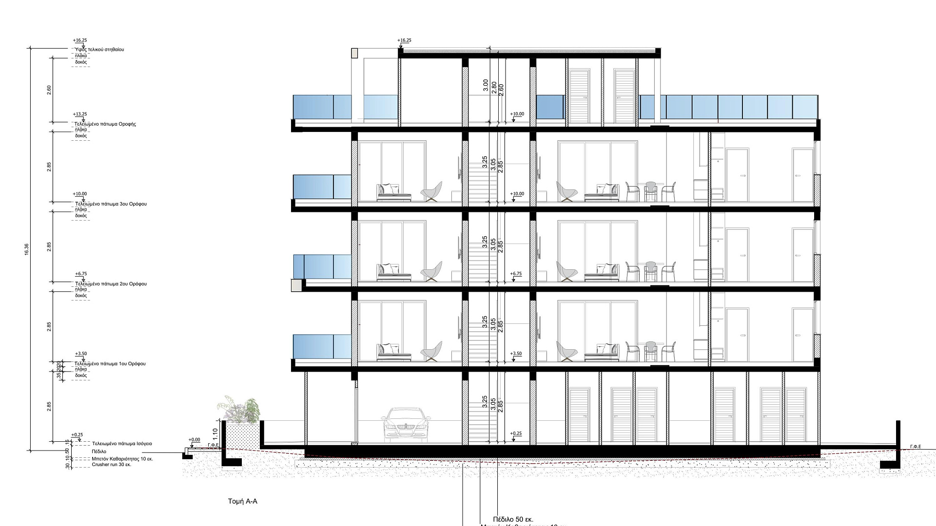
New building
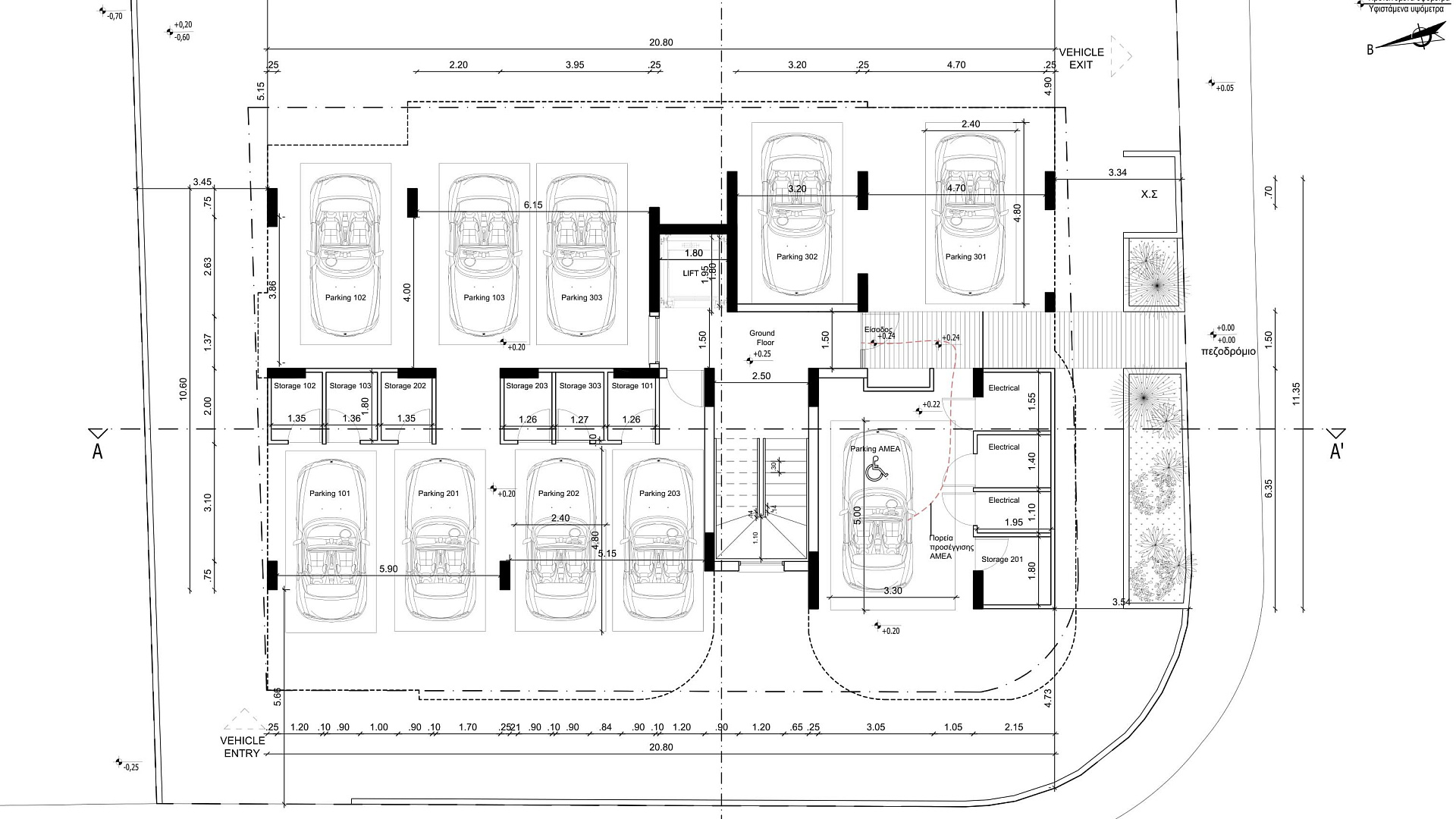
Parking
Storage
Elevator
Description:
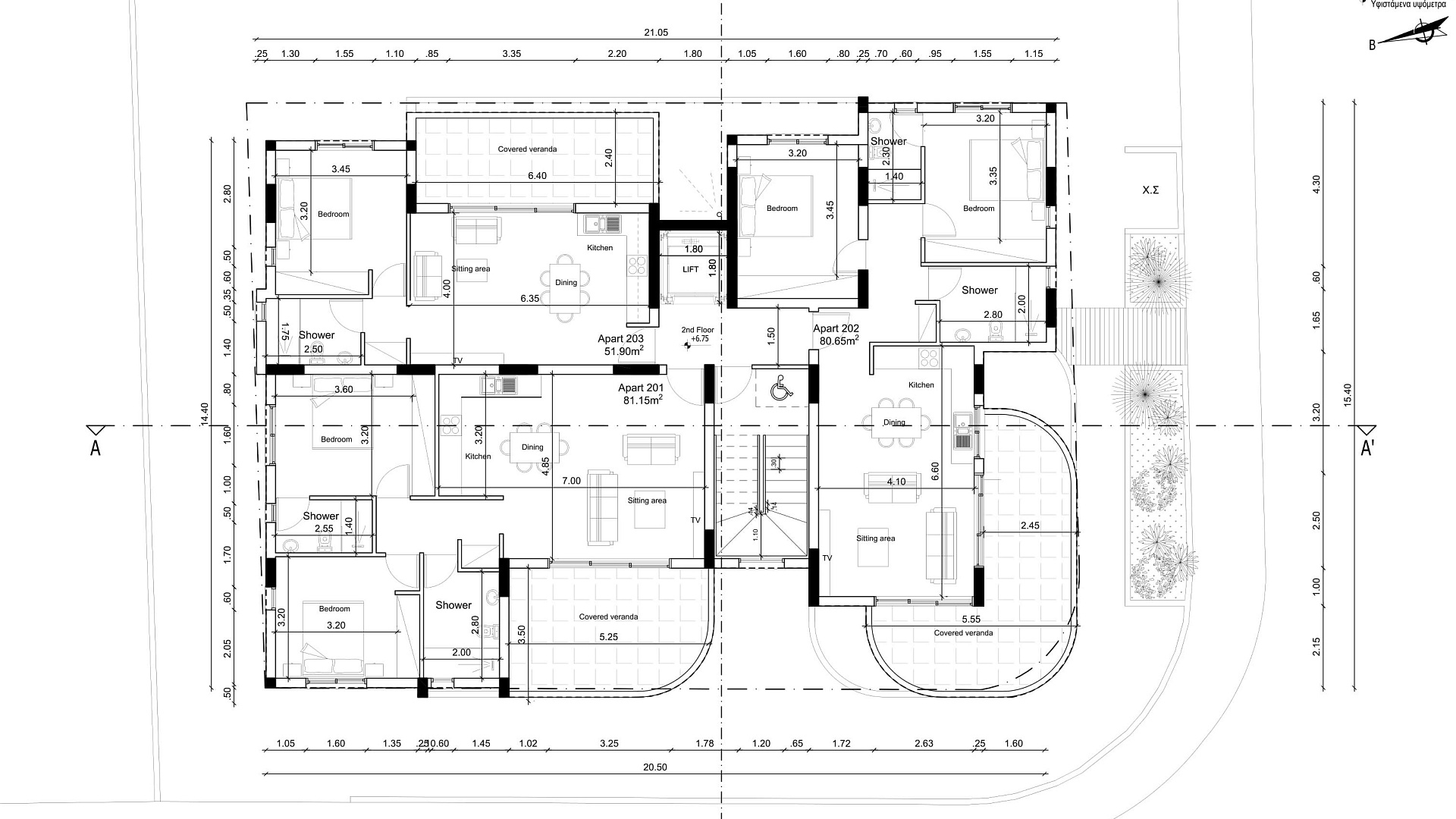
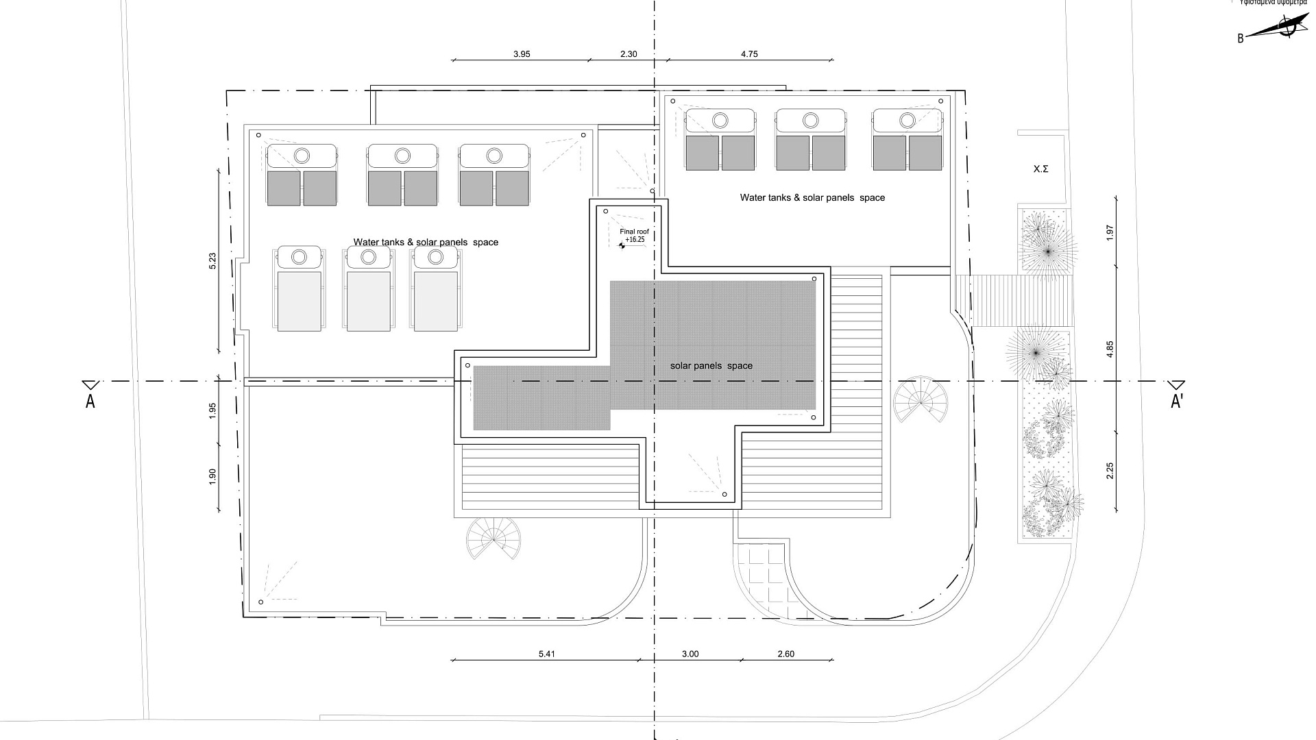
Modern apartment for sale in the area of Drosia, Larnaca. A new low-rise apartment complex with thoughtful layouts, high-quality materials and modern finishes. The apartment has energy-efficient windows, air conditioning, a photovoltaic system for common areas, as well as high-quality kitchen furniture and plumbing. Each apartment has its own parking space. The excellent location close to schools, shops and convenient transport interchanges makes housing an ideal option for living and investing.
Read more
Object
№190765
Type:
Apartment
City:
District:
Complex:
Developer:
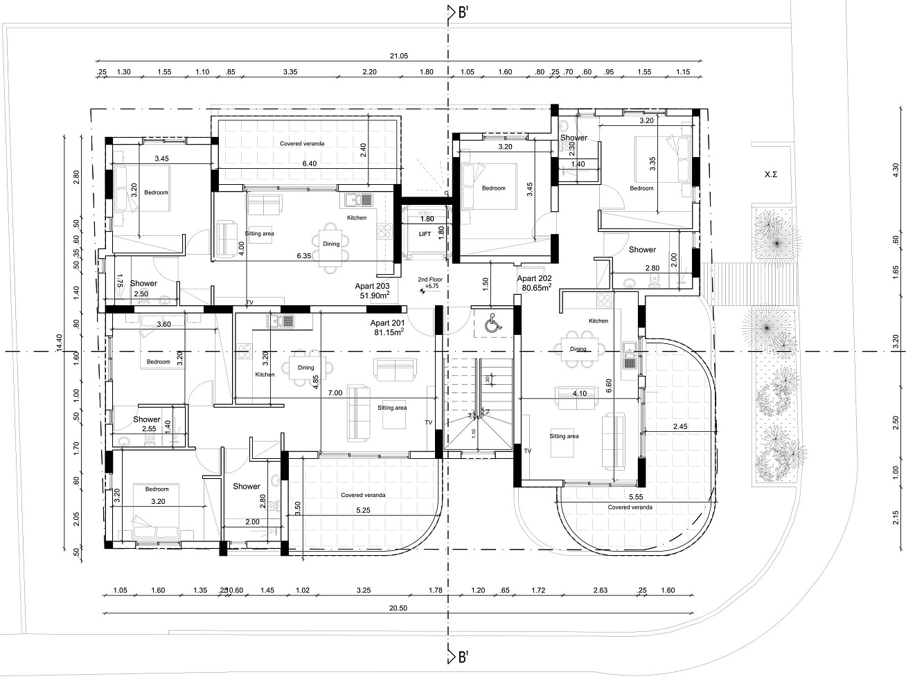
Bedrooms:
2
Bathrooms:
2
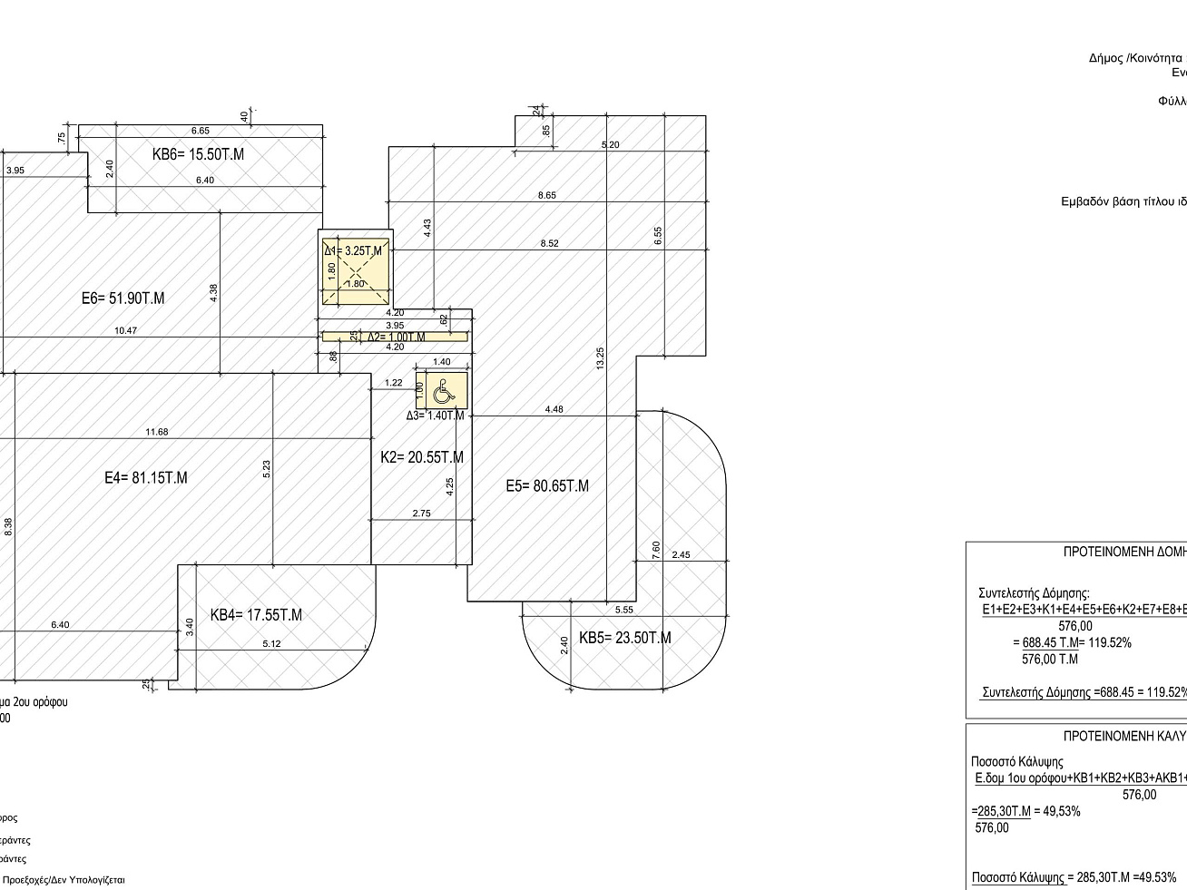
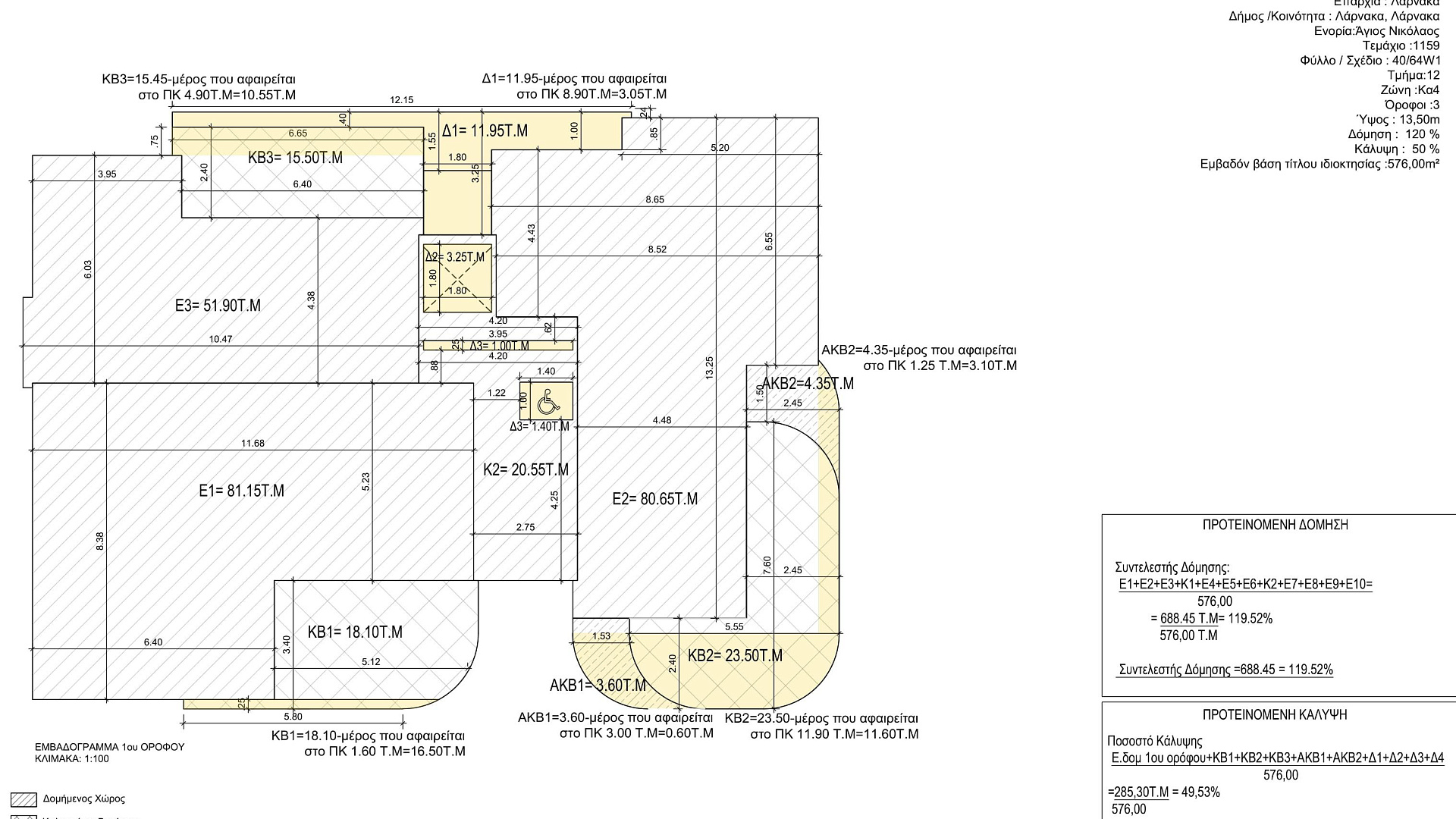
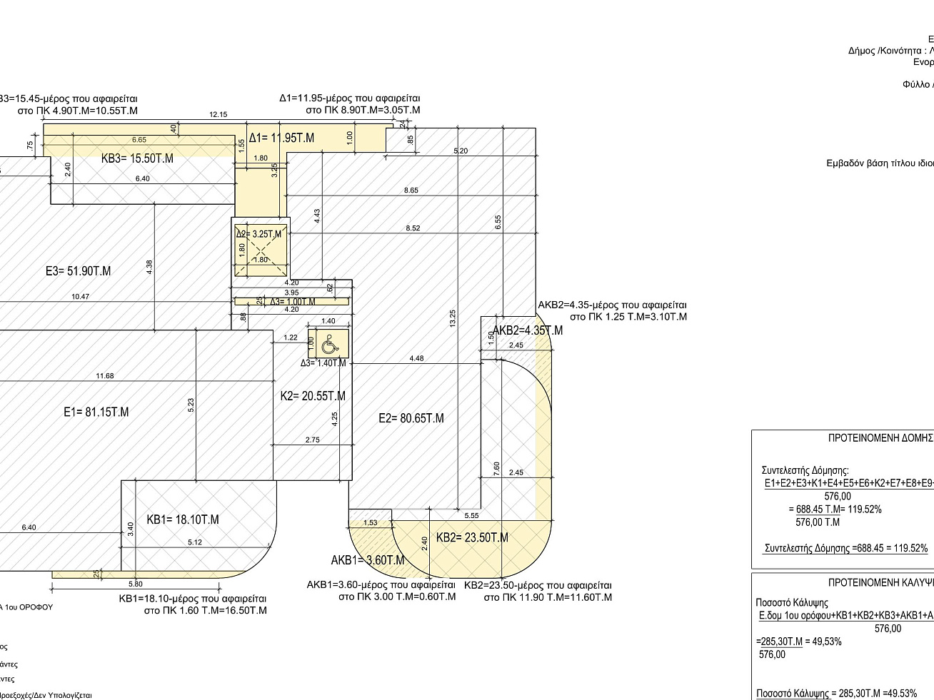
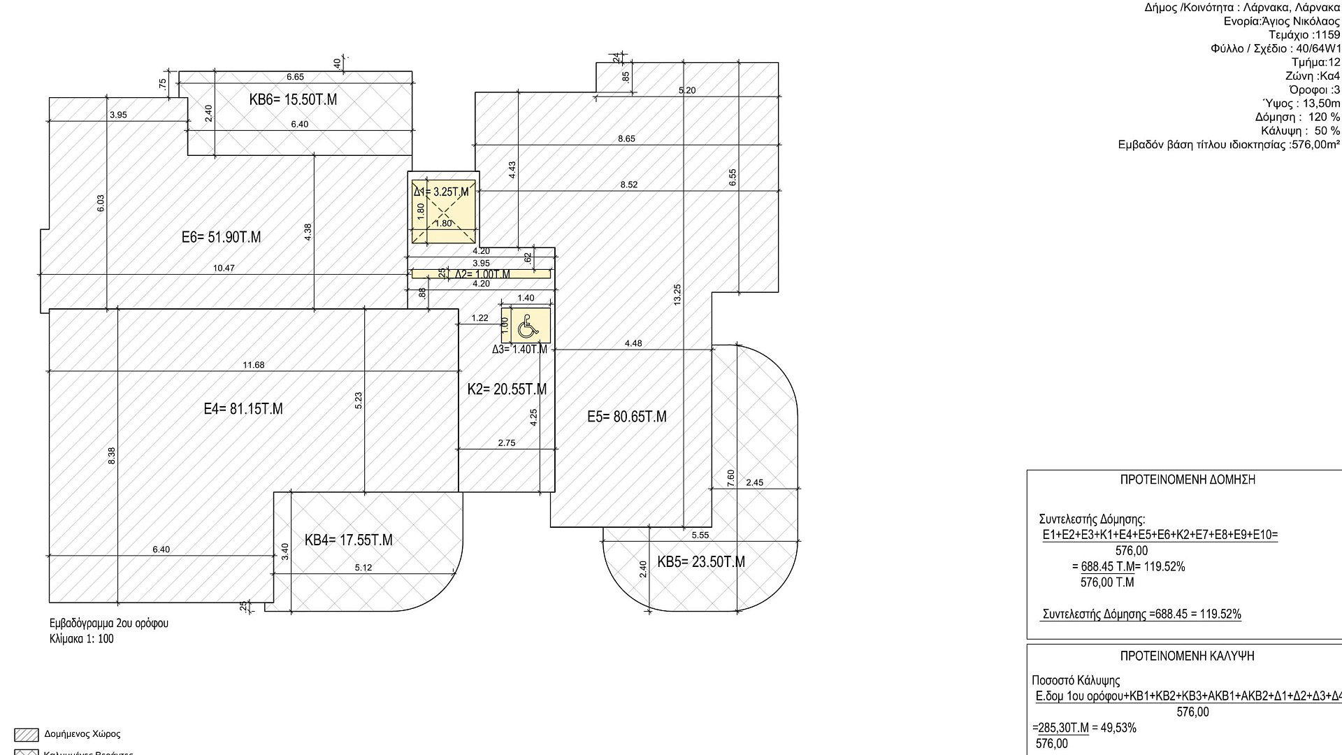
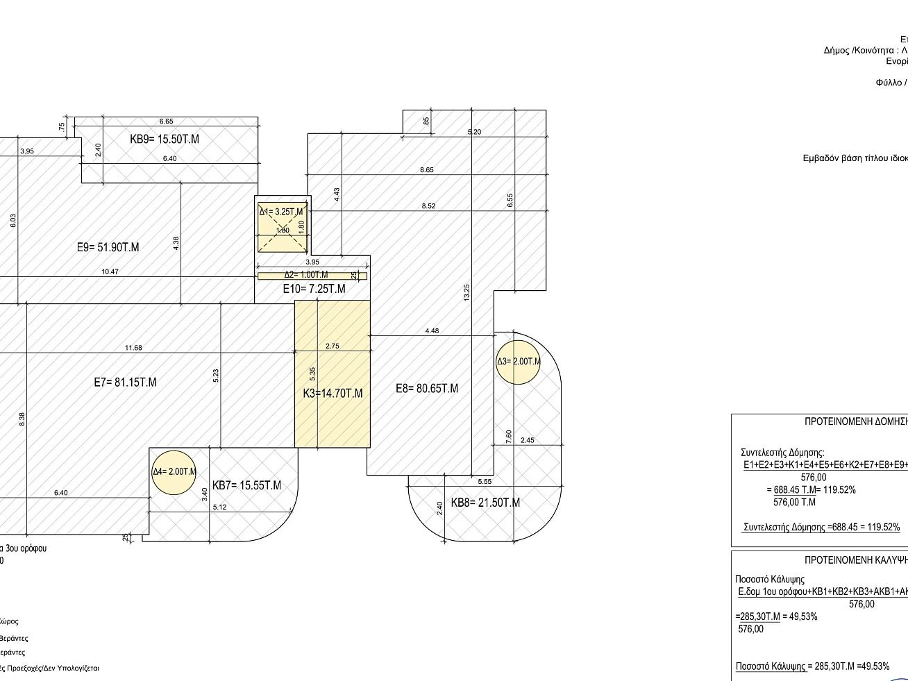
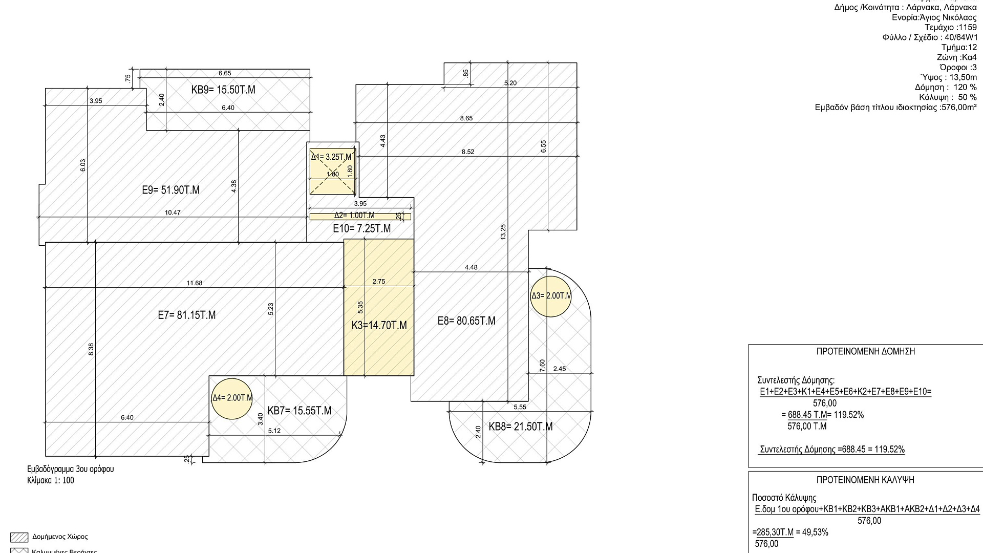
Total area:
93 m2
Indoor area:
76 m2
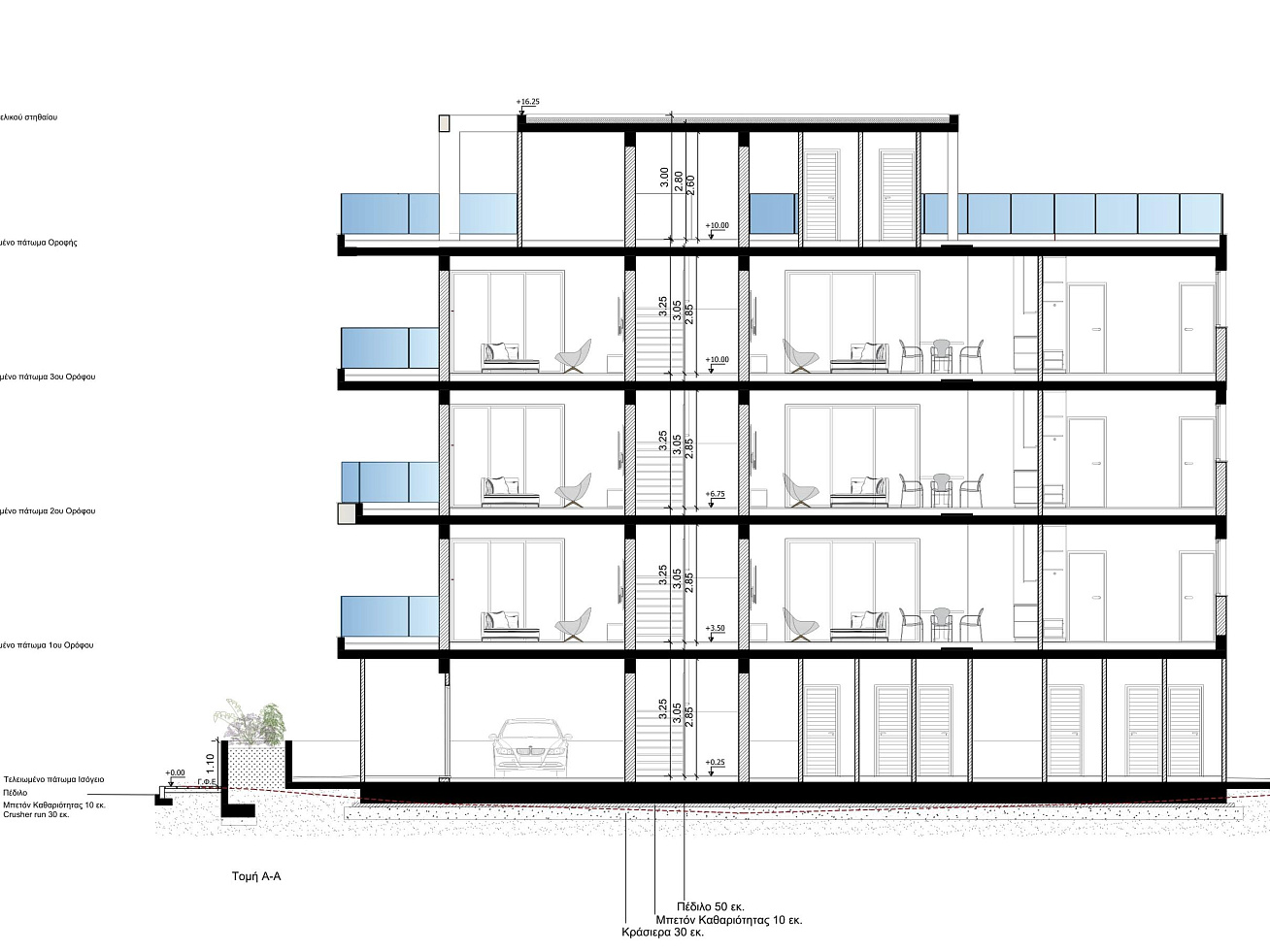
Storey:
3
Floor:
2
Year of construction:
12/2027
Distance to the sea:
2700 m
Energy efficiency class:
A
260 000 EUR
+ VAT
260000
2 796
EUR/m2
Schedule a viewing
Similar offers
12121 object
Show all
Previous viewed objects
5 objects
Show all
Interesting
