New 3-bedroom house in Limassol № 187196
Additional:
New building
Heating
Parking
Description:
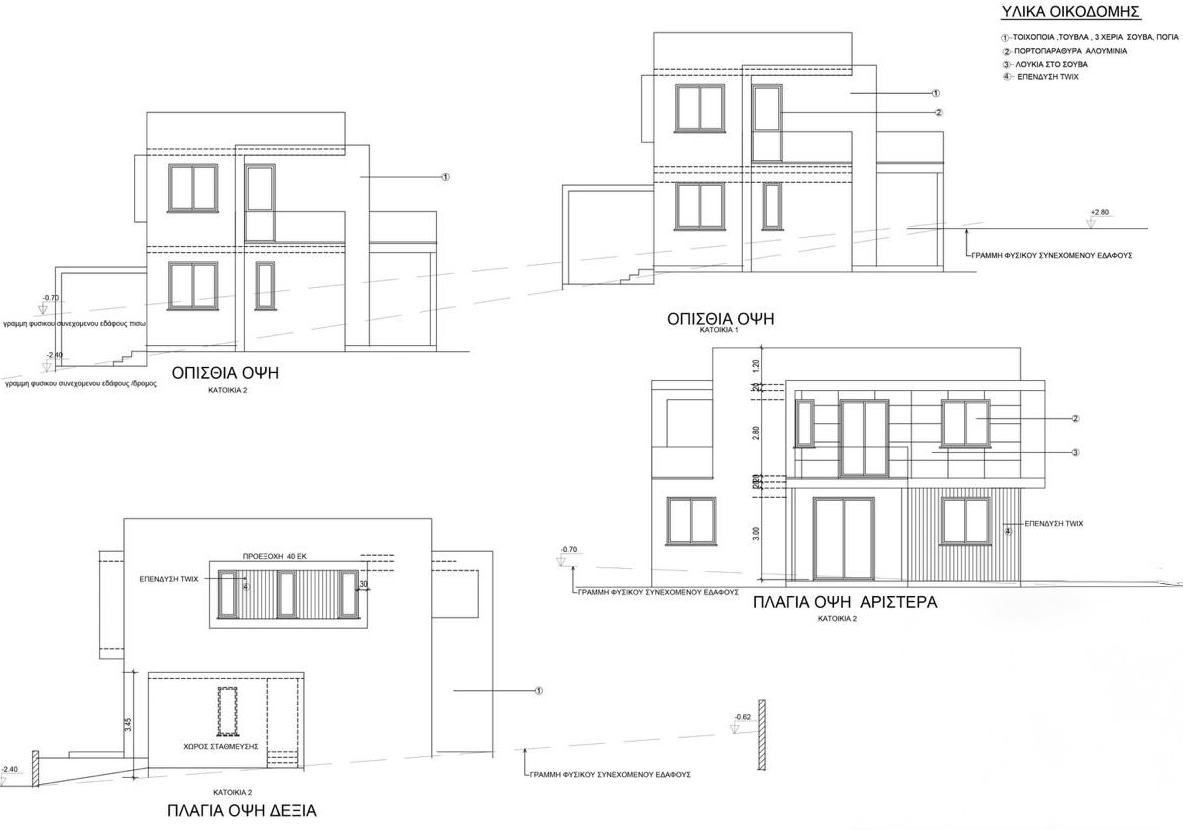
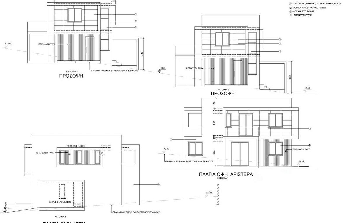
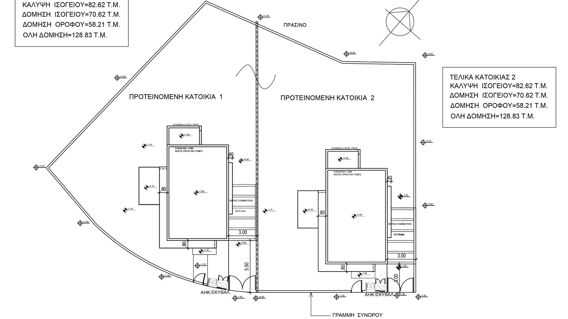
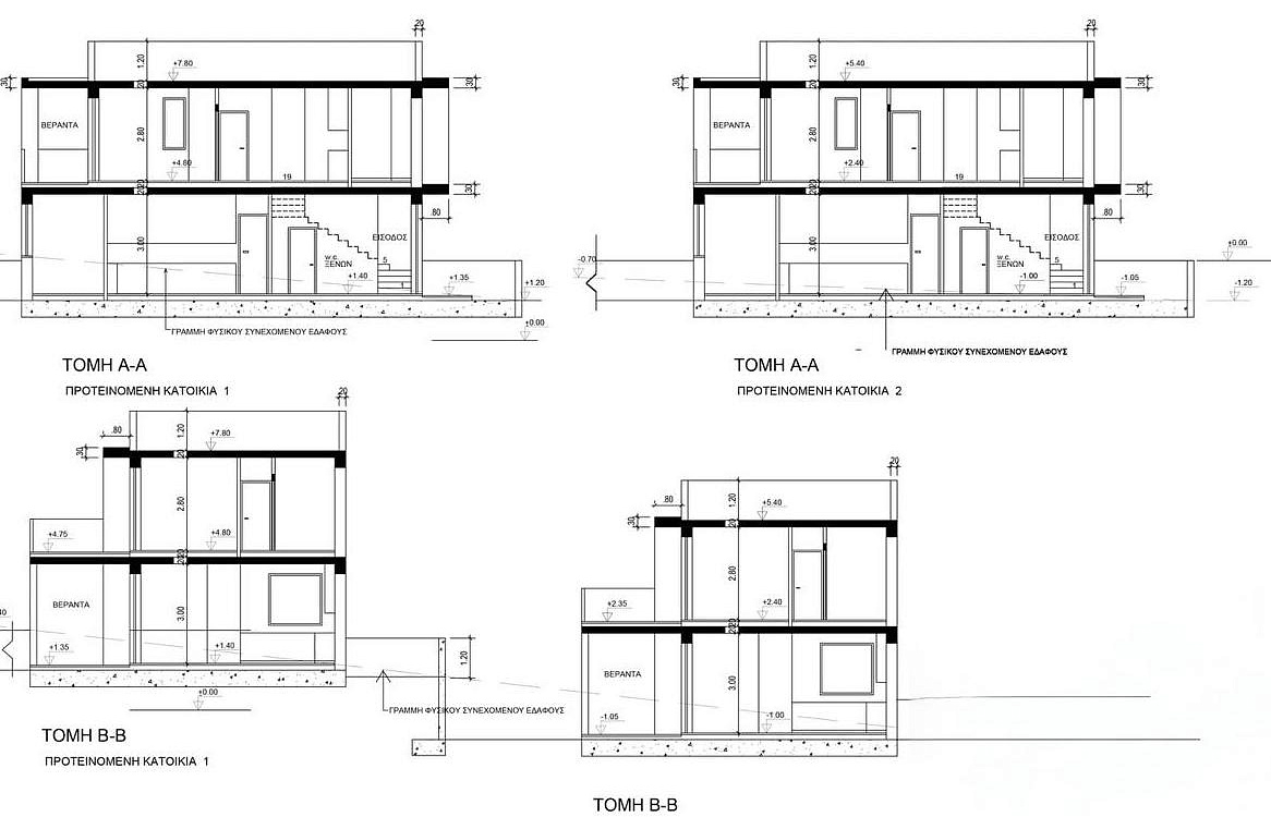
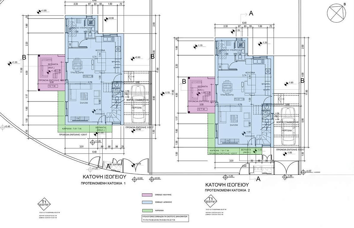
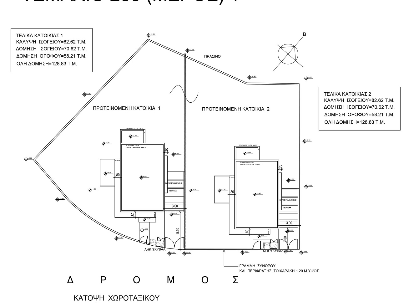
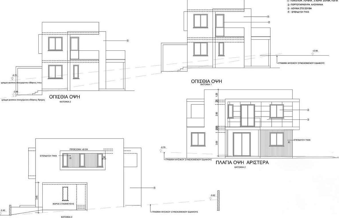
Villa for sale in a new residential complex on a hillside in the area of Parekklisia, Limassol. This boutique complex of nine detached houses offers the perfect combination of modern design and thoughtful functionality. The houses combine modern architecture with advanced energy efficiency and intelligent home automation. The house has an open-plan kitchen and living room, 3 bedrooms, 2 bathrooms, a guest toilet, a covered veranda with sea views. The project provides for the installation of a smart home system, underfloor heating, and photovoltaic panels.
Read more
Object
№187196
Type:
House / Villa
City:
District:
Complex:
Developer:
Bedrooms:
3
Bathrooms:
2
Total area:
148 m2
Indoor area:
130 m2
Land area:
433 m2
Storey:
2
Year of construction:
06/2027
Distance to the sea:
3850 m
Energy efficiency class:
A
475 000 EUR
+ VAT
475000
3 209
EUR/m2
Schedule a viewing
Similar offers
4264 objects
Show all
Previous viewed objects
10 objects
Show all
Interesting
