New residential building in Limassol № 182332
A residential building is for sale, which is part of a comprehensive multifunctional project that combines comfortable residential apartments and modern office space. The property is located in the prestigious area of Agios Athanasios (Limassol), surrounded by key business centers of the city.
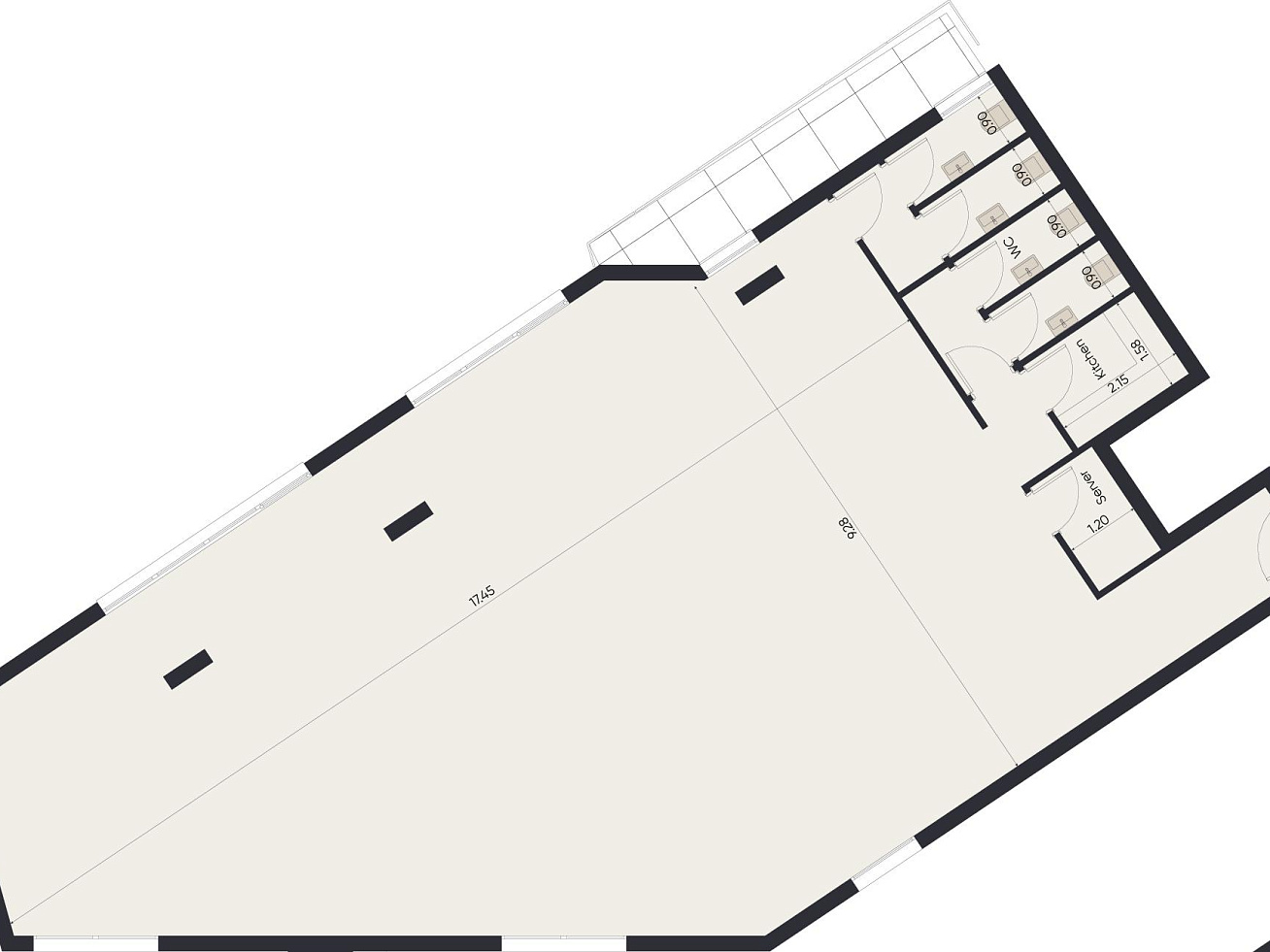
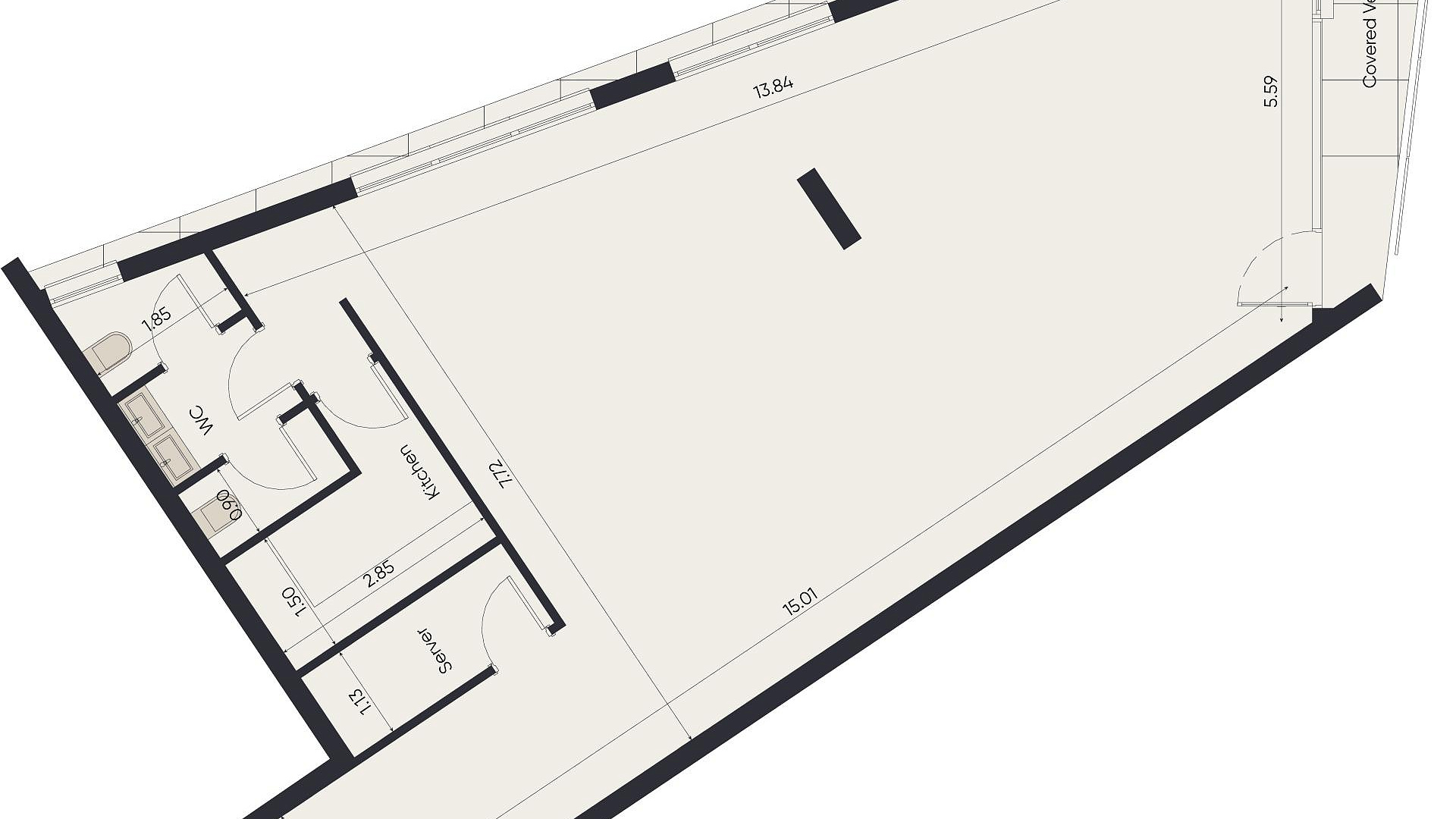
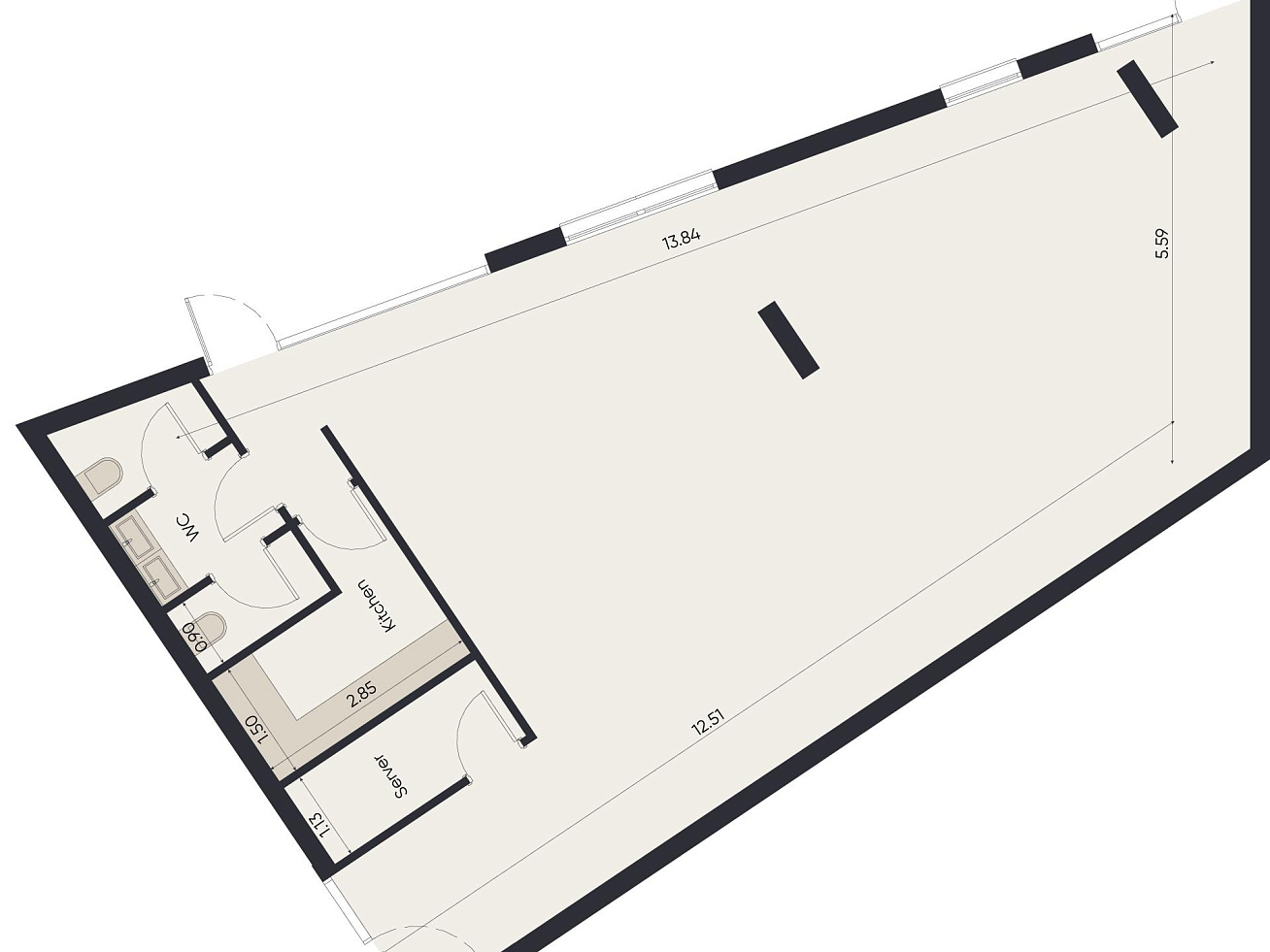
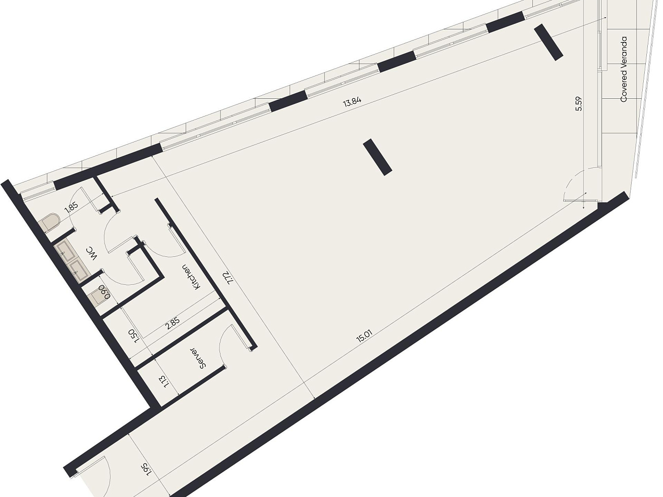
There are two shops on the ground floor of the building.
The residential area includes 15 apartments of various types: 2 studios, 4 single, 5 double, 2 triple, 2 quadruple. The apartments are distinguished by thoughtful layouts, high-level finishes and provide maximum comfort for living.
Parking and storage rooms are provided for the comfort of residents. Special attention is paid to the recreation and relaxation area. The SPA area includes a hot tub, two pools, a playground, a cafe and a kiosk, offering a variety of leisure activities. Fans of an active lifestyle will appreciate the availability of a modern gym equipped with all the necessary equipment.
Everything you need is within walking distance: grocery stores, cafes, pharmacies and electronics stores 20 minutes walk to the sea. Miami Beach (Blue Flag) - 1.6 km, Dasoudi Park - 2.9 km, AlphaMega Supermarket - 1.1 km.
The project also includes a commercial block comprising 7 offices of various sizes: 104 m2, 116 m2, 187 m2, 116 m2, 187 m2, 116 m2 and 187 m2. The office part harmoniously complements the residential complex, creating a balanced environment for living and working.
This multifunctional project is not just a real estate object, but a thoughtful space for a comfortable life and business. Due to its convenient location, well-developed infrastructure and premium amenities, this offer is an attractive investment with high growth potential.
