New office in Limassol № 154698
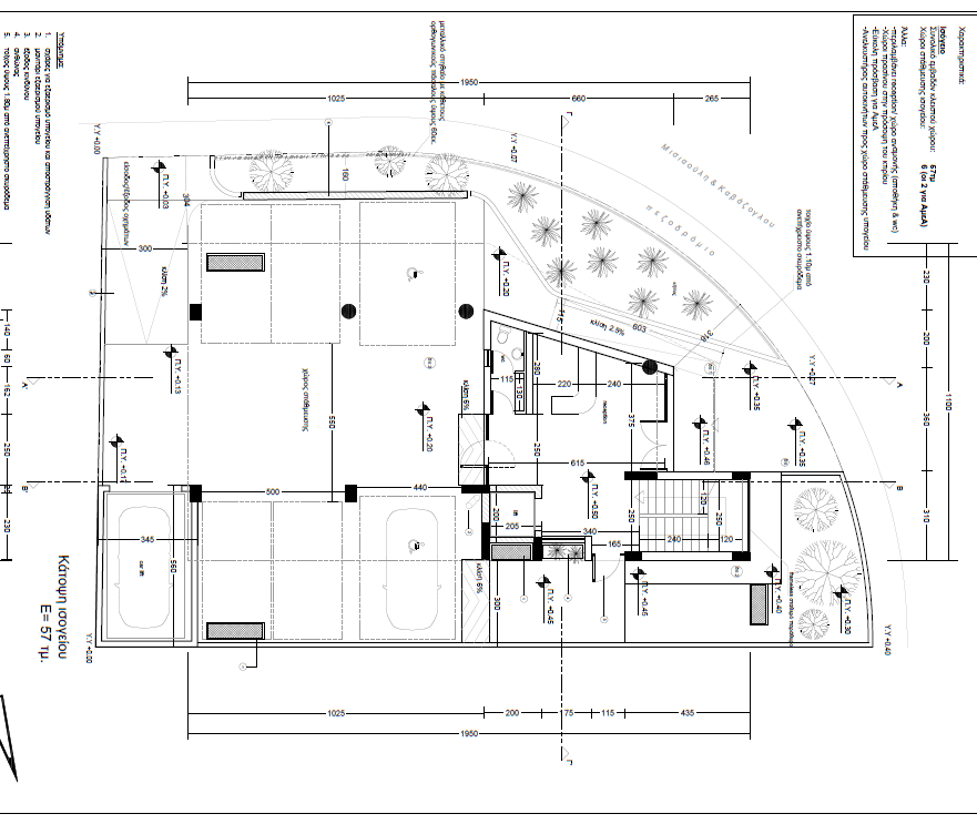
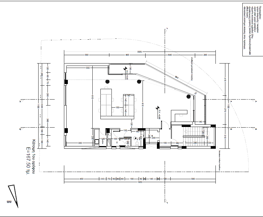
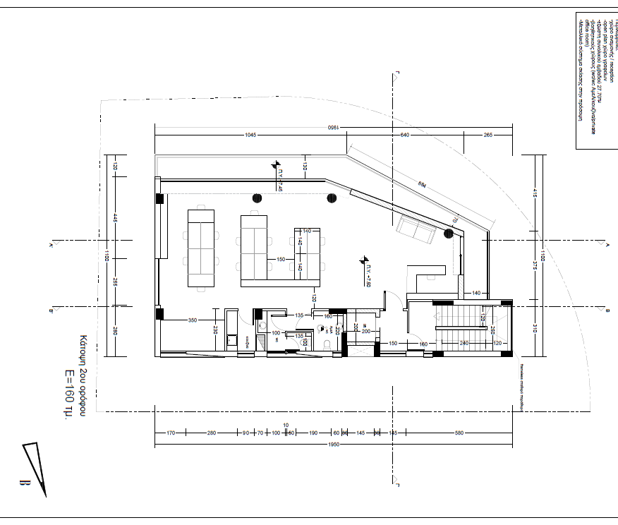
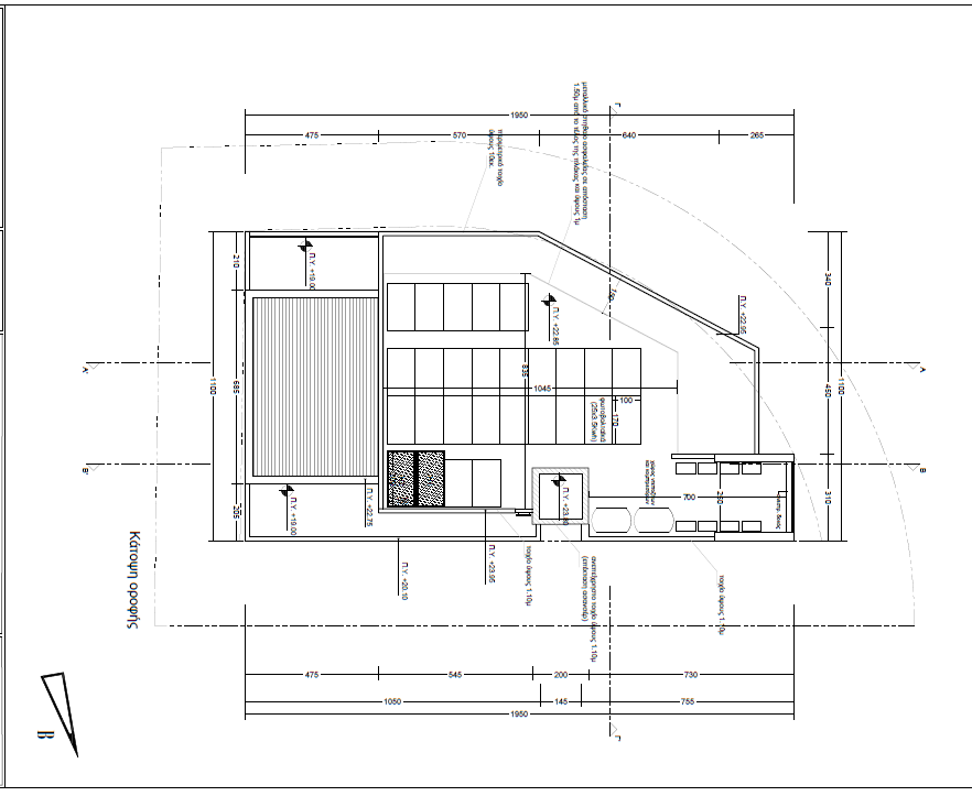
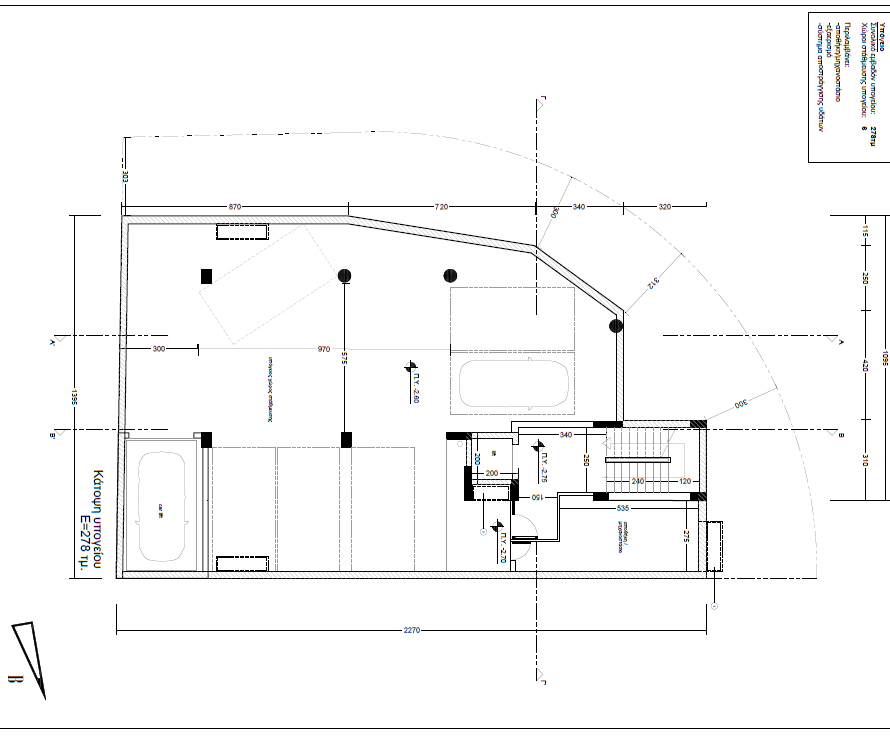
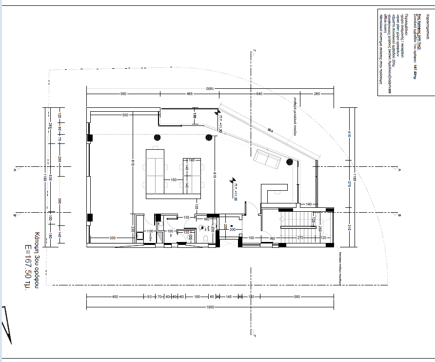
Sale of an office center under construction in Agios Ioannis, Limassol. The building is situated on Makarios avenue and consists of 5 floors. Basement: total 278 m2, 6 parking places, it includes warehouse/mechanical room, ventilation system and water drainage system, ground floor: total 57 m2, 6 parking places (two for disabled people), it includes a reception area, a waiting area, warehouse and w.c., a small garden on the front of the building and a car lift to the basement parking area. First floor: total 168 m2, it includes a reception area, a waiting/reception area, an open plan office area, a terrace with a total area of 20 m2., auxiliary areas - w.c. and w.c. for disabled, kitchen and private office room. Second floor: total 160 m2, it includes a reception area, a waiting/reception area, an open plan office area, a terrace with a total area of 28 m2, auxiliary areas - w.c. and w.c.disabled, kitchen and private office room. Third floor: total 168 m2, it includes a reception area, a waiting/reception area, an open plan office area, a terrace with a total area of 20 m2, auxiliary areas - w.c. and w.c. for disabled, kitchen and private office room. Fourth floor: total 160 m2, it includes a reception area, a waiting/reception area, an open plan office area, a terrace with a total area of 28 m2, auxiliary areas, w.c. and w.c.disabled, kitchen and private office room. Fifth floor: total 99 m2, it includes an office, living room, meeting room, auxiliary spaces w.c., bathroom, kitchen and storage, an outdoor area of 92 m2.
