Новый 3-спальный пентхаус в Лимассоле №75299
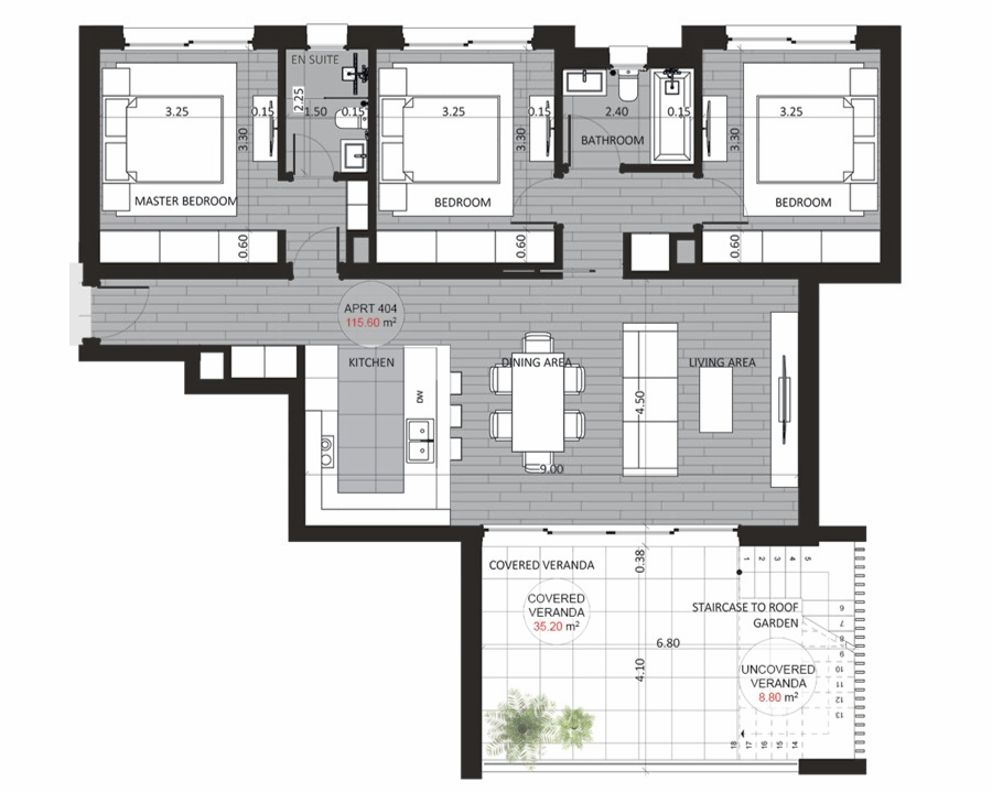
Продается пентхаус в новом жилом комплексе премиум-класса в районе Гермасойя, Лимассол. Проект включает в себя 16 квартир премиум-класса в процветающем районе, центральное место в самом сердце туристической зоны Лимассола, где царит оживленная жизнь, магазины и бесконечное множество высококлассных ресторанов Лимассола. Продуманное пространство и эргономичная сантехника от ведущих европейских брендов. Элегантный дизайн, внимание к деталям, высокие потолки до трех метров. Современная удобная кухня с гранитными рабочими поверхностями. Встроенная мебель и натуральные материалы. Пожароустойчивая входная дверь с современной замочной системой. Белые межкомнатные двери. Балконные двери (высота: 2,40 м) и окна (высота: 1,4 м). Алюминиевый профиль с двойным остеклением и теплоизоляцией. Стеклянные балконные балюстрады. Встроенные гардеробные в спальнях. ЛДСП и белая матовая финишная отделка. Закрытая охраняемая территория. Блокировочные системы входных дверей с высоким уровнем безопасности. Видеодомофоны в каждом апартаменте. Изысканные пентхаусы с собственным спа-салоном и просторными террасами.
