Новая 2-спальная квартира в Пафосе №204238
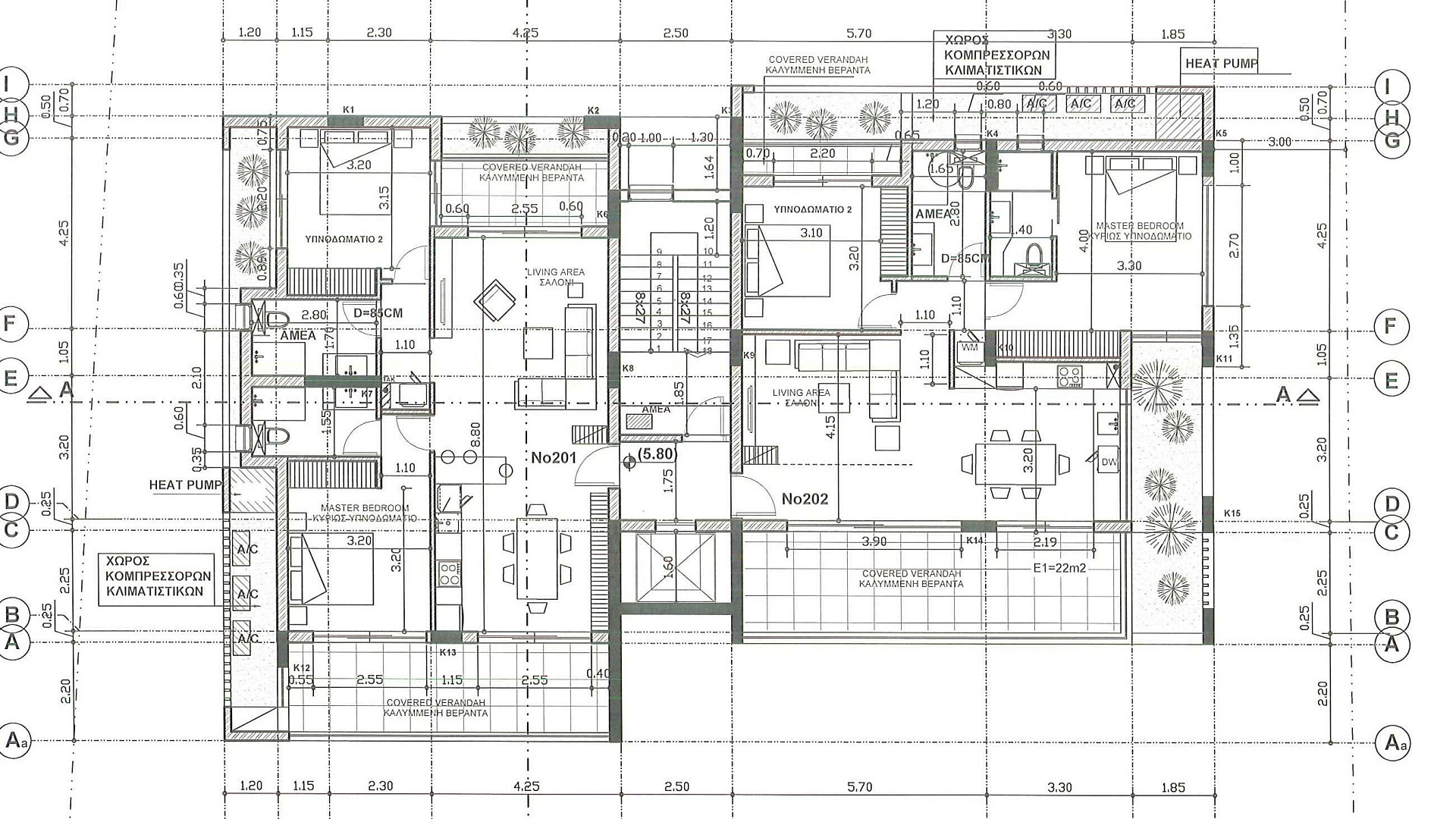
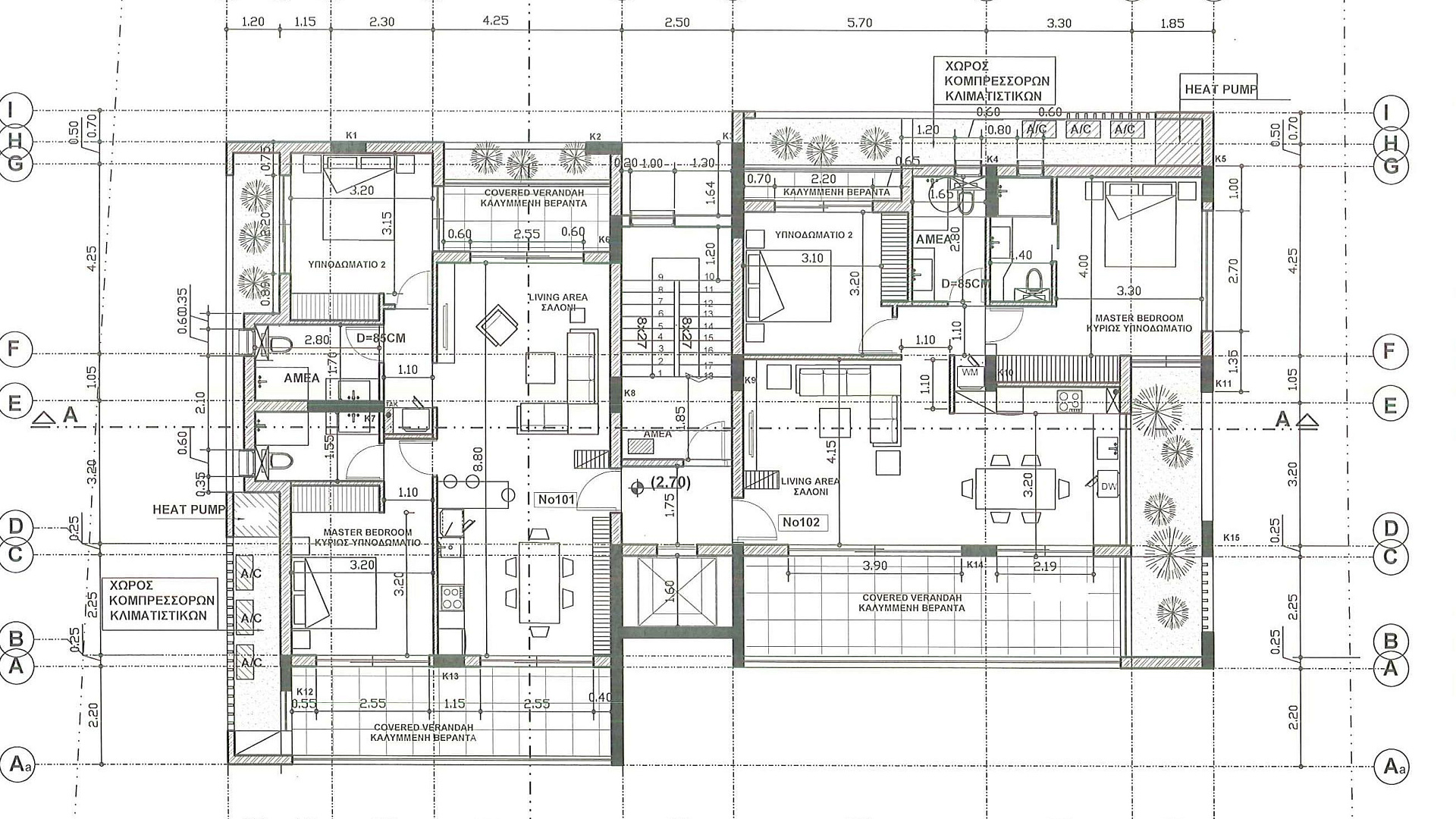
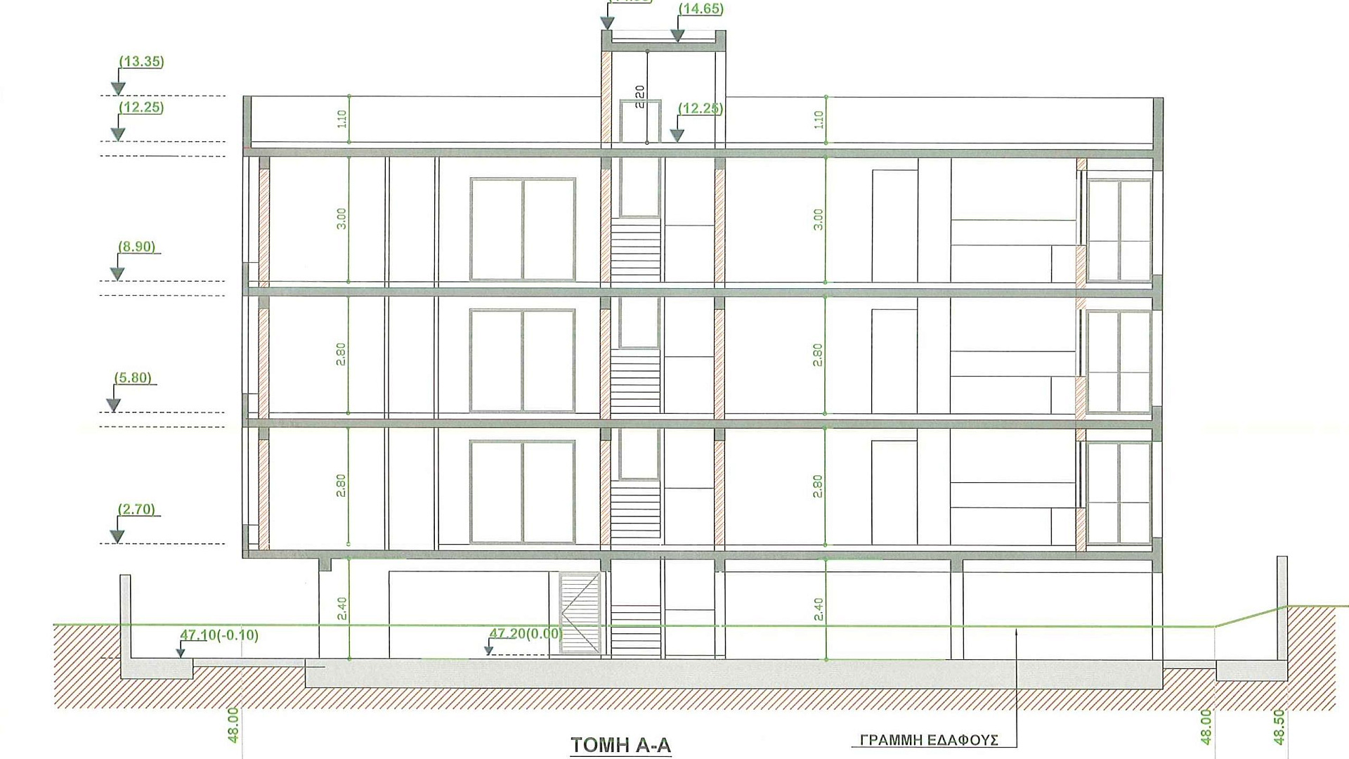
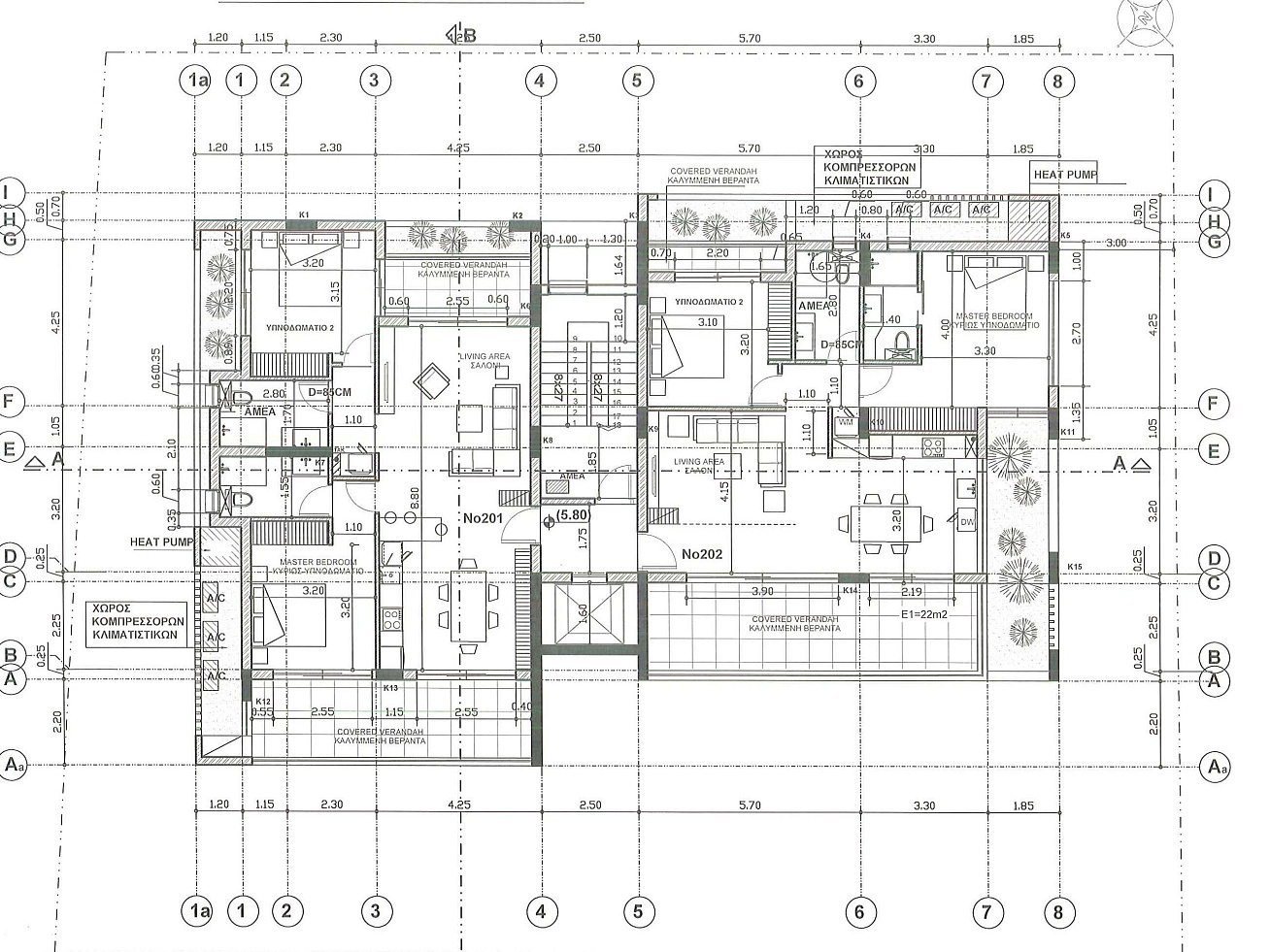
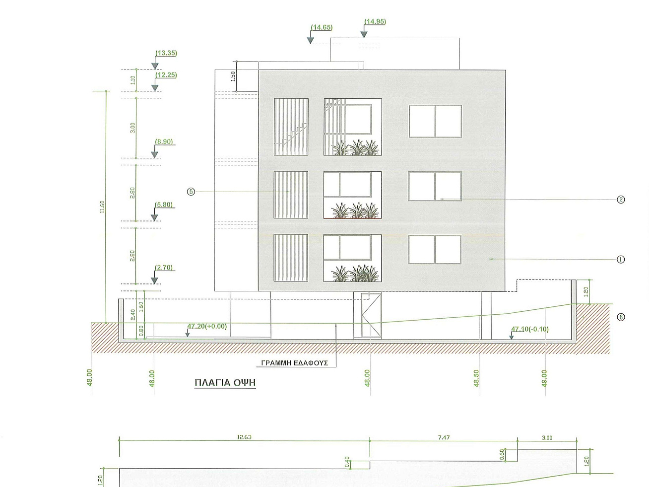
Продается квартира в новом современном комплексе в районе Universal, Пафос. В трехэтажном комплексе всего 6 апартаментов. В каждой квартире кухня и гостиная открытого плана, две спальни, две ванных комнаты, просторная частная терраса и зеленая зона.
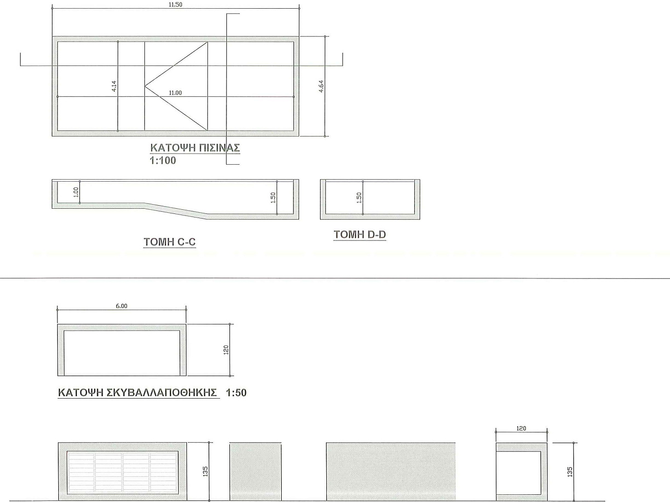
Жизнь в комплексе комфортна и безопасна благодаря частной охраняемой территории. Для жителей обустроен общий бассейн и крыша здания, где обустроена общая зона для барбекю.
Инфраструктура района развита и ориентирована на повседневные потребности. В нескольких минутах ходьбы от дома расположены киоски, аптеки, фитнес-центры. Для семей с детьми наличие нескольких школ, детских садов и игровых площадок в округе является значительным преимуществом.
Данная квартира в Пафосе представляет собой отличный выбор для тех, кто ценит современный формат жилья, спокойную локацию в пешей доступности от инфраструктуры.
