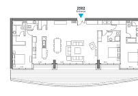
Новые 3-спальные апартаменты в Лимассоле №204002
Продается 3-спальная квартира класса люкс, расположенная на берегу моря в районе Tsiflikoudia, Лимассол. Проект расположен в самом сердце Лимассола и представляет собой 3 жилые башни, предлагающие беспрепятственный вид на Средиземное море из всех резиденций и веранд, а также 4300 квадратных метров жилищных удобств на открытом воздухе. Кроме того, проект является шикарной инвестиционной возможностью благодаря идеальному местоположению—всего в 300 метрах от марины Лимассола.
В комплексе будет50-метровый открытый бассейн с панорамным видом на море, 25-метровый крытый бассейн с подогревом и естественным освещением, 13000 квадратных метров SPA зоны и фитнес зала. Подземная парковка, бистро и ресторан, а также круглосуточные услуги консьержа, обслуживание квартир, управление недвижимостью и департамент аренды удовлетворит любые потребности клиента.
Особенности проекта:
- Ландшафтные сады на высоте 9 метров над уровнем моря
- Бескомпромиссный вид на море из любой резиденции
- Профессиональное обслуживание и консьерж сервис 24/7
- Лобби
- Открытый бассейн 50 метров
- Закрытый бассейн с подогревом 25 метров
- Подземный паркинг
- Гимнастический зал и SPA
- Ресторан
- Детская площадка
Особенности квартиры:
- Система "Умный дом"
- Немецкая кухня
- Теплые полы
- Система кондиционирования
- Высокие потолки
- Панорамный вид на море
- Окна с двойным остеклением
