Новая 2-спальная квартира в Никосии №200124
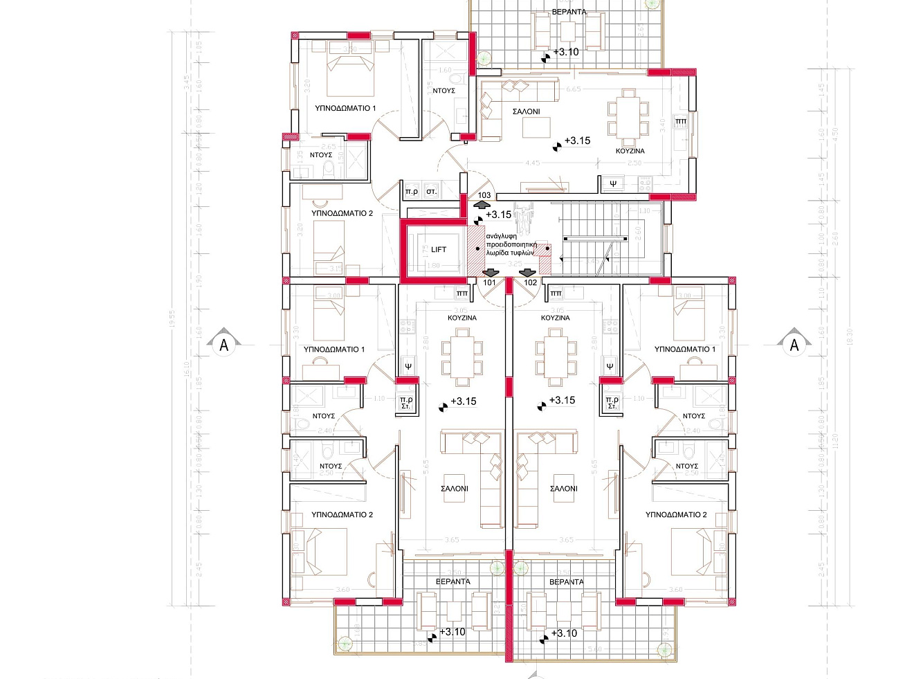
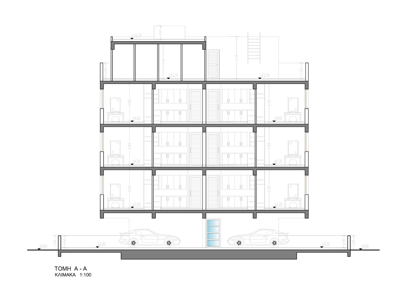
Продаётся 2-спальная квартира в районе Kaimakli, Nicosia, расположенная в современном жилом комплексе нового строительства. Квартира отличается удобной и функциональной планировкой, светлыми жилыми зонами и хорошим естественным освещением, что создаёт комфортную атмосферу для повседневной жизни.
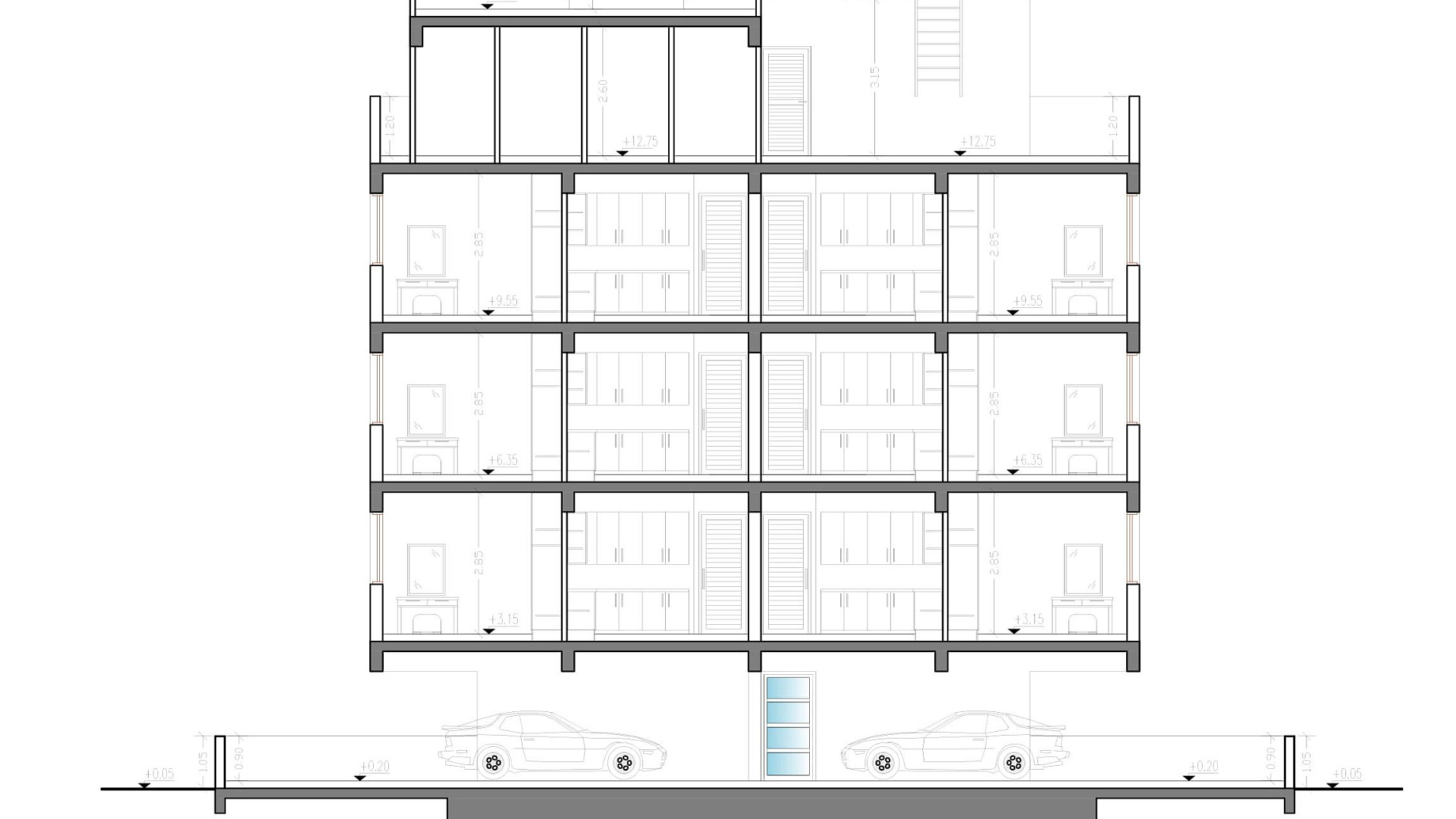
Здание построено с использованием железобетонного каркаса и современных строительных технологий. В квартире предусмотрены качественная теплоизоляция, алюминиевые окна и двери с двойным энергосберегающим остеклением, керамическая плитка, современная сантехника, солнечный водонагреватель и система водоснабжения pipe-in-pipe. Есть подготовка для установки кондиционеров во всех помещениях.
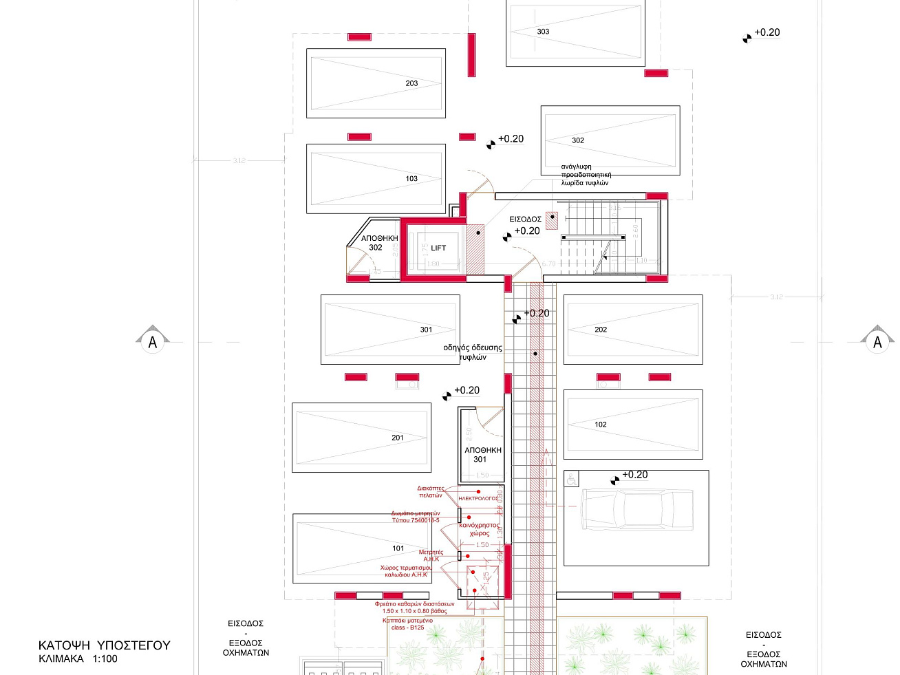
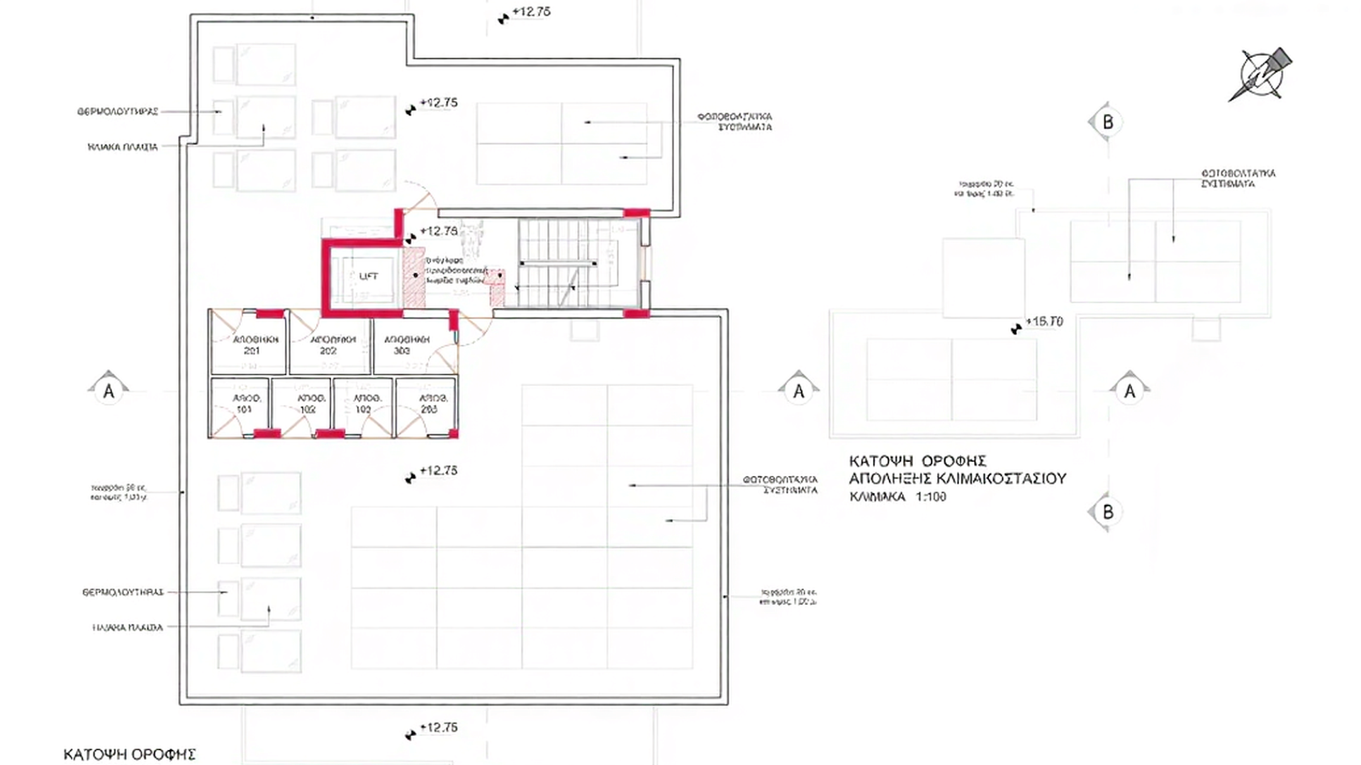
Квартира располагает верандой, крытым парковочным местом и индивидуальной кладовой. В комплексе предусмотрен лифт и благоустроенные общие зоны. Удобное расположение в районе Kaimakli обеспечивает быстрый доступ к центру Никосии, школам, магазинам и основным автомагистралям. Недвижимость находится в зоне государственной субсидии для отдалённых районов.
