
New 2-bedroom penthouse in Nicosia / Aglantzia №200038




1
Additional:
Elevator
Pantry
Parking
Heating
Description:
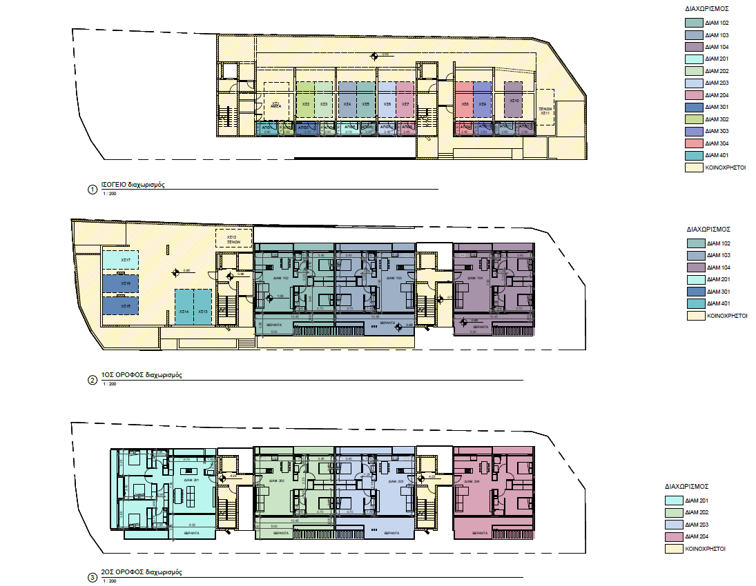
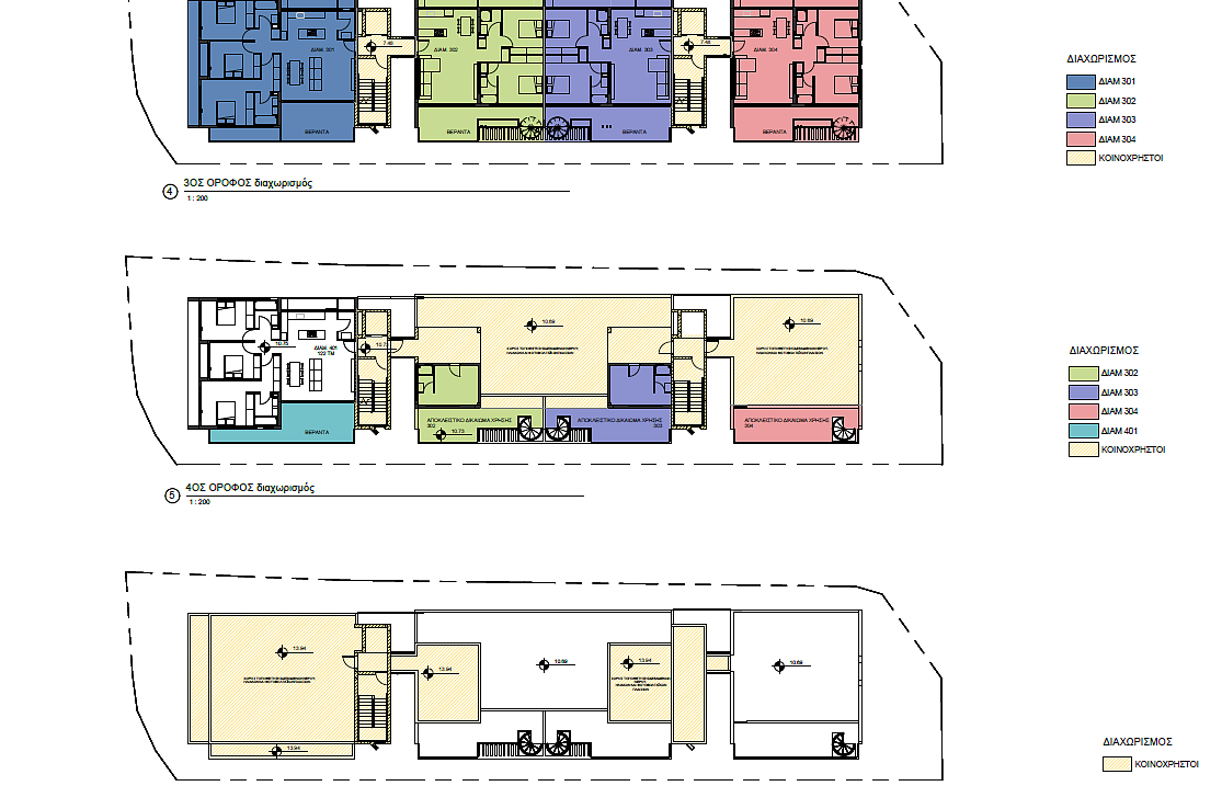
Penthouses with a roof terrace for sale in a new complex located in the heart of Aglantzia, Nicosia. The complex is a modern four-storey residential building designed for a comfortable and convenient urban life. In total, the project provides 12 exclusive apartments: nine 2-bedroom apartments and three 3-bedroom apartments, offering stylish and functional living space. The price of all 2- and 3-bedroom apartments includes a photovoltaic system and underfloor heating, which ensures a high level of comfort and energy efficiency.
Object
№200038
Type:
Apartment
City:
District:
Complex:
Developer:
Bedrooms count:
2
Bathrooms:
2
Total area:
110 m²
Living area:
89 m²
Floor:
3
Floors:
4
Construction year:
07/2027
Energy class:
A
€270,000+ VAT
€2,455 / m²
€295,000
DOM Real Estate
+357 22 008 359











