Новая 4-спальная вилла в Никосии №196667
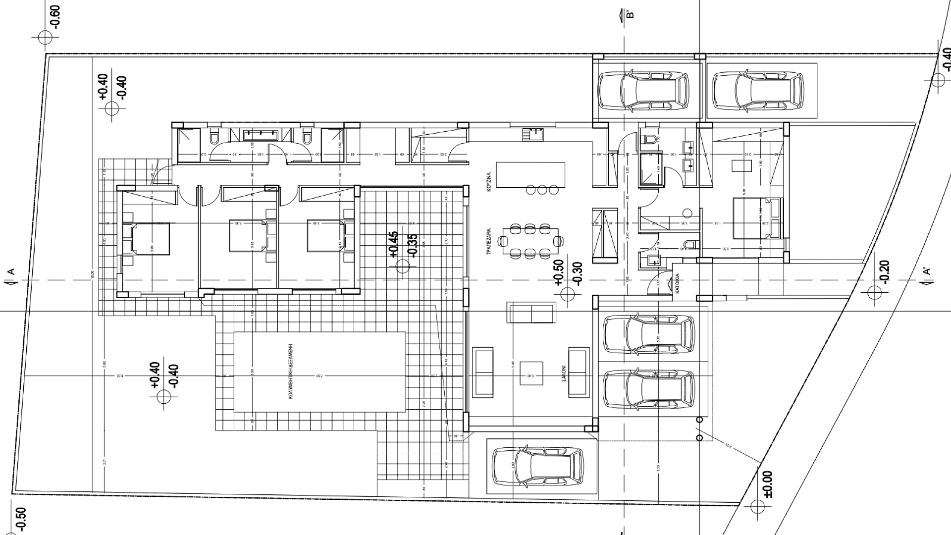
Продаётся дом в районе Lakatamia, Nicosia. Дом расположен в современном жилом районе и построен с использованием высококачественных материалов в соответствии с актуальными строительными и энергетическими стандартами. Проект предусматривает железобетонный каркас, эффективную тепло- и гидроизоляцию, наружные стены из термоизоляционного кирпича, а также систему внешней теплоизоляции фасада. В доме установлено напольное отопление, фотоэлектрическая система мощностью 5 кВт, солнечный водонагреватель, трёхфазное электроснабжение, система водоснабжения «pipe in pipe», а также предусмотрена подготовка для кондиционеров и систем безопасности.
Внутренняя отделка включает керамическую плитку высокого качества, современную сантехнику, алюминиевые окна и двери с терморазрывом и двойным остеклением, а также качественные столярные изделия для кухни, межкомнатных дверей и встроенных шкафов. На участке предусмотрены парковочное место, благоустроенные внешние зоны и подъезд к дому. Удобное расположение в Лакатамии обеспечивает быстрый доступ к школам, магазинам, государственным учреждениям и основным транспортным магистралям Никосии, что делает объект отличным вариантом как для семейного проживания, так и для инвестиции. Объект продаётся по старой системе налогообложения.
