Новая 2-спальная квартира в Пафосе №172694
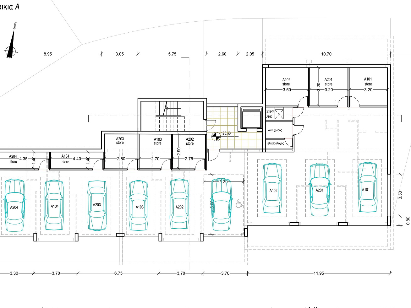
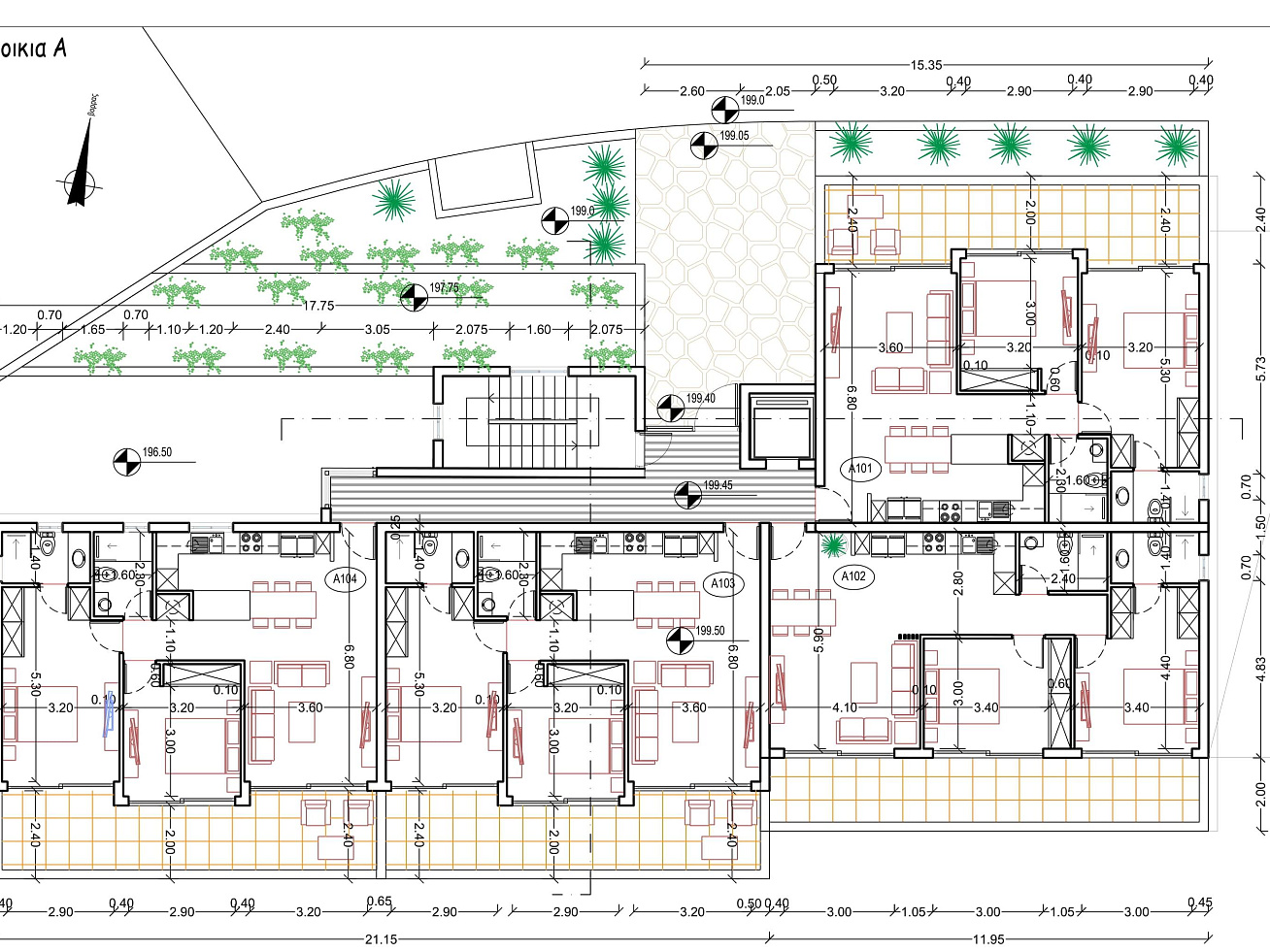
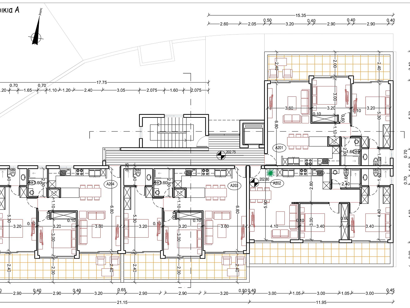
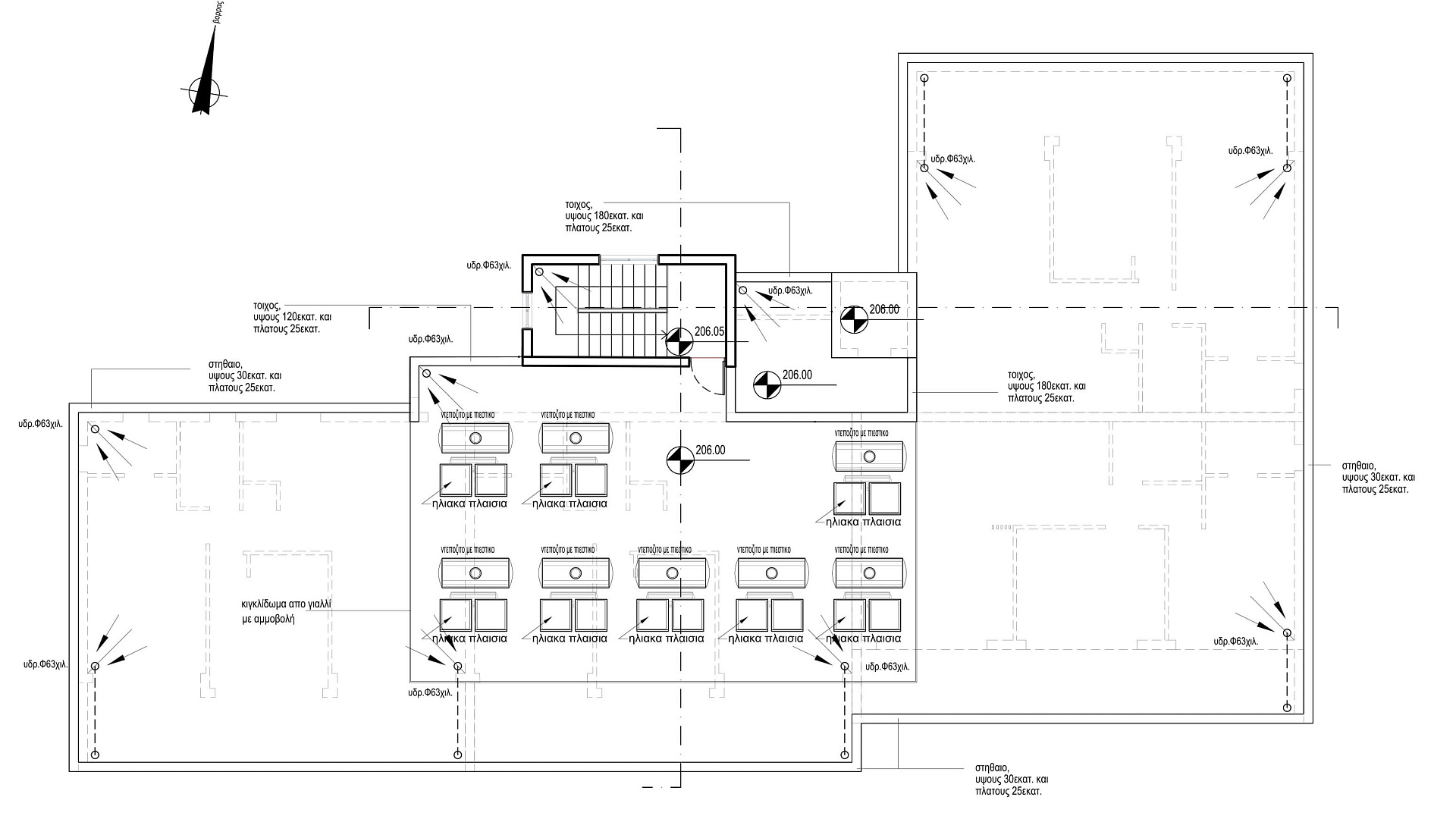
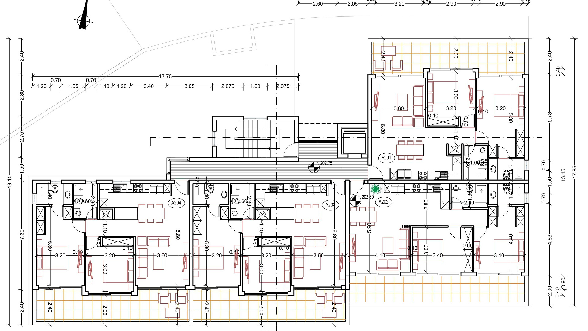
Продается двуспальная квартира в районе Konia, Paphos в нескольких минутах езды до моря. Комплекс состоит из двух блоков и всего 16 апартаментов, расположенных на двух этажах.
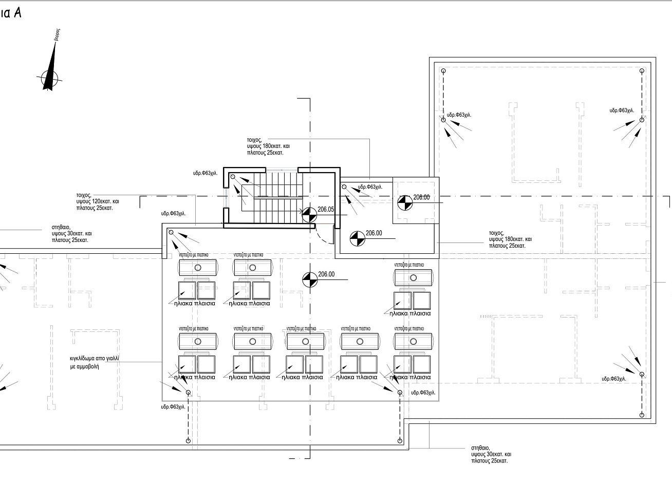
Апартаменты отличаются функциональными планировками и просторными крытыми верандами. Для каждой квартиры предусмотрены удобные кладовые помещения и парковочные места. На территории комплекса есть общий бассейн. Проектом также предусмотрена установка системы кондиционирования VRF и системы подогрева пола.
Восточный пригород Пафоса Konia располагается на склонах холмов, откуда можно любоваться неповторимыми морскими пейзажами. Здесь есть несколько общественных парков, спортивных и детских игровых площадок. Недалеко находится международная школа Пафоса, крупнейших торговый центр и городской госпиталь. Этот район, в первую очередь, оптимален для спокойной семейной жизни на природе.
