Новые 2-спальные апартаменты в Лимассоле №164491
Дополнительно:
Закрытый комплекс
Новостройка
Детская площадка
Бассейн
Парковка
Кладовая
Тренажерный зал
Лифт
Описание:
Продаётся 2 спальная квартира в закрытом комплексе. Средиземноморская атмосфера, рядом с инфраструктурой города и быстрым доступом к пляжу, центру города и шоссе. Объекты отличаются современным дизайном и отличным расположением, комфортны и многофункциональны. Построены с использованием высоких стандартов качества, материалов высшего качества.
Читать далее
Объект
№164491
Тип:
Квартира / Апартаменты
Город:
Район:
Комплекс:
Застройщик:
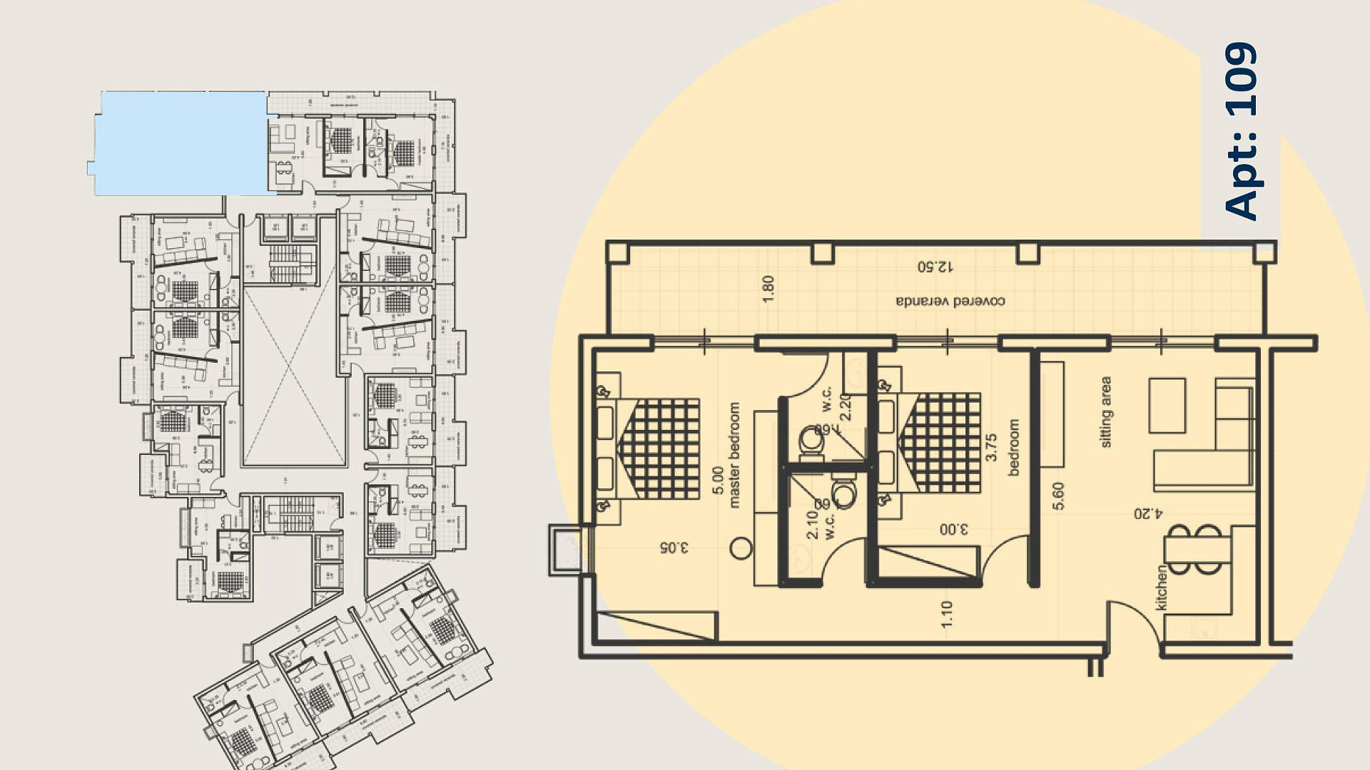
Кол-во спален:
2
Ванных комнат:
1
Общая площадь:
103 м2
Жилая площадь:
80 м2
Этажность:
4
Этаж:
1
Год постройки:
05/2026
Расстояние до моря:
600 м
Класс энергоэффективности:
A
530 000 EUR
+ VAT
530000
5 146
EUR/м2
Записаться на просмотр
Похожие предложения
15347 объектов
Показать все
Интересное
