Долевое участие в жилом проекте в Лимассоле Проект №206364
Мы рады представить возможность долевого участия в новом жилом девелоперском проекте от авторитетного и опытного застройщика Лимассола.
Проект расположен в востребованном районе Katholiki, в центральной части города, в пешей доступности от старого города и всей необходимой инфраструктуры. Район характеризуется высоким спросом на аренду и устойчивым ростом жилого сегмента, что делает его одной из наиболее привлекательных локаций для инвестиций.
Сделка структурирована через приобретение долей компании (SPV), которая уже владеет земельным участком, а необходимые разрешения поданы и находятся на ускоренной стадии получения. Благодаря такой структуре сделки инвестор приобретает проект на уровне компании, в результате чего на транзакцию не начисляется НДС.
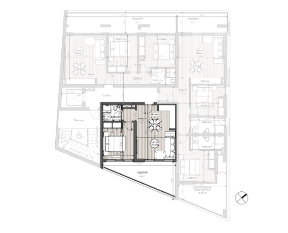
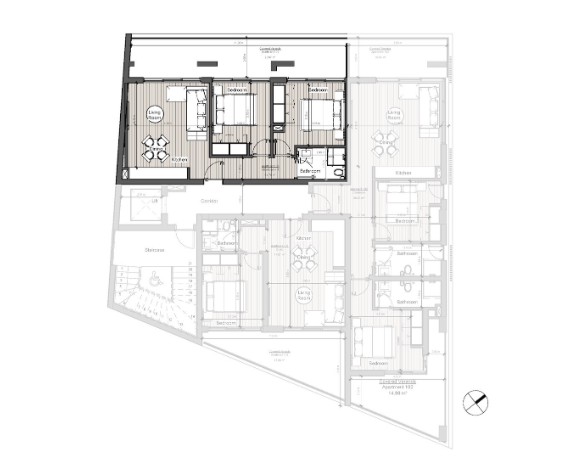
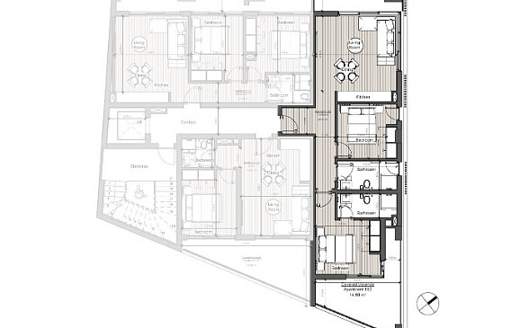
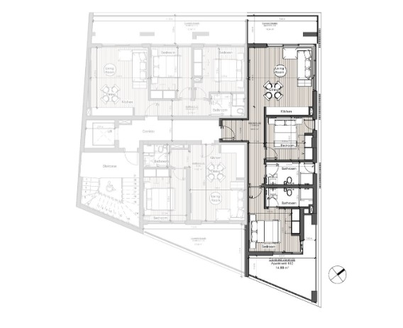
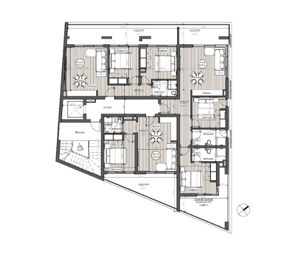
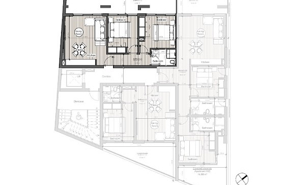
Комплекс будет включать 11 квартир: с одной, двумя и тремя спальнями, а также эксклюзивные пентхаусы на четвертом этаже с собственными террасами на крыше. Концепция проекта соответствует текущему рыночному спросу и ориентирована как на конечных покупателей, так и на инвесторов.
В рамках инвестиционного предложения застройщик предоставляет полный пакет мебели для каждой квартиры ориентировочной стоимостью около €20 400 за объект, что составляет €224 400 для всего здания. Это усиливает рыночную привлекательность проекта и позволяет приступить к аренде или продаже сразу после завершения строительства.
Структура финансирования предусматривает внесение инвестором 40% от общего объёма капитала на этапе запуска строительства, а оставшаяся часть оплачивается поэтапно в соответствии с графиком выполнения строительных работ и ключевыми этапами реализации проекта.
Инвестиция носит пассивный характер. Девелопер берет на себя строительство проекта в соответствии со своими высокими стандартами качества, а также оказывает содействие в реализации квартир после завершения строительства.
Согласно консервативным прогнозам, основанным на многолетнем опыте и успешной истории застройщика, ожидаемая доходность может составить около 18% годовых, при общей предполагаемой доходности порядка 40% за ориентировочный цикл реализации проекта продолжительностью 18 месяцев с момента начала строительства.
Данная возможность позволяет инвесторам стать партнерами одного из ведущих девелоперов Лимассола и воспользоваться продолжающимся ростом рынка недвижимости Кипра.
Для получения дополнительной информации, пожалуйста, свяжитесь с нами.
