
New 2-bedroom apartment in Nicosia / Agios Andreas №202461




Additional:
Description:
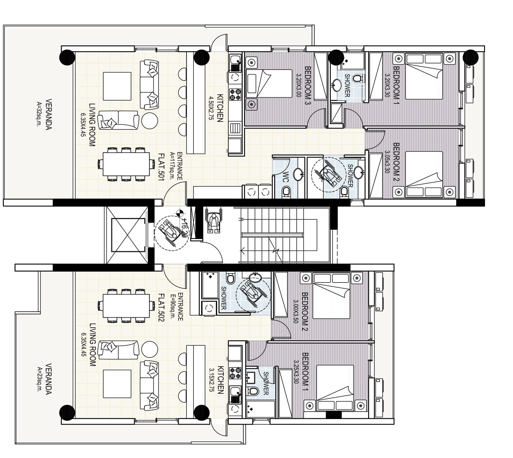
Apartment for sale in the area of Agios Andreas, Nicosia. The building is equipped with a modern elevator, access control system and convenient covered parking with the possibility of installing an electric vehicle charging station. The living area is designed for a comfortable life: underfloor heating with a heat pump, a photovoltaic system (for apartments with two and three bedrooms), a solar boiler and a water pressure boosting system ensure economy and convenience. The interior is made of high—quality materials - large ceramic tiles and energy-efficient double-glazed windows create a modern and functional interior. The apartment is ideal for a comfortable stay or a profitable investment due to its location, high-quality construction and thoughtful infrastructure.
№202461
Apartment
City:
District:
Complex:
2
2
115 m²
90 m²
5
6
07/2028
A
€3,122 / m²
DOM Real Estate
+357 22 030 128








