Land in Limassol № 201902
Additional:
Title deed
Description:
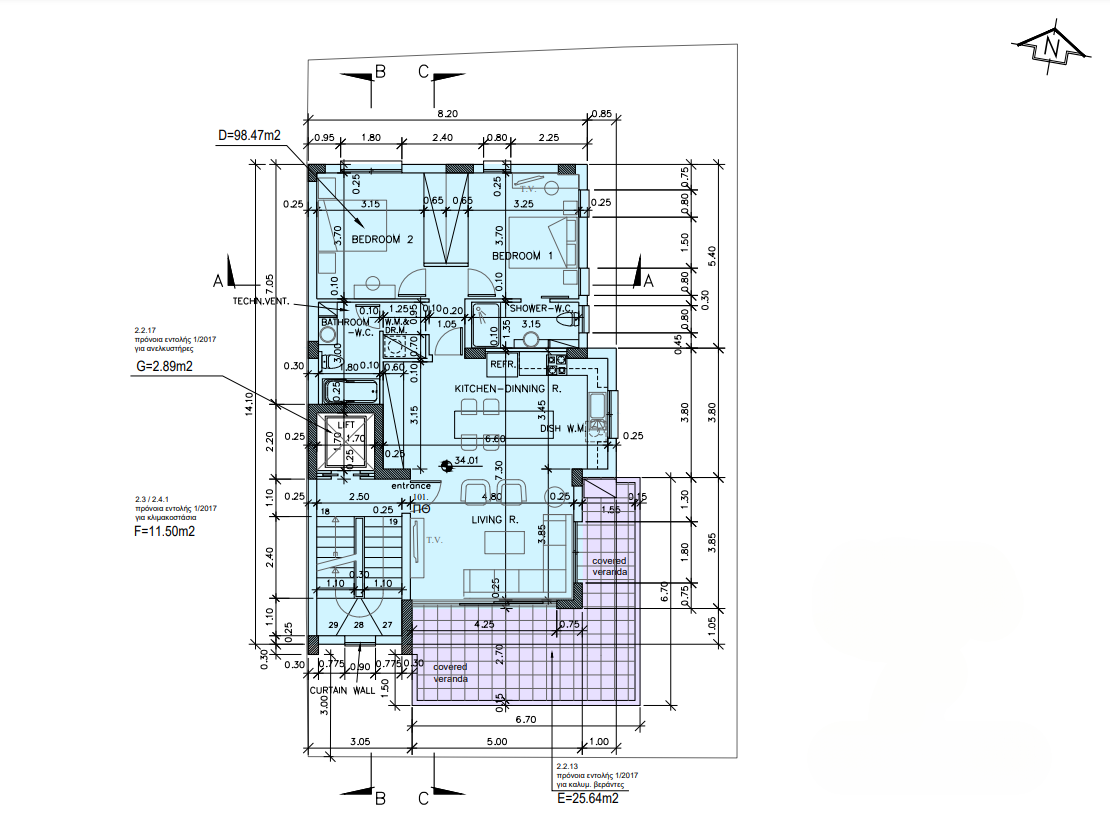
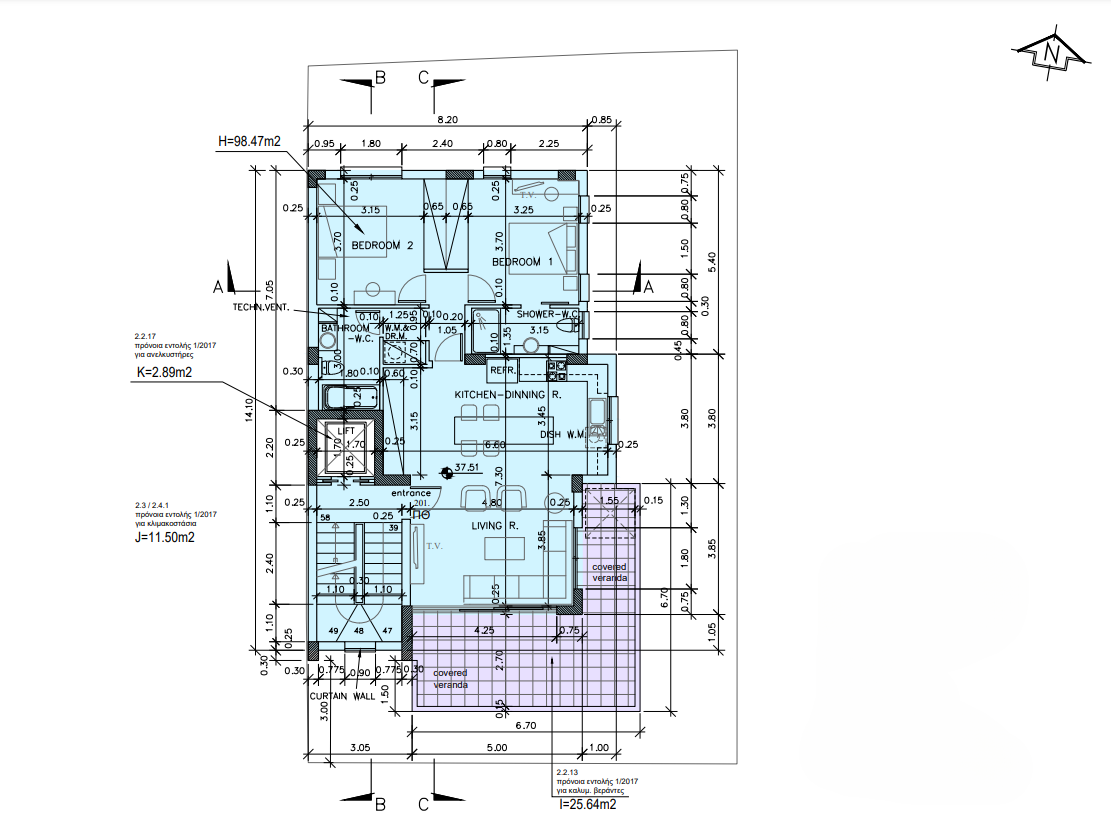
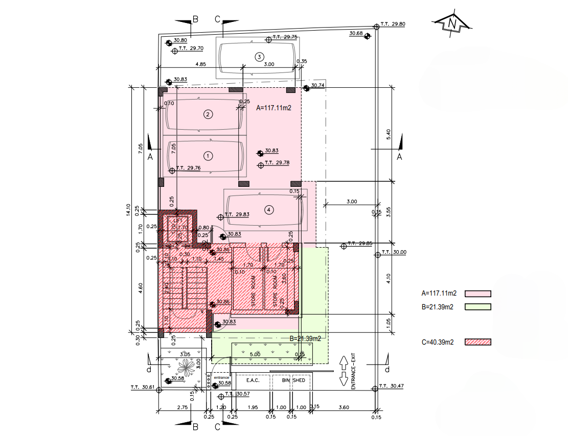
Sale of residential plot with building permit in Germasogeya tourist area near Papas supermarket, Limassol. It's approved permit for two large residential apartments. The plot has square shape and flat surface, falls into planning zone Ka7 with building density 90%, coverage 45%, 3 floors, 13.5 meters.
Read more
Object
№201902
Type:
Land
City:
District:
Complex:
Developer:
Land area:
262 m2
Storey:
3
Year of construction:
Distance to the sea:
1050 m
Zone:
Ka7
Building percentage:
90
Percentage of coverage:
45
Communications summed up:
Yes
450 000 EUR
+ VAT
450000
1 718
EUR/m2
Schedule a viewing
Similar offers
3699 objects
Show all
Interesting
