
New 3-bedroom house in Limassol / Agios Athanasios №182648




26
Additional:
Parking
Pool
Air conditioner
Heating
Description:
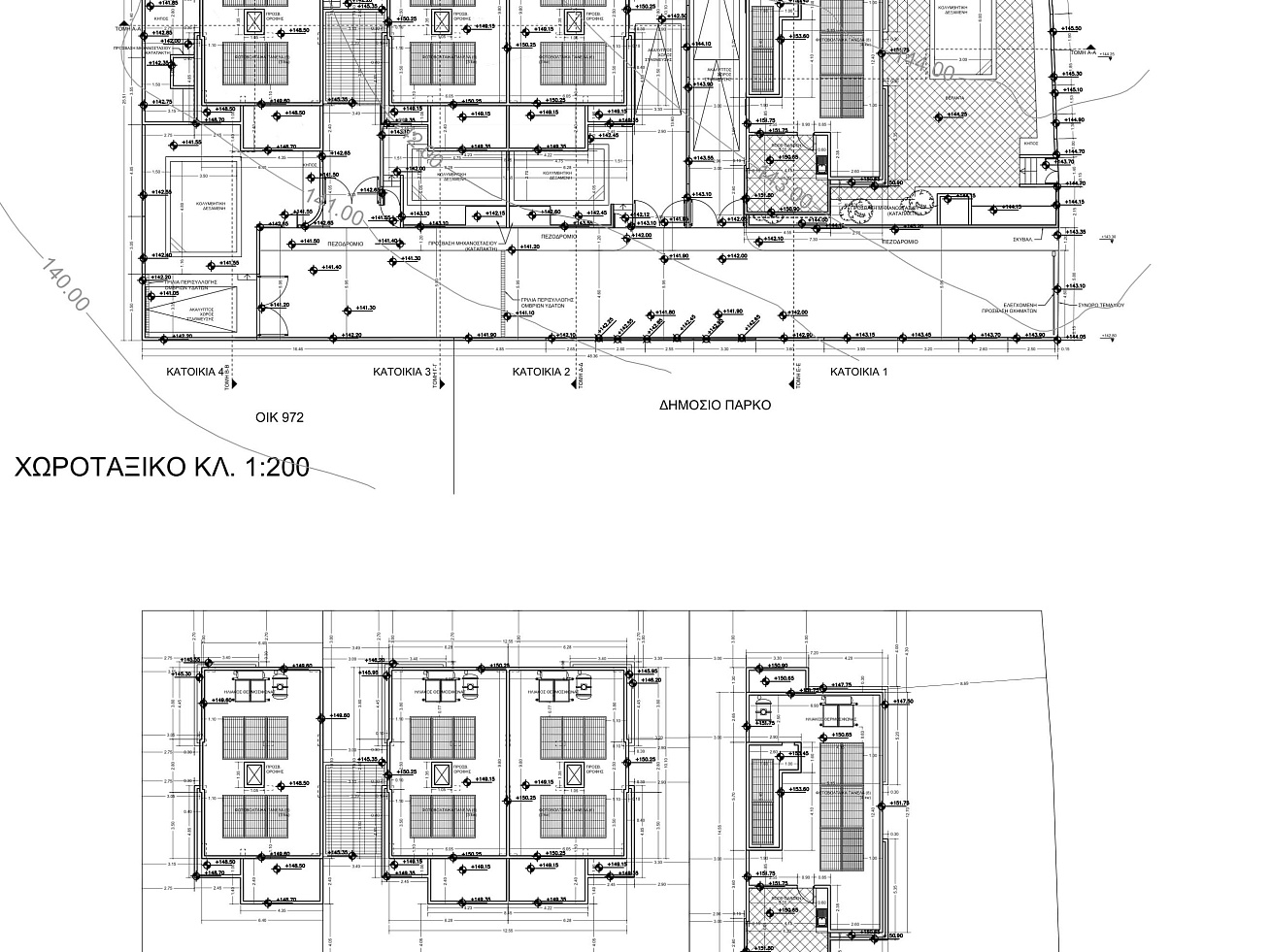
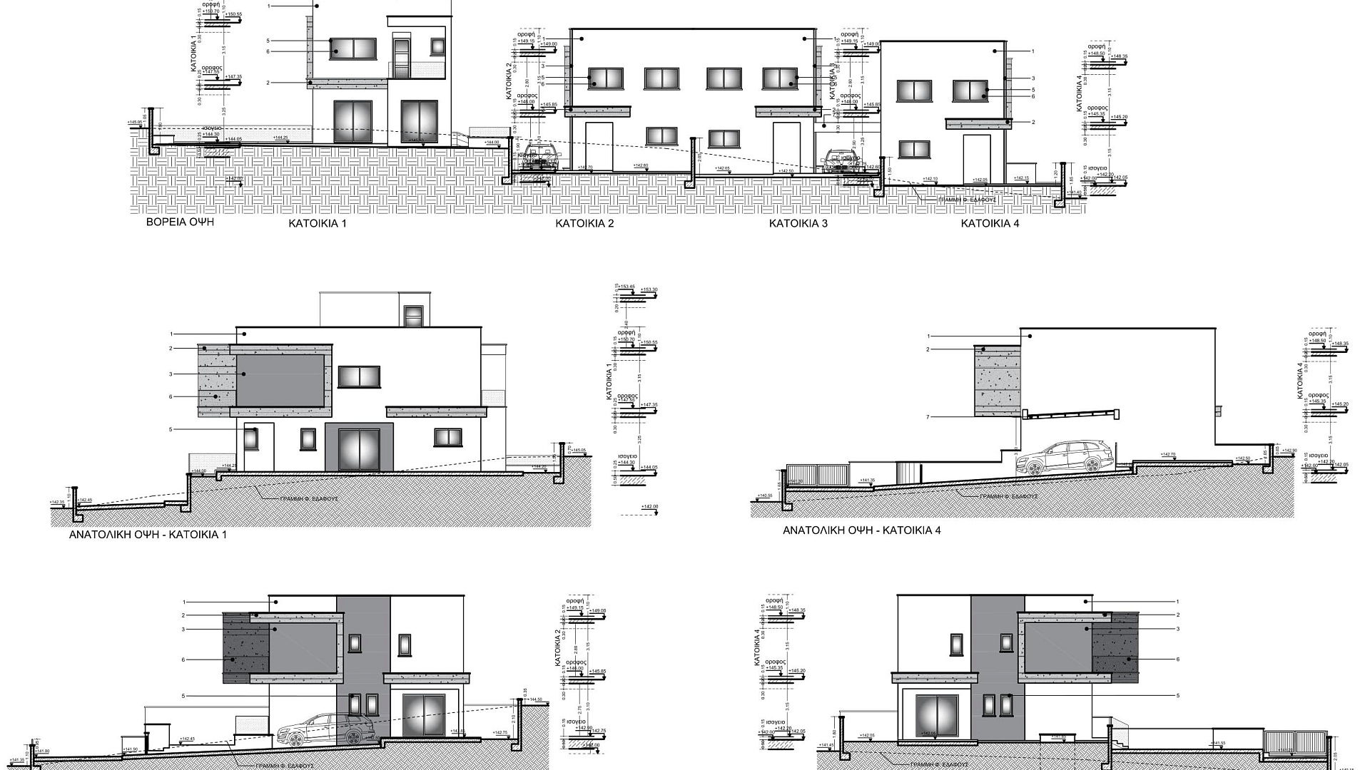
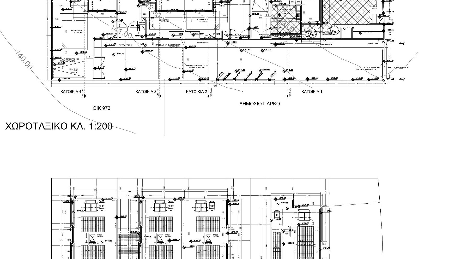
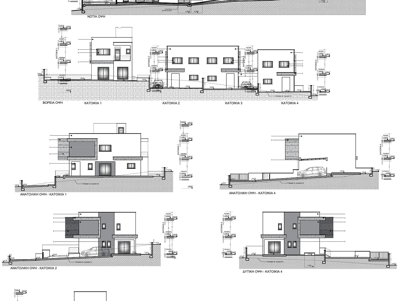
For sale a modern spacious three bedroom house in the area of Agios Athanasios, Limassol, just a few minutes drive to the sea. The house is located on a plot of 192 m2. The interior of the house, with an area of 114 m2, turns into a cozy covered veranda of 35 m2 and an open veranda of 27 m2. Only high-quality materials were used in the construction and decoration, which guarantees durability and impeccable appearance. There is a private swimming pool on the property. Parking is available for the car. The complex is located in an area that is famous for its well-developed infrastructure and proximity to the beach.
Object
№182648
Type:
House / Villa
City:
District:
Complex:
Developer:
Bedrooms count:
3
Bathrooms:
2
Total area:
177 m²
Living area:
114 m²
Land area:
192 m²
Floors:
2
Construction year:
07/2026
Distance to sea:
3700 м
Energy class:
A
€686,000+ VAT
€3,876 / m²
DOM Real Estate
+357 25 056 478








