Новый 4-спальный дом в Никосии №202409
Продаётся современный дом с четырьмя спальнями в районе Pefkou Lakatameia, Nicosia, расположенный в тихом и жилом районе с удобным доступом к автомагистрали и центру города. Резиденция сочетает в себе комфорт, эстетику и функциональность, создавая идеальные условия для современной семейной жизни.
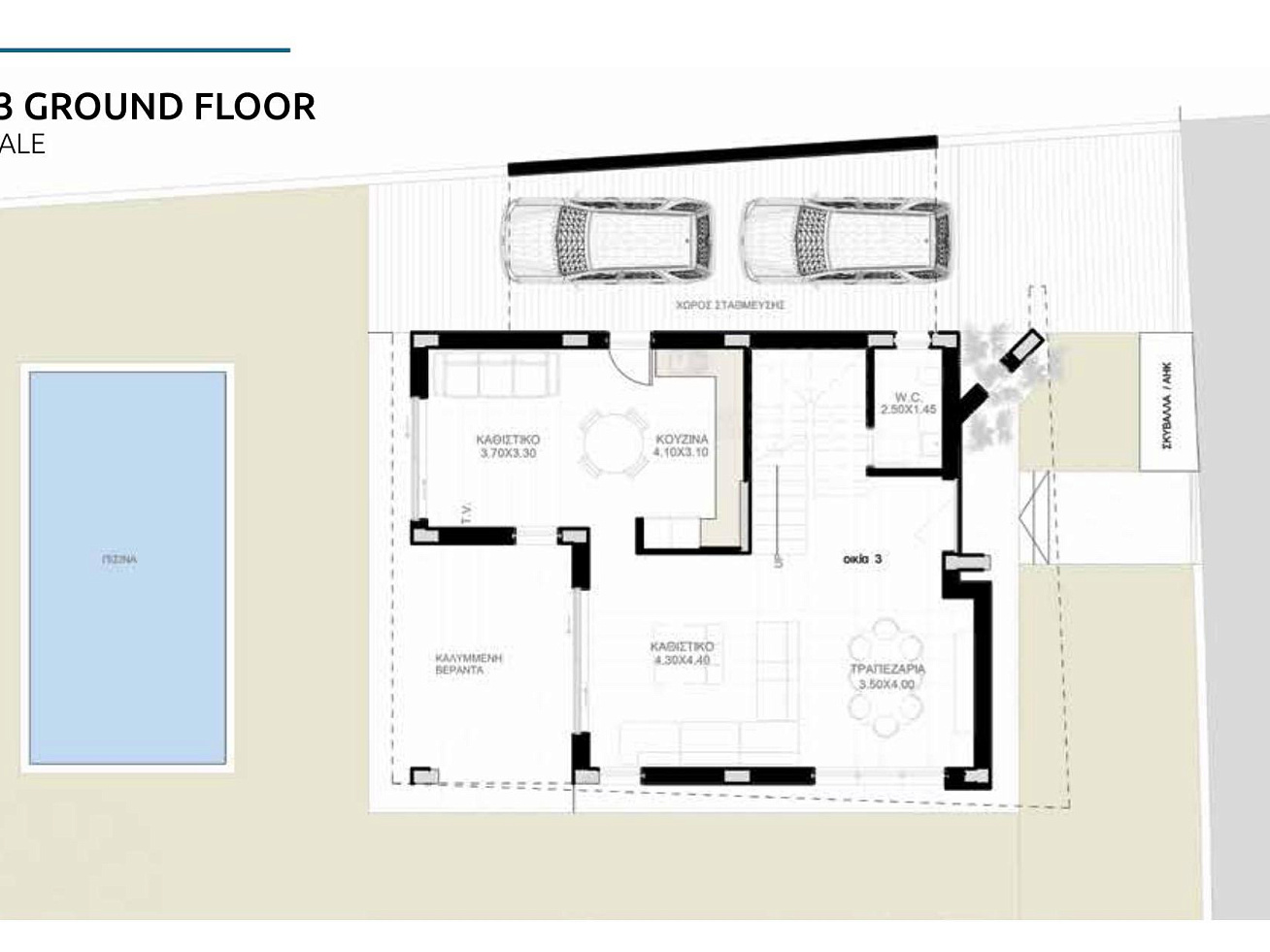
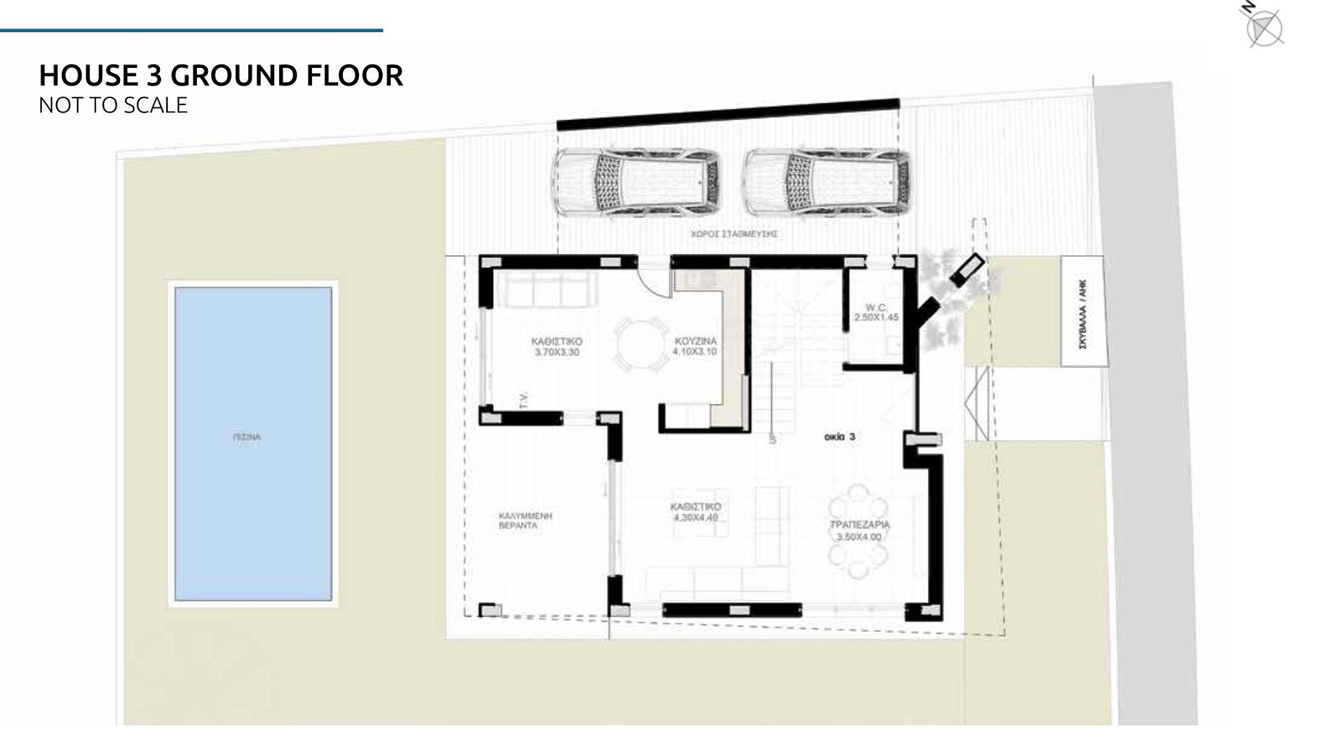
Дом располагает просторным частным садом, возможностью установки бассейна по желанию владельца, гаражом на две машины и просторными террасами. На первом этаже предусмотрена открытая планировка гостиной, столовой и современной кухни, которая обеспечивает прямой вид и удобный выход на крытую террасу и сад, создавая атмосферу уюта и гостеприимства. Также на этом уровне расположен гостевой туалет.
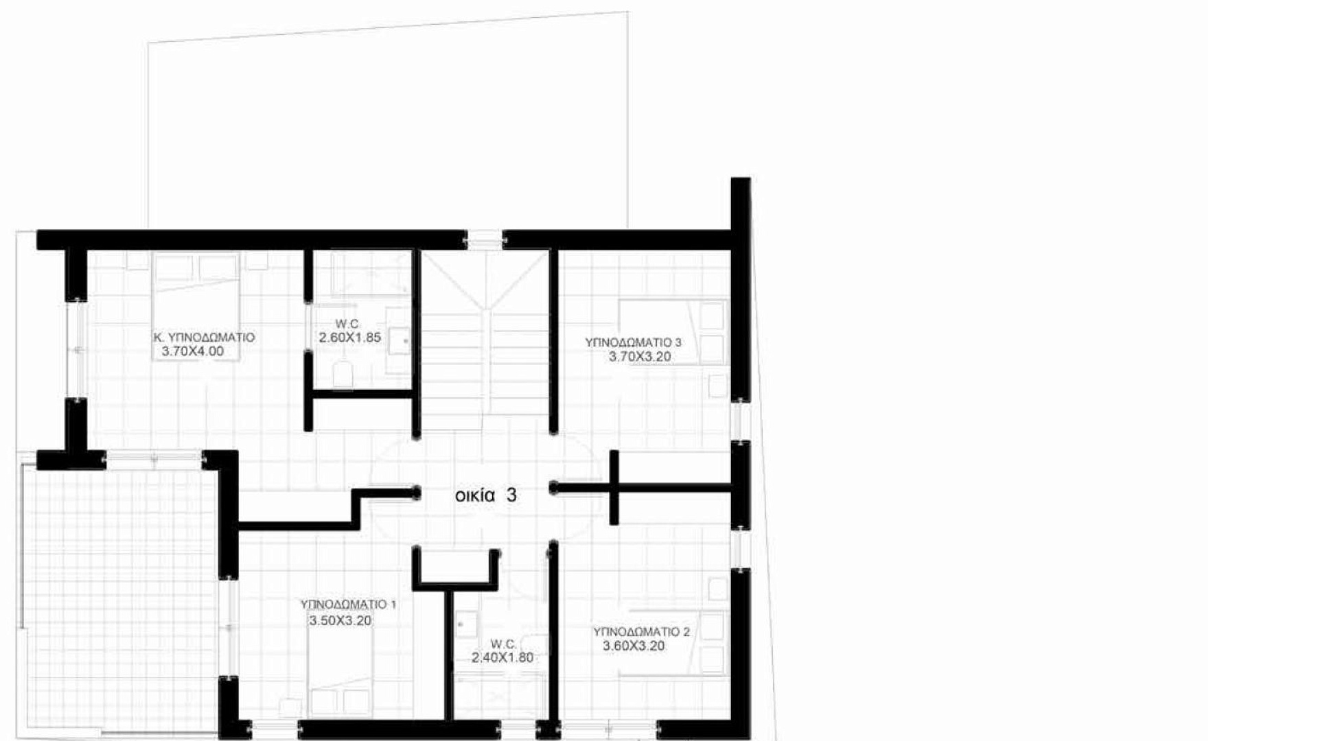
На верхнем этаже находятся четыре спальни, включая главную спальню с собственной ванной комнатой и гардеробной. Остальные три спальни пользуются элегантной полностью оборудованной ванной комнатой. Резиденция спроектирована с акцентом на высокий уровень комфорта проживания и современную эстетику.
Дом имеет энергетический сертификат класса A и оснащён системой подогрева полов, тепло- и звукоизоляцией, солнечным водонагревателем и подготовкой для установки фотоэлектрических панелей. Дополнительно предусмотрены камера на входе, подготовка под систему сигнализации, кухонные столешницы из техногранита, двойные стеклопакеты и электрические роллеты. Напольные покрытия выполнены с использованием качественных материалов, включая керамику, паркет и мрамор. Также предусмотрена подготовка для установки системы кондиционирования воздуха.
Данный дом представляет собой идеальное сочетание современного дизайна, качества строительства и удобного расположения, что делает его отличным выбором как для комфортного проживания, так и для долгосрочной инвестиции.
