Новый офис в Лимассоле №204132
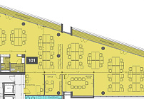
Сдаётся офис площадью 344 м² в районе Mesa Geitonia, Limassol, в современном офисном здании, расположенном на одной из главных деловых улиц города с удобным доступом к City Center, Limassol Marina и автомагистрали. На каждом этаже предусмотрено всего два просторных и функционально спроектированных офиса, есть зона ресепшн, лифт, парковочные места и общая roof garden. Офис выполнен с высококачественной отделкой класса A и готов к немедленному использованию, включает просторную частную веранду с панорамным видом на город, высокие потолки 2,90 м, фальшполы с ковровым покрытием в рабочих зонах, керамическую плитку на полу и стенах в санузлах, противоскользящую плитку на веранде, систему кондиционирования и вентиляции в каждом помещении, сигнализацию, противопожарную входную дверь с системой интерком, алюминиевые окна с двойным термо-стеклопакетом, сантехнику европейских брендов, кухонную мебель высокого класса со всей необходимой техникой и фотоэлектрические панели для повышения энергоэффективности.
