Полностью отремонтированное коммерческое здание с действующим бизнесом внутри в Лимассоле Проект №202986
Полностью отремонтированное двухэтажное коммерческое здание, расположенное в самом центре Лимассола на одной из наиболее востребованных и оживлённых улиц — Гладстонос. Объект находится в активной деловой зоне города и отличается отличной видимостью и удобной транспортной доступностью.
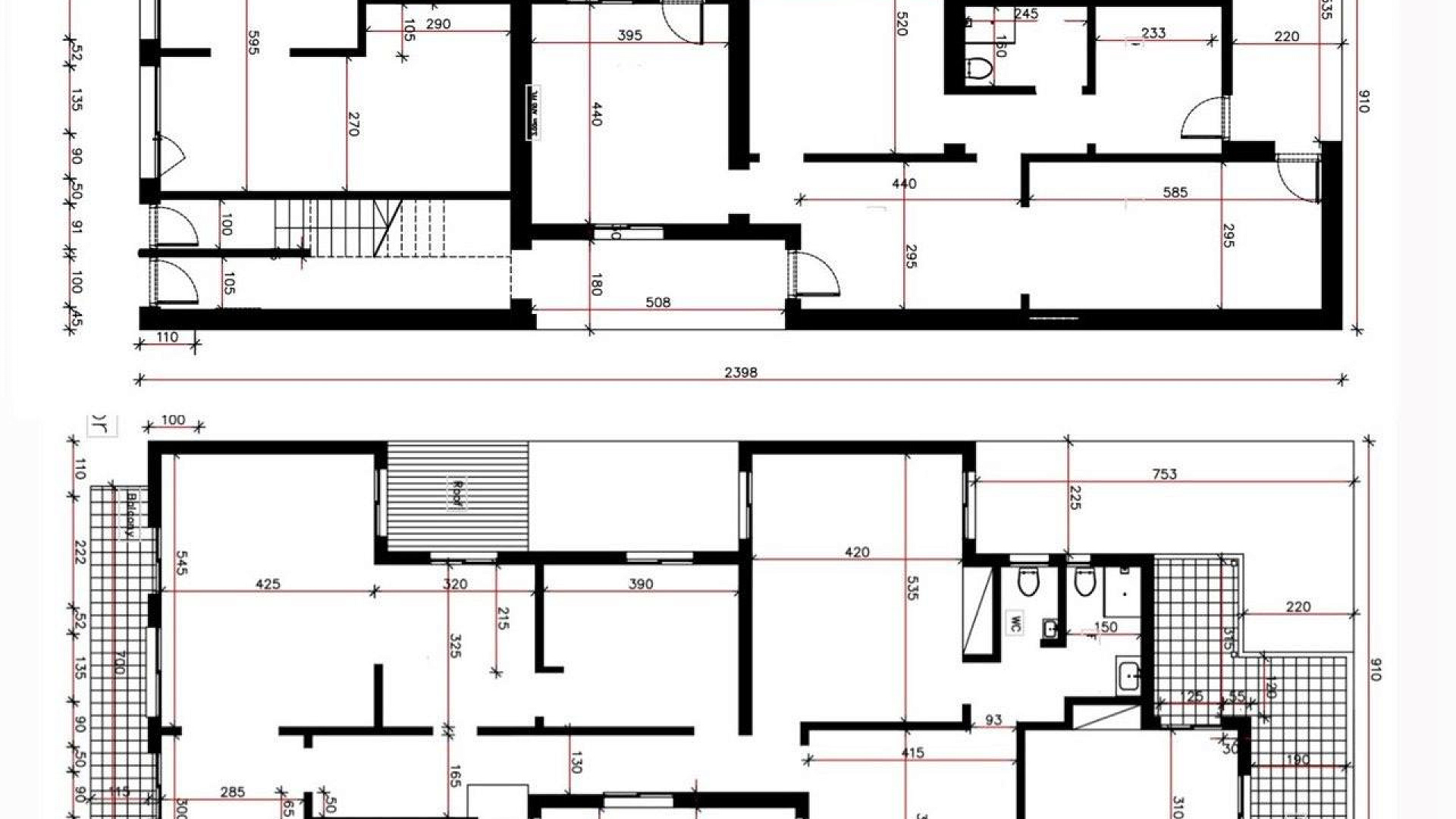
Здание расположено на участке площадью 204 м², общая площадь застройки составляет 408 м², из которых 350 м² — крытые внутренние помещения. Объект имеет три отдельных входа, что позволяет использовать его как единое пространство для штаб-квартиры компании либо разделить на независимые блоки.
На первом уровне располагается коммерческое помещение с панорамными окнами, выходящими на главную улицу, двумя отдельными комнатами, кухней и санузлом. Также на этом уровне находится просторное офисное крыло с зоной ресепшен, основным кабинетом с собственной верандой, двумя большими конференц-залами, отдельной кухней, санузлом с душевой и складскими помещениями.
Второй этаж организован как полноценное офисное пространство, включающее зону приёма, пять отдельных кабинетов, кухню, два санузла (один с душевой), веранду и балкон, отдельную серверную и дополнительные помещения для хранения. Всего в здании предусмотрены две кухни, четыре санузла и четыре веранды.
Объект полностью отремонтирован и оснащён новой электрикой, освещением и современными офисными решениями. Установлены инверторные кондиционеры во всех помещениях, система видеонаблюдения, видеодомофоны, WiFi-инфраструктура, проектор, телевизоры, роллетные шторы, а также полный комплект офисной мебели — столы, кресла, стойка ресепшен, встроенные шкафы и системы хранения. Интерьер дополнен декоративными зелёными насаждениями внутри и снаружи здания.
В настоящее время объект функционирует как действующий бизнес с работающим веб-сайтом, системой бронирования, зарегистрированным торговым наименованием, профессиональным брендингом и существующей клиентской базой с регулярным ежемесячным доходом. Возможна передача бизнеса вместе с недвижимостью.
Титульный документ оформлен. Недвижимость принадлежит холдинговой компании, созданной специально для владения данным активом, что позволяет структурировать сделку в формате приобретения долей компании. Такая модель может обеспечить экономию на регистрационных сборах (примерно 5%) и ускорить процесс покупки. Рассматривается возможность оплаты в криптовалюте или наличными. Это редкая возможность приобрести полностью готовый к эксплуатации коммерческий объект в престижной центральной локации, подходящий для штаб-квартиры компании, коворкинга, медицинского центра, образовательного учреждения или представительского офиса. Для получения дополнительной информации, пожалуйста, свяжитесь с нами.
