
New 3-bedroom apartment in Larnaca / Chrysopolitissa №182848




Additional:
Description:
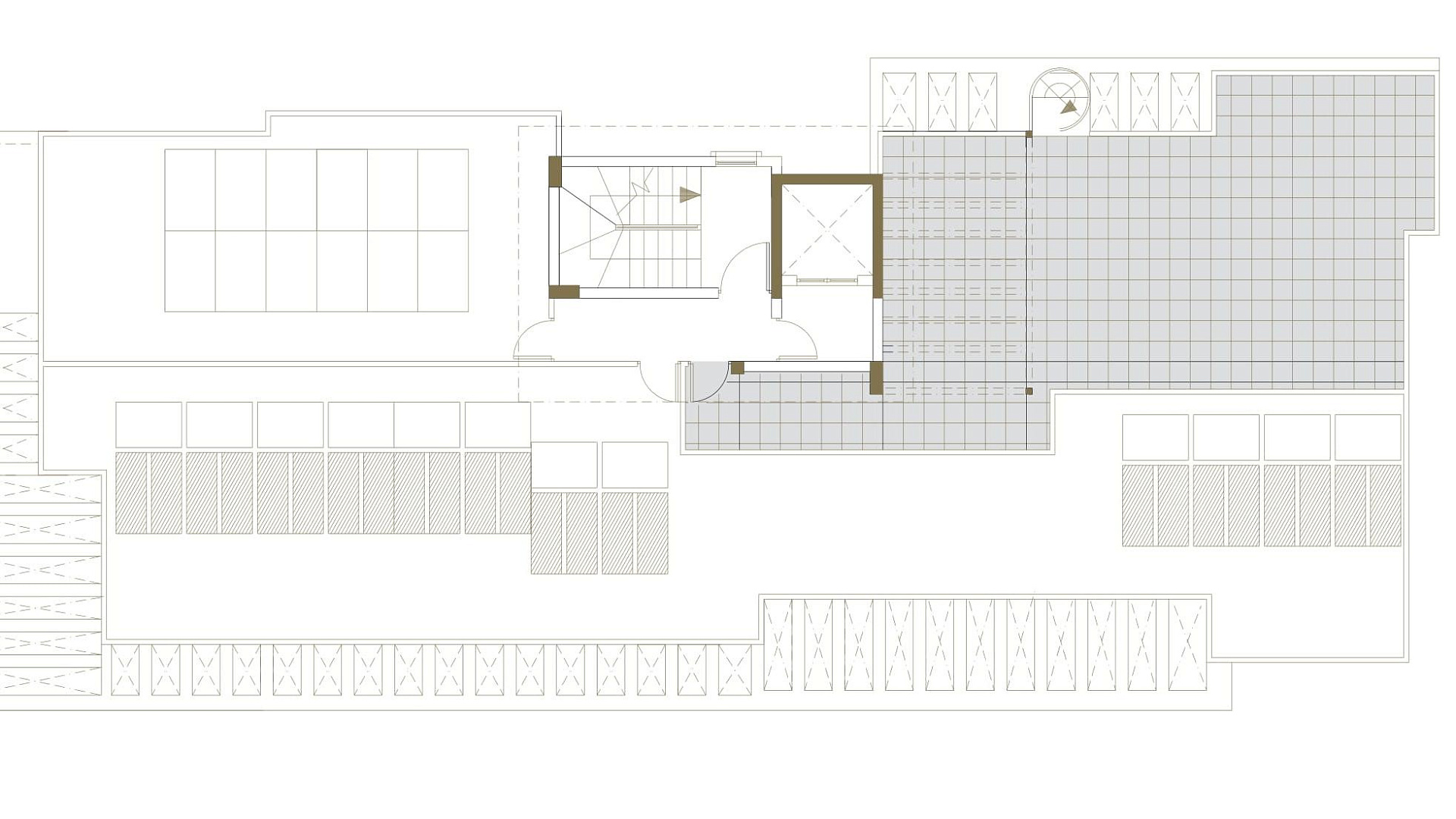
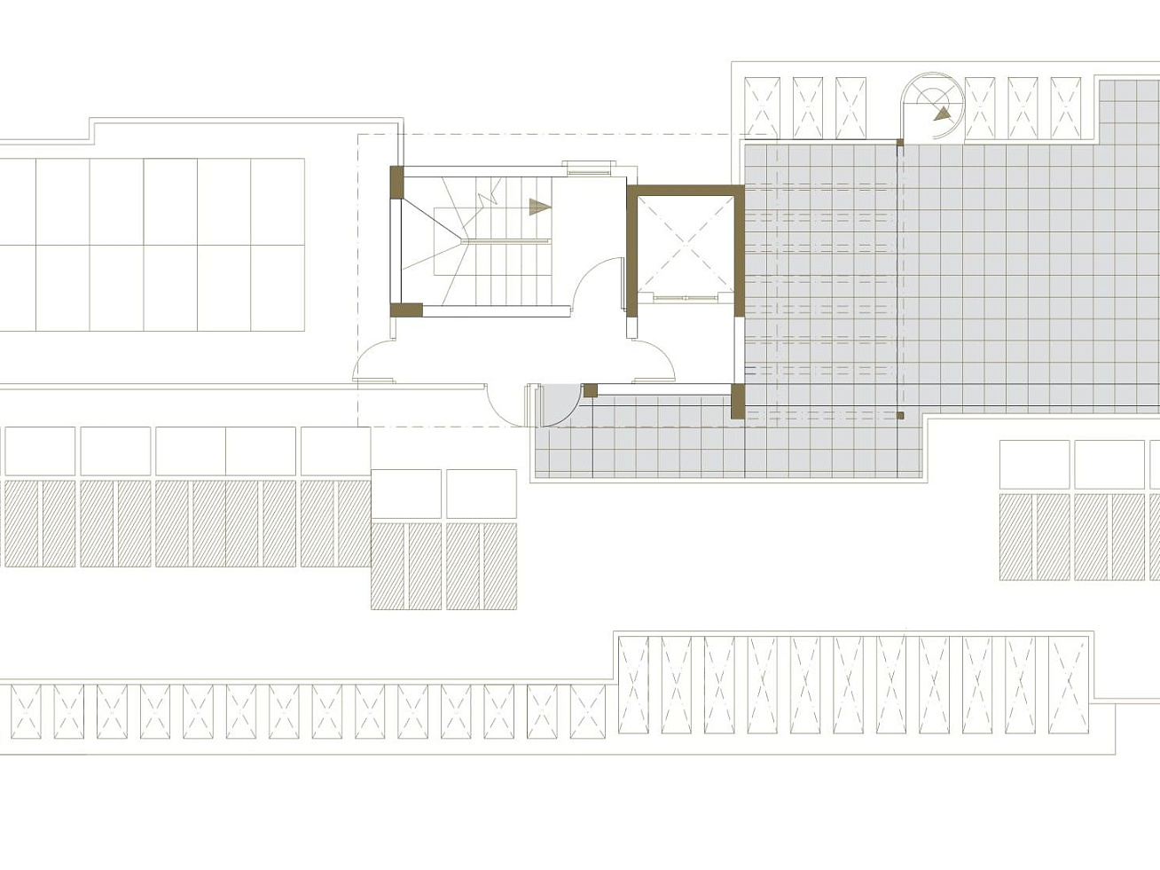
Modern apartment for sale in a residential complex located in a quiet area of Chrysopolitissa, Larnaca. This stylish and modern house offers the perfect combination of comfort, security and a high standard of living in the heart of the city. The complex consists of only ten spacious and exclusive apartments, each with its own character and thoughtful layout. Residents are provided with private underground parking and individual storage rooms. The apartments are distinguished by high-quality finishes, energy-efficient materials, stylish Italian or Cypriot cuisines, premium plumbing and modern heat and sound insulation systems. The building is located next to the beach, the Finikoudes promenade, the marina, restaurants, shops and all necessary urban amenities. It is an ideal place for a comfortable life by the sea — a combination of exquisite design, high-quality construction and advantageous location in the center of Larnaca.
№182848
Apartment
City:
District:
Complex:
3
2
162 m²
104 m²
3
4
07/2027
1130 м
A
€2,068 / m²
DOM Real Estate
+357 25 056 478








