Новые 4-спальные апартаменты в Лимассоле №30223
Дополнительно:
Титул
Закрытый комплекс
Новостройка
Бассейн
Мебель
Бытовая техника
Кондиционер
Отопление
Сауна
Парковка
Тренажерный зал
Лифт
Джакузи
Описание:
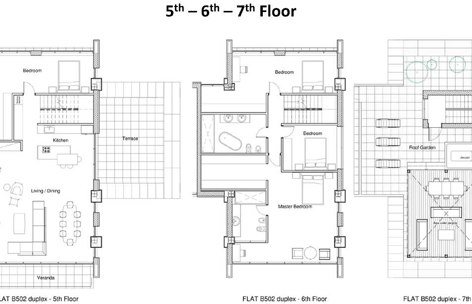
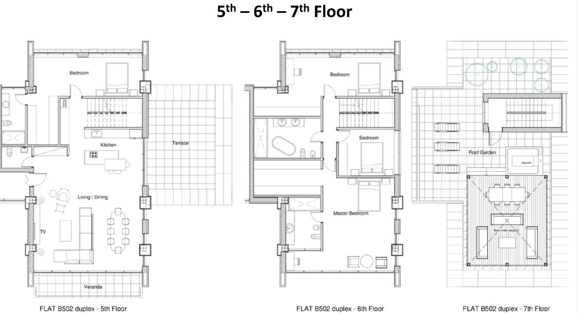
Продается двухуровневый 4 спальный дуплекс с садом на крыше, в эксклюзивном комплексе в турзоне Лимассола, районе Мутаяка. 250 метров от моря, рядом со всей необходимой инфраструктурой. Закрытый вход, высокий уровень охраны, дворецкий на входе, внешний лаундж, крытый лаундж, зона развлечений, бассейн 32x10м, бар у бассейна, тренажерный зал с сауной, детская игровая площадка, подземная парковка. В апартаментах центральное отопление, подогрев полов, система кондиционирования VRV, все плитки поставляются от Atlas Concorde, кухня Scavolini, ванные комнаты Модель Aquo / Rivo поставляется Scavolini, внешняя защитная противопожарная дверь / безрамные внутренние двери Eterea.
Читать далее
Объект
№30223
Тип:
Квартира / Апартаменты
Город:
Район:
Комплекс:
Застройщик:
Кол-во спален:
4
Ванных комнат:
3
Общая площадь:
545 м2
Жилая площадь:
328 м2
Этажность:
11
Этаж:
7
Год постройки:
2018
Расстояние до моря:
250 м
4 100 000 EUR
+ VAT
4100000
7 523
EUR/м2
Записаться на просмотр
Похожие предложения
1128 объектов
Показать все
Ранее просмотренные объекты
Интересное
