New 4-bedroom villa in Limassol № 170524
4 bedroom townhouse for sale in Pyrgos, Limassol, worth €525,000 + VAT (VAT 5% is possible). The residential property is located in a quiet and promising area, just a few minutes drive from the city center and the coast.
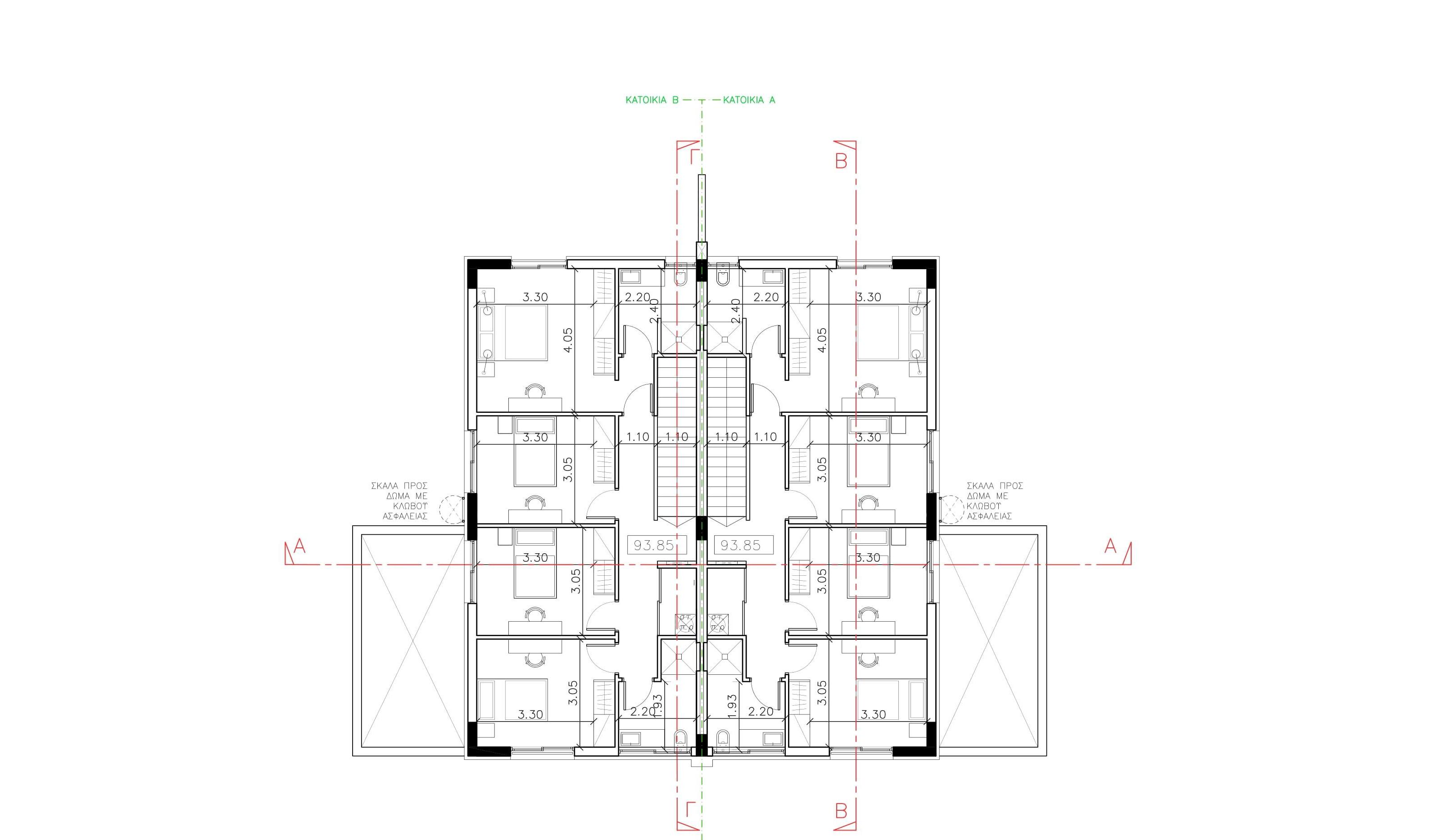
The house is designed using modern construction technologies and high-quality materials. The total area of the house includes a spacious living room, an open-plan kitchen, four bedrooms, including a master bedroom with a bathroom, as well as additional bathrooms. Thanks to the panoramic windows and functional layout, the house has plenty of natural light and a sense of comfort.
The specification includes a underfloor heating system with a heat pump, preparation for the installation of an air conditioning system, 5 kW solar panels (energy class "A"), a marble staircase, high-quality plumbing for up to €5,000, electric shutters on bedroom windows, a wooden entrance door, marble countertops in the kitchen, as well as an alarm system, video surveillance and a video intercom (wiring is provided).
The exterior area includes a granite-paved courtyard, concrete fencing, walkways and a covered parking lot. This is an ideal offer for both permanent residence and investment.
