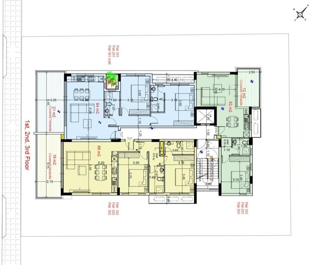
Новая 1-спальная квартира в Пафосе №193054
Продаётся квартира в самом сердце Paphos, расположенная в современном жилом комплексе с высоким уровнем комфорта и безопасности. Здание выполнено по стандартам энергоэффективности класса А, что обеспечивает качественную тепло- и шумоизоляцию, экономичное потребление энергии и комфортное проживание круглый год. Квартира отличается стильным современным дизайном и высококачественной отделкой. Предусмотрена подготовка под установку кондиционеров, а горячее водоснабжение обеспечивается солнечными панелями. Входная дверь квартиры и главная дверь здания обладают повышенным уровнем безопасности, а система видеодомофона позволяет контролировать доступ. Жителям также доступны крытая парковка и индивидуальная кладовая, а для владельцев электромобилей предусмотрена возможность установки зарядной станции. Комплекс является закрытой территорией (gated community), что обеспечивает приватность и спокойствие. Каждая квартира полностью автономна, а солнечные фотоэлектрические системы используются как для общего энергопотребления, так и с возможностью установки индивидуальной системы для каждой квартиры.
