Celistra

Description:

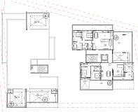
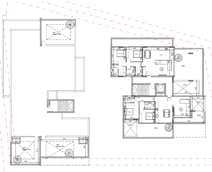
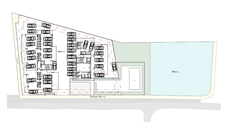
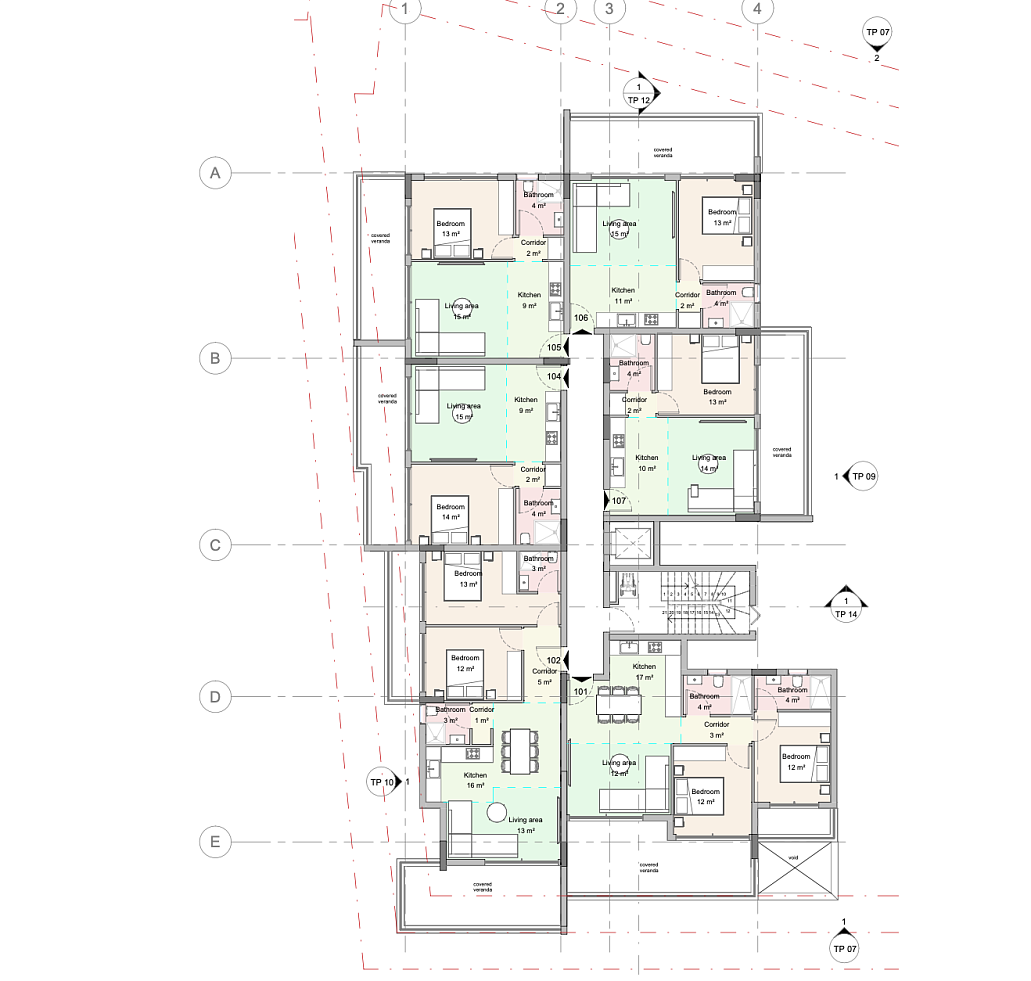
Celistra is a modern residential complex in the dynamically developing Zakaki area of ​​Limassol. The project includes two residential blocks (A and B) with thoughtful layouts and covered parking. Residents will have access to a swimming pool and a fully equipped fitness center. All furniture, appliances, air conditioning, underfloor heating, and solar panels are included in the price. Spacious balconies, energy-efficient technology, and high-quality finishes create the perfect blend of comfort and style. Zakaki is one of Limassol's fastest-growing neighborhoods, with direct access to beaches, shopping, entertainment, and business centers.

Read more
City
Limassol
Area
Zakaki
Updated
29.04.2026
Floors
4
Number of bedrooms
from 1 to 2
Area of objects, m2
from 62 to 113
Distance to the sea, m
1000
Energy class
A
Cost of purchase, EUR:
from 249 000 to 385 000
Learn more:
Mihail Vidrasco
Objects
Table
List
https://dom.com.cy/upload/resize_cache/iblock/5e2/1088_820_2/b5iekwtq7338xnovk408cphyqs6foj90.jpeg
№ 196915
Total area: 62 m2
Bedrooms: 1
255 000 EUR+VAT
4 113 EUR/m2
https://dom.com.cy/upload/resize_cache/iblock/000/1088_820_2/7nz0xe9fcizyx3ax8gbz20jv97dxyvu8.jpg
№ 196914
Total area: 113 m2
Bedrooms: 2
385 000 EUR+VAT
3 407 EUR/m2
https://dom.com.cy/upload/resize_cache/iblock/16a/1088_820_2/7ip7wjxd8njp49fw7xgyxx0n05isk44g.jpeg
№ 196913
Total area: 97 m2
Bedrooms: 2
365 000 EUR+VAT
3 763 EUR/m2
https://dom.com.cy/upload/resize_cache/iblock/269/1088_820_2/d6122xcxmmkoqhpealhi1semnbgniwl1.jpg
№ 196912
Total area: 102 m2
Bedrooms: 2
374 000 EUR+VAT
3 667 EUR/m2
https://dom.com.cy/upload/resize_cache/iblock/9e0/1088_820_2/9rzrg041fzr9aqipay47gqkxjhnq45d8.jpeg
№ 196911
Total area: 104 m2
Bedrooms: 2
362 000 EUR+VAT
3 481 EUR/m2
https://dom.com.cy/upload/resize_cache/iblock/b4d/1088_820_2/j3b268wrx568ka9xu8eu5ggkkvj3on2i.jpg
№ 196910
Total area: 112 m2
Bedrooms: 2
362 000 EUR+VAT
3 232 EUR/m2
https://dom.com.cy/upload/resize_cache/iblock/5e2/1088_820_2/b5iekwtq7338xnovk408cphyqs6foj90.jpeg
№ 196909
Total area: 97 m2
Bedrooms: 2
346 000 EUR+VAT
3 567 EUR/m2
https://dom.com.cy/upload/resize_cache/iblock/37a/1088_820_2/tf7gps1q5fouh4584tdpquwzvotf4noo.jpg
№ 196908
Total area: 62 m2
Bedrooms: 1
254 000 EUR+VAT
4 097 EUR/m2
https://dom.com.cy/upload/resize_cache/iblock/9e0/1088_820_2/9rzrg041fzr9aqipay47gqkxjhnq45d8.jpeg
№ 196907
Total area: 64 m2
Bedrooms: 1
254 000 EUR+VAT
3 969 EUR/m2
https://dom.com.cy/upload/resize_cache/iblock/784/1088_820_2/pf0n6i3qjwrqfmkxfvm0tmzryespft9s.jpeg
№ 196906
Total area: 63 m2
Bedrooms: 1
254 000 EUR+VAT
4 032 EUR/m2
https://dom.com.cy/upload/resize_cache/iblock/5e2/1088_820_2/b5iekwtq7338xnovk408cphyqs6foj90.jpeg
№ 196905
Total area: 62 m2
Bedrooms: 1
249 000 EUR+VAT
4 016 EUR/m2
https://dom.com.cy/upload/resize_cache/iblock/16a/1088_820_2/7ip7wjxd8njp49fw7xgyxx0n05isk44g.jpeg
№ 196904
Total area: 98 m2
Bedrooms: 2
362 000 EUR+VAT
3 694 EUR/m2
https://dom.com.cy/upload/resize_cache/iblock/b4d/1088_820_2/j3b268wrx568ka9xu8eu5ggkkvj3on2i.jpg
№ 196903
Total area: 99 m2
Bedrooms: 2
359 000 EUR+VAT
3 626 EUR/m2
https://dom.com.cy/upload/resize_cache/iblock/9e0/1088_820_2/9rzrg041fzr9aqipay47gqkxjhnq45d8.jpeg
№ 196902
Total area: 98 m2
Bedrooms: 2
356 500 EUR+VAT
3 638 EUR/m2
https://dom.com.cy/upload/resize_cache/iblock/5e2/1088_820_2/b5iekwtq7338xnovk408cphyqs6foj90.jpeg
№ 196901
Total area: 98 m2
Bedrooms: 2
356 500 EUR+VAT
3 638 EUR/m2
Add a comment
Leave a comment
Компания «Dom Real Estate» Контакты:
Адрес: Limassol, Cyprus,
Телефон:+357 25 212 212, Электронная почта: info@dom.com.cy