



City
Limassol
District
Agia Zoni
Updated
09.09.2021
Floors
5
Objects count
0
Bedrooms range
0 – 0
Complex area
3603 m²
Apartments area
0 – 0 m²
Distance to sea
2820 m
Materials
Complex newsDescription
Ultra modern high quality office building located in a prime commercial area (on Makedonias avenue), near all amenities and with easy access to the highway. This unique building is only 2min. away from the highway, 5min. from city center and the new marina and 10min. from the new casino of Limassol.
The architectural plans were designed by the famous architect office of Mr. Armeftis and the construction will be done with the highest standards and specifications and with the best quality materials.
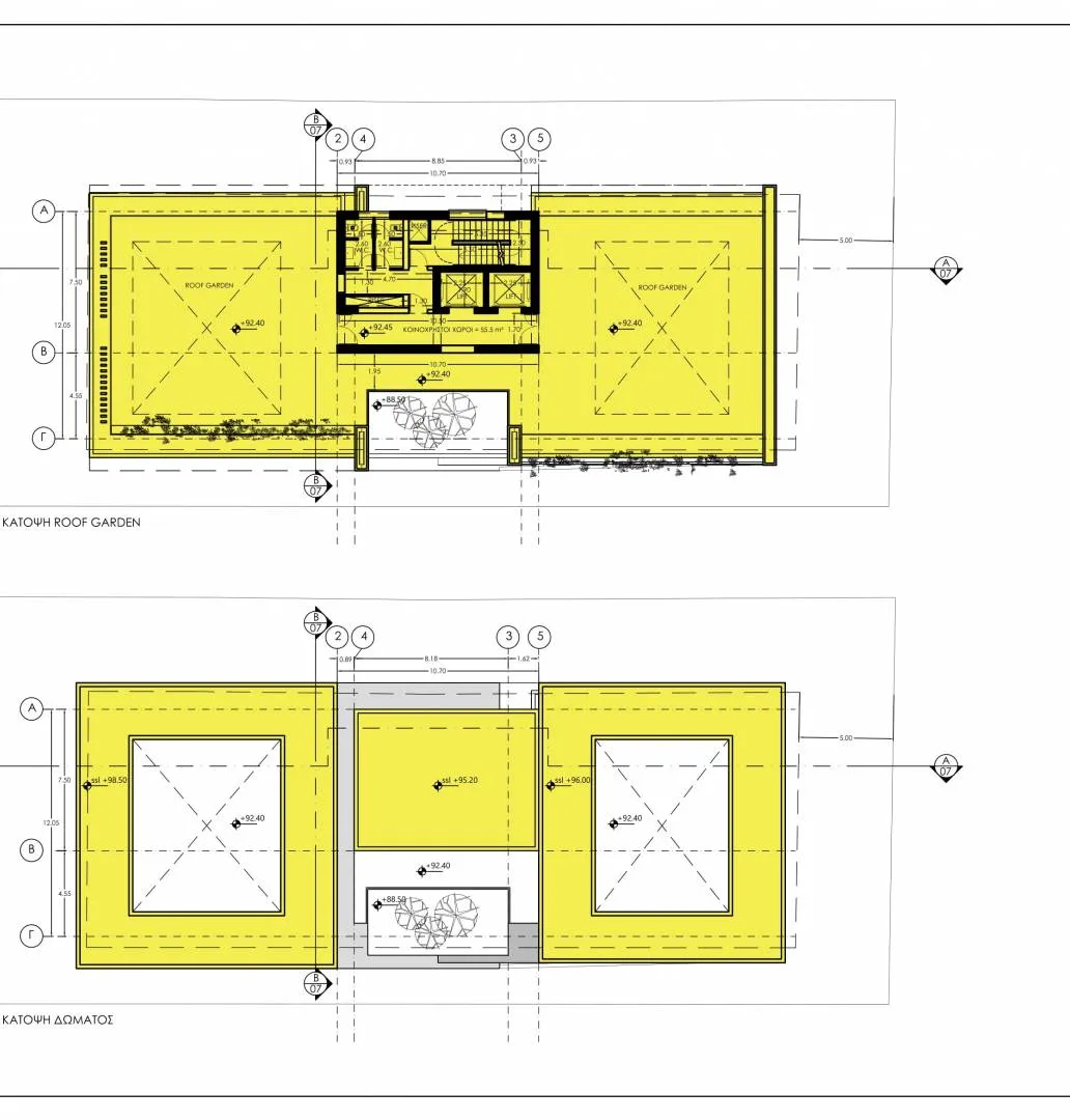
It consists of a big basement (parking area), ground level with more covered parking area and an impressive lobby with reception area and 2 lifts, mezzanine with common kitchen area and mechanical area, 5 floors of spacious open plan offices with big covered verandas and a great roof garden with amazing sea and city views.
- Covered office area: 1577m2 (5 floors)
- Covered verandas: 282m2 (5 floors)
- Roof garden: 395m2
- Ground floor: 124m2 (lobby, reception)
- Mezzanine: 300m2 (mechanical floor, common kitchen area)
- Basement: 925m2 (parking)
- Total covered area: 3603m2
- Total parking places: 42

Tatyana Kovalsky
+35725054788




Description
Ultra modern high quality office building located in a prime commercial area (on Makedonias avenue), near all amenities and with easy access to the highway. This unique building is only 2min. away from the highway, 5min. from city center and the new marina and 10min. from the new casino of Limassol.
The architectural plans were designed by the famous architect office of Mr. Armeftis and the construction will be done with the highest standards and specifications and with the best quality materials.
It consists of a big basement (parking area), ground level with more covered parking area and an impressive lobby with reception area and 2 lifts, mezzanine with common kitchen area and mechanical area, 5 floors of spacious open plan offices with big covered verandas and a great roof garden with amazing sea and city views.
- Covered office area: 1577m2 (5 floors)
- Covered verandas: 282m2 (5 floors)
- Roof garden: 395m2
- Ground floor: 124m2 (lobby, reception)
- Mezzanine: 300m2 (mechanical floor, common kitchen area)
- Basement: 925m2 (parking)
- Total covered area: 3603m2
- Total parking places: 42
City
Limassol
District
Agia Zoni
Updated
09.09.2021
Floors
5
Objects count
0
Bedrooms range
0 – 0
Complex area
3603 m²
Apartments area
0 – 0 m²
Distance to sea
2820 m
Materials
Complex news
Tatyana Kovalsky
+35725054788
No properties found for this complex