The Bookshop

Description:


The Bookshop is a historic listed building located in the Old Town Limassol area, Historical Center, Limassol. Previously, the city's first bookstore was located here, but today the facility is being carefully restored in order to restore it to its former splendor and architectural authenticity.

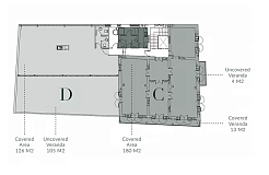
Once completed, the space will offer over 800 m2 of total floor space and will be located just a few minutes from the Limassol coast, combining a rich historical heritage with a prestigious location by the sea. Commercial real estate includes several premises. On the lower level there are units A and B: unit A with a covered area of 245 m2, unit B with a covered area of 155 m2. Units C and D are located on the upper level: unit C 180 m2, with a covered veranda of 13 m2 and an open veranda of 4 m2, unit D with a covered area of 126 m2 and an open veranda of 105 m2. The commercial facility includes 1 kitchen and 3 designated places for kitchens, 2 bathrooms and 3 designated places for bathrooms, the facility occupies 2 levels in the building. The property is under construction, with planned completion in June 2026.

Read more
City
Limassol
Updated
18.03.2026
Floors
2
Area of objects, m2
from 155 to 828
Distance to the sea, m
250
Cost of rent, EUR:
from 7 000 to 35 000
Learn more:
Svetlana Voronina
Objects
Table
List
https://dom.com.cy/upload/resize_cache/uf/1bf/1088_820_2/o47bchgn2i0ac4jd0wqeoxaudwh2agsd.jpeg
№ 203837
Total area: 632 m2
25 000 EUR
40 EUR/m2
https://dom.com.cy/upload/resize_cache/uf/a37/1088_820_2/yum1jy3w7e9x7kxy4jev91nwhgyt8j58.jpeg
№ 203836
Total area: 657 m2
28 000 EUR
43 EUR/m2
https://dom.com.cy/upload/resize_cache/uf/5b0/1088_820_2/662lsxik8ml2hakpflgpqc17hxvagsom.jpeg
№ 203835
Total area: 624 m2
30 000 EUR
48 EUR/m2
https://dom.com.cy/upload/resize_cache/uf/a37/1088_820_2/yum1jy3w7e9x7kxy4jev91nwhgyt8j58.jpeg
№ 203834
Total area: 484 m2
16 000 EUR
33 EUR/m2
https://dom.com.cy/upload/resize_cache/uf/5b0/1088_820_2/662lsxik8ml2hakpflgpqc17hxvagsom.jpeg
№ 203833
Total area: 377 m2
18 000 EUR
48 EUR/m2
https://dom.com.cy/upload/resize_cache/uf/1bf/1088_820_2/o47bchgn2i0ac4jd0wqeoxaudwh2agsd.jpeg
№ 203832
Total area: 231 m2
7 000 EUR
30 EUR/m2
https://dom.com.cy/upload/resize_cache/uf/a37/1088_820_2/yum1jy3w7e9x7kxy4jev91nwhgyt8j58.jpeg
№ 203831
Total area: 195 m2
10 000 EUR
51 EUR/m2
https://dom.com.cy/upload/resize_cache/uf/be5/1088_820_2/lezctrqoc27mr0p232m0z0zxizz0lipn.jpeg
№ 203830
Total area: 155 m2
9 000 EUR
58 EUR/m2
https://dom.com.cy/upload/resize_cache/uf/0e2/1088_820_2/0cuc3zo76qfeshi2bhcj29b7ev8ln8my.jpeg
№ 203828
Total area: 245 m2
14 000 EUR
57 EUR/m2
https://dom.com.cy/upload/resize_cache/uf/451/1088_820_2/9srelwl6ao9t8me1corzluc423g3y7de.jpeg
№ 201688
Total area: 400 m2
21 000 EUR
53 EUR/m2
https://dom.com.cy/upload/resize_cache/uf/5b0/1088_820_2/662lsxik8ml2hakpflgpqc17hxvagsom.jpeg
№ 201687
Total area: 828 m2
35 000 EUR
42 EUR/m2
Add a comment
Leave a comment
Компания «Dom Real Estate» Контакты:
Адрес: Limassol, Cyprus,
Телефон:+357 25 212 212, Электронная почта: info@dom.com.cy