The Cyprus Environment Ministry has issued a demolition permit for the Eva Hotel in the Oroklini district of Larnaca.
A new modern hotel complex will soon be built in its place.
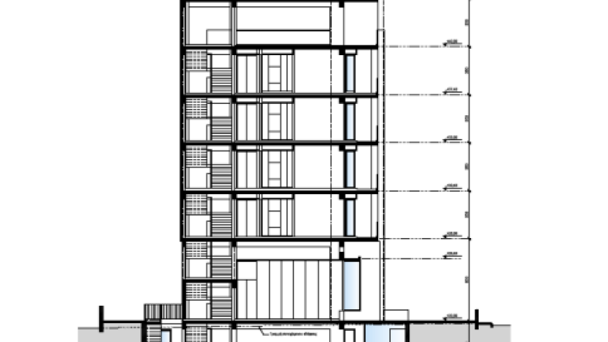
The project is owned by White Arches Tourist Enterprises Limited. According to the press release, the building, which will have a purely touristic purpose, will consist of a basement, five above-ground floors and a basement. The height of the hotel will be 26.5 metres. There will be a total of 44 comfortable rooms. Guest facilities will include swimming pools, 18 parking spaces, a dining area, a multi-purpose room, a gym, saunas and storage facilities.
Construction will begin immediately after the demolition of the old facility and will take about two years. The hotel will be ready to welcome its first guests in 2026. The total cost of the project is around 4 million euros.




The construction of the hotel will be an important milestone in the development of the region's tourism infrastructure.
Oroklini is a popular district of Larnaca, known for its beaches, picturesque nature and developed infrastructure. The new hotel complex, strategically located, will attract tourists by offering comfort, style and first class service. It is expected that the project will not only renew the region's hotel stock, but will also create new jobs and contribute to the development of Larnaca's economy.
