The company "TROPION" plans to build a 12 high-rise building with offices and shops in the center of Larnaca.
The homonymous building is the result of the company's partnership with the Church and aims through its operation to cover the development needs of the Wider Study Area.

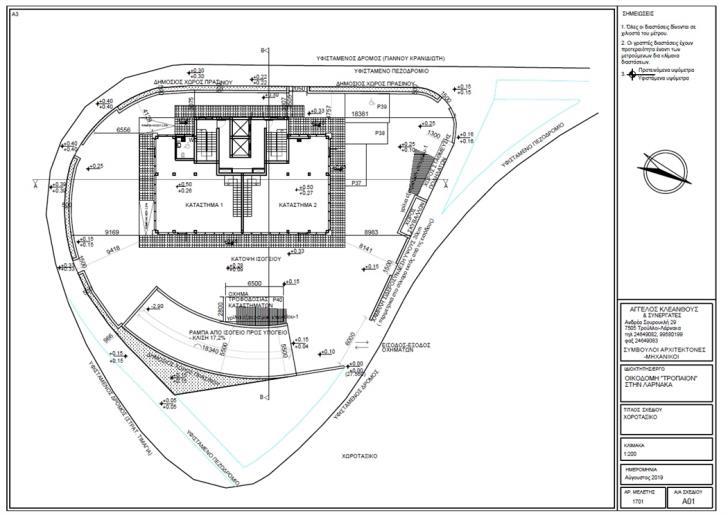
The "TROPION" is located within an urban area in the area of Sotiros, in Larnaca according to the Environmental Impact Assessment Study. The plot that will host the proposed project is located about 15km southwest of Larnaca Marina and east of Larnaca city center. The wider area is characterized by shops, restaurants and cafes, while it is located near the roundabout of the stadium "Famagusta Stadium Return".


"TROPION" concerns a multi-storey building with 12 floors and 2 underground parking spaces. The height of the building will reach about 60m from the ground floor and includes two shops and a total of 22 offices (two on each floor), storage space, two underground parking spaces (34 parking of which 4 for the disabled), common areas, mechanical installations and green spaces.
Southwest of the Proposed Project at a distance of 8km is located the Special Protection Zone and Place of Community Importance "Larnaca Saltworks" which belongs to the network "Nature 2000". The implementation of the Proposed Project is not expected to affect the protected area.
The total area of the plot that will host the Proposed Project amounts to 1180 m2.

The owner of the project is the company "TROPAION" with partners the Holy Temple of Agios Lazaros and the Monastery of Agios Georgios Kontos. As mentioned in the MEEP, the operation of the Proposed Project will further enrich the economic potential of the Wider Area and strengthen its social and economic character by creating offices and stores.
The total time for its completion and start-up is approximately 18 months.
Source: philenews
