



City
Limassol
District
Limassol Capital
Updated
20.04.2025
Floors
8
Energy class
A
Objects count
26
Bedrooms range
1 – 2
Apartments area
43 – 80 m²
Distance to sea
600 m
Purchase cost, EUR:
from 296 000 to 663 500
Materials
Complex newsDescription
New residential complex in Limassol, ideally located just 800 meters from the shopping area, 1.2 km from the beach and popular beach bars, as well as 1.4 km from the street with bars and restaurants. The project consists of two buildings and includes 88 modern apartments spread over 8 floors.
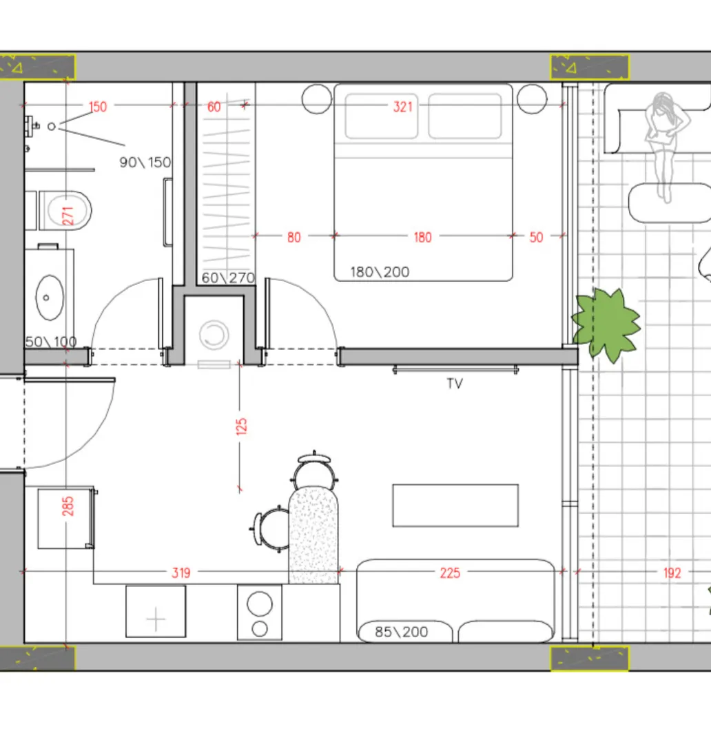
The complex has 68 one-bedroom apartments and 20 two-bedroom apartments ranging in size from 43 to 72 m2. All apartments are thought out to the smallest detail, with an emphasis on comfort and functionality, offering a high standard of living near the sea and all necessary urban infrastructure.
It offers residents a covered parking, a communal swimming pool, a modern fitness center, and a SPA area. For maximum convenience, two elevators have been installed in the buildings, as well as advanced engineering systems, including high-quality mechanical and electrical installations. This complex is an ideal combination of modern style, comfort and advantageous location, suitable for both permanent residence and investment purposes.

Yuliya Romanovich
+357 25 030 931




Description
New residential complex in Limassol, ideally located just 800 meters from the shopping area, 1.2 km from the beach and popular beach bars, as well as 1.4 km from the street with bars and restaurants. The project consists of two buildings and includes 88 modern apartments spread over 8 floors.
The complex has 68 one-bedroom apartments and 20 two-bedroom apartments ranging in size from 43 to 72 m2. All apartments are thought out to the smallest detail, with an emphasis on comfort and functionality, offering a high standard of living near the sea and all necessary urban infrastructure.
It offers residents a covered parking, a communal swimming pool, a modern fitness center, and a SPA area. For maximum convenience, two elevators have been installed in the buildings, as well as advanced engineering systems, including high-quality mechanical and electrical installations. This complex is an ideal combination of modern style, comfort and advantageous location, suitable for both permanent residence and investment purposes.
City
Limassol
District
Limassol Capital
Updated
20.04.2025
Floors
8
Energy class
A
Objects count
26
Bedrooms range
1 – 2
Apartments area
43 – 80 m²
Distance to sea
600 m
Purchase cost, EUR:
from 296 000 to 663 500
Materials
Complex news
Yuliya Romanovich
+357 25 030 931
No properties found for this complex