Serifou Office

Description:

The new office complex in Zakaki, Limassol, is an ultra-modern building designed for companies that value comfort, prestige and high standards of workspace. The complex is located in one of the best locations in Zakaki, close to key infrastructure facilities — a new casino, a port, Limassol's largest shopping center and convenient access to the motorway.

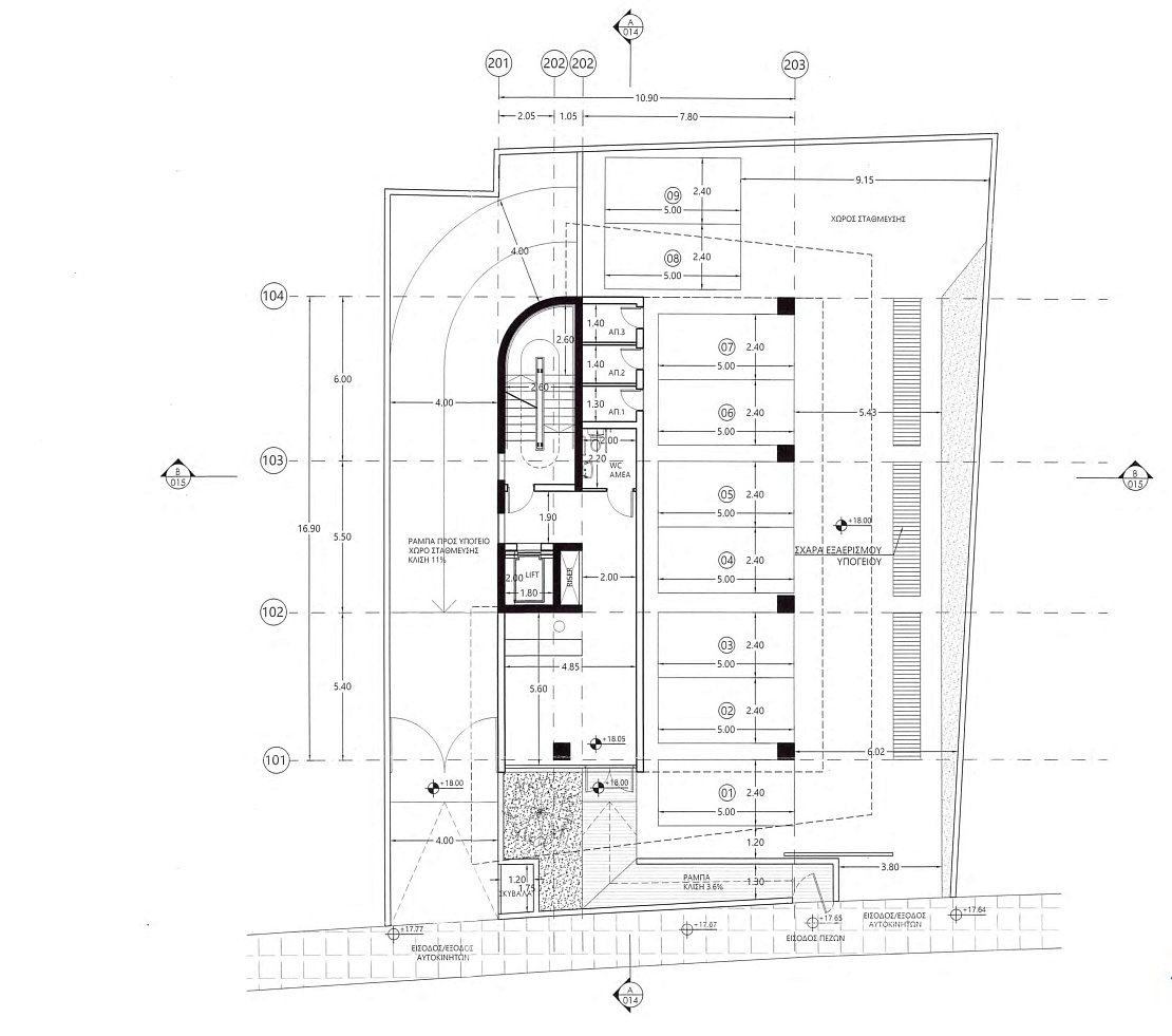
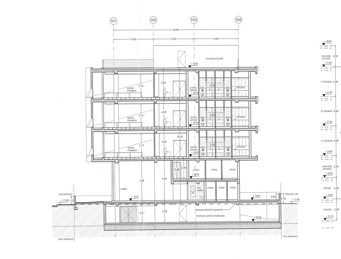
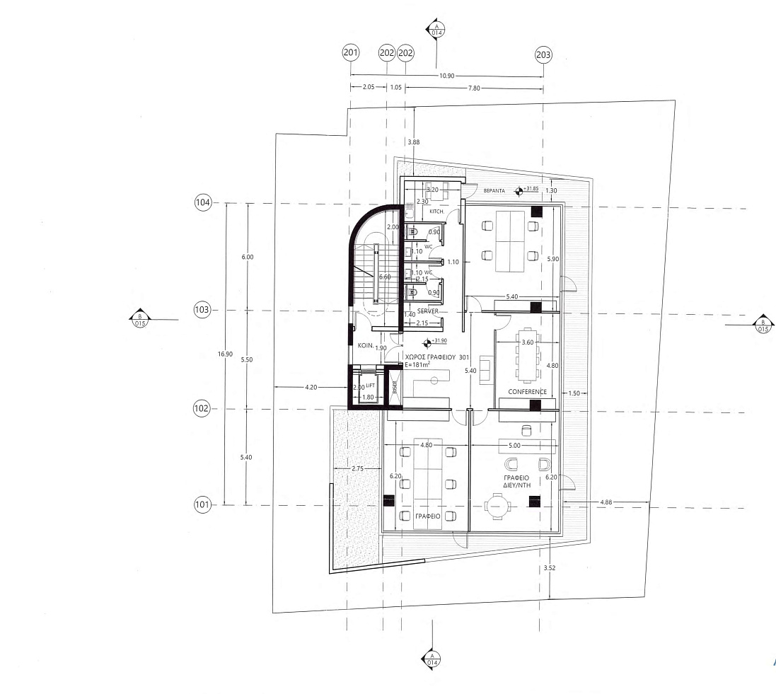
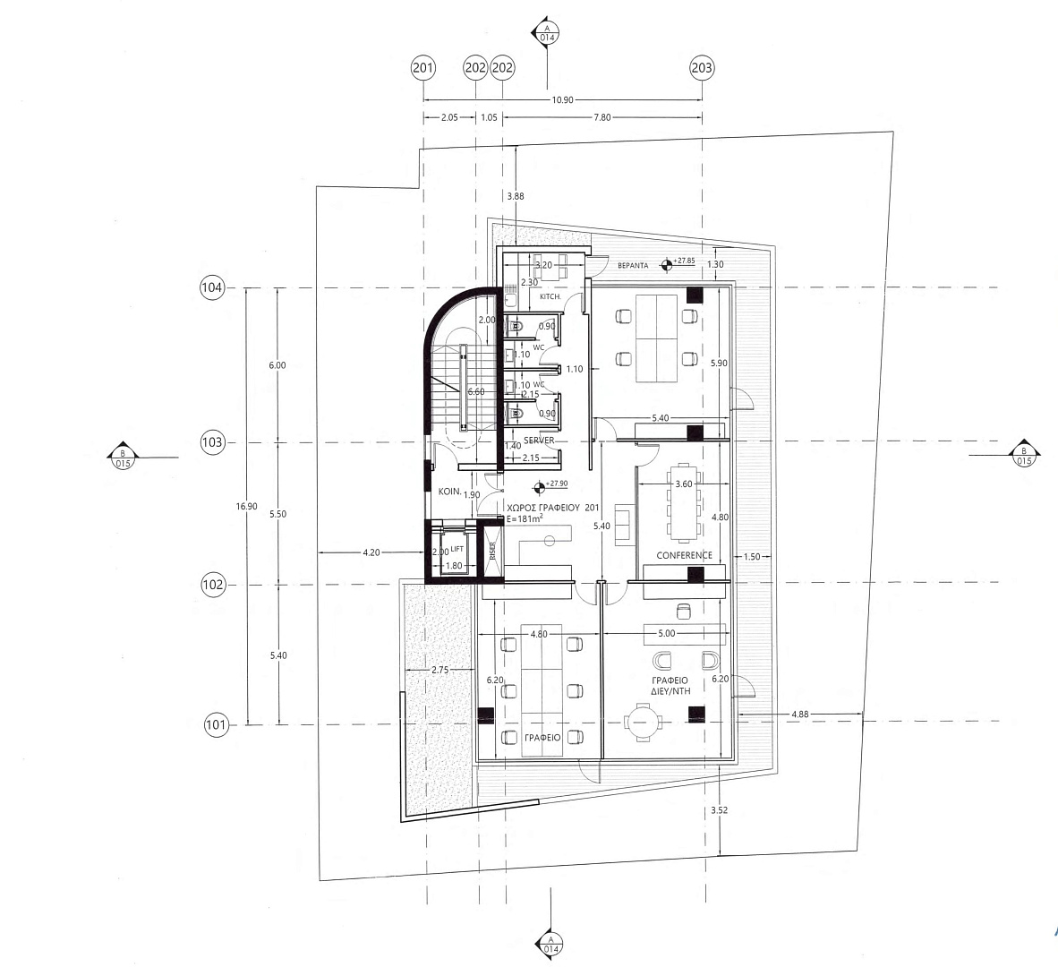
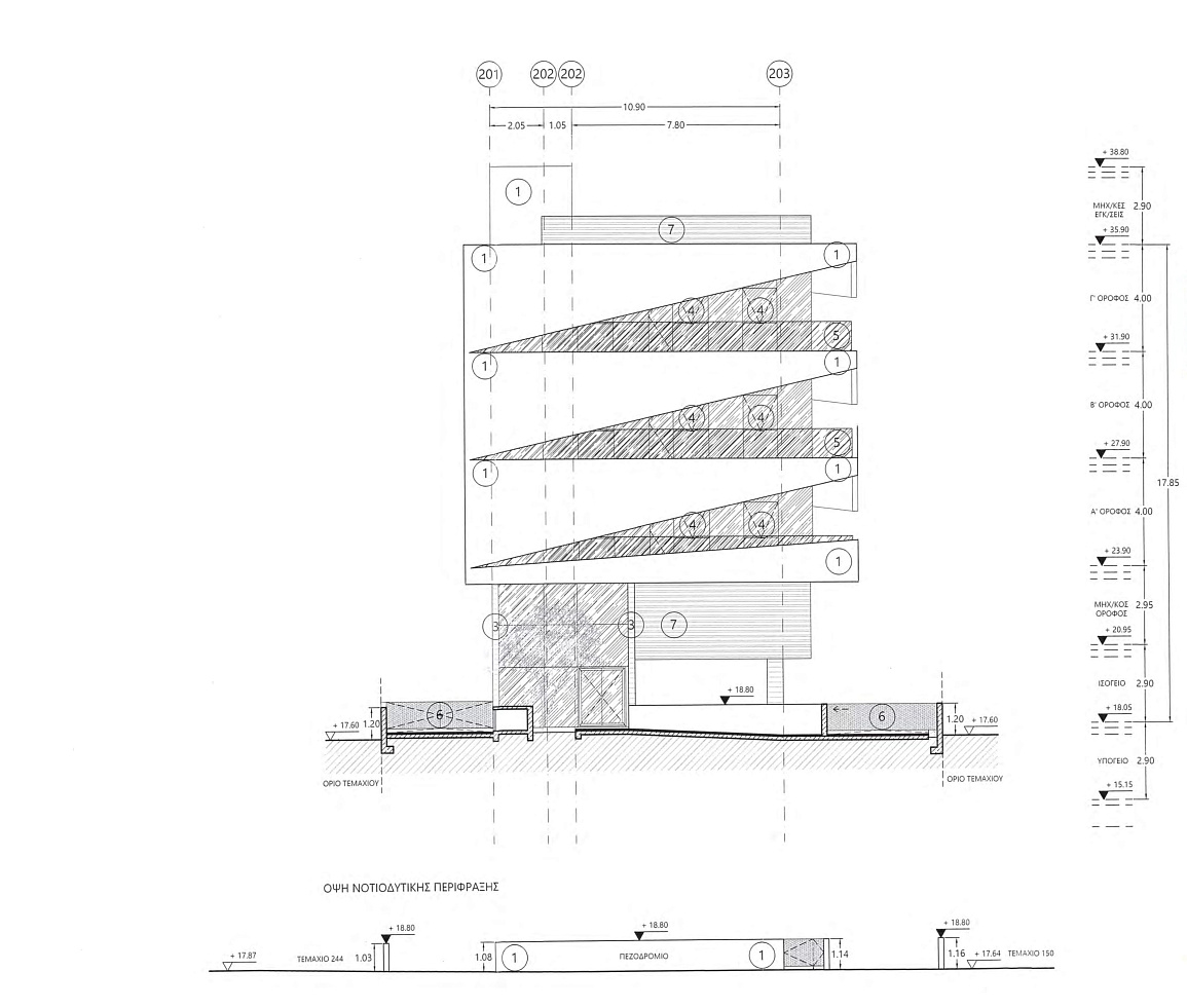
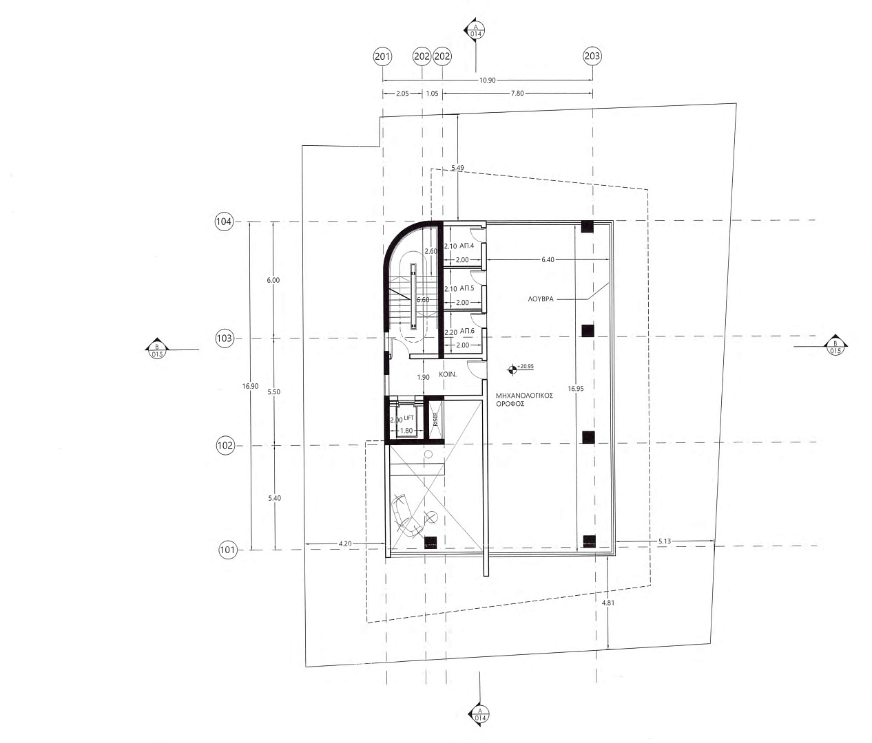
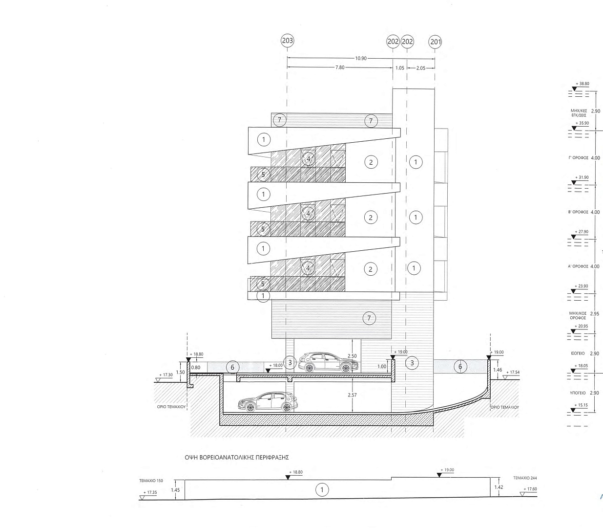
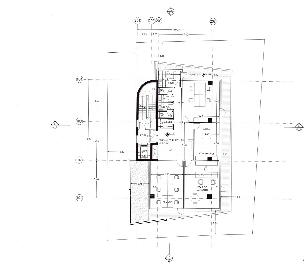
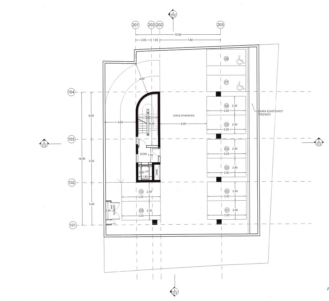
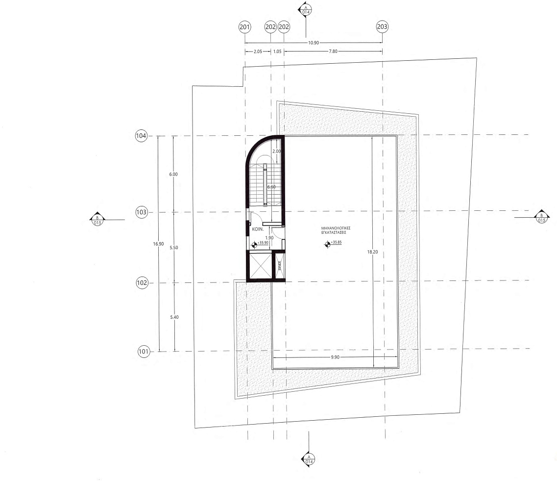
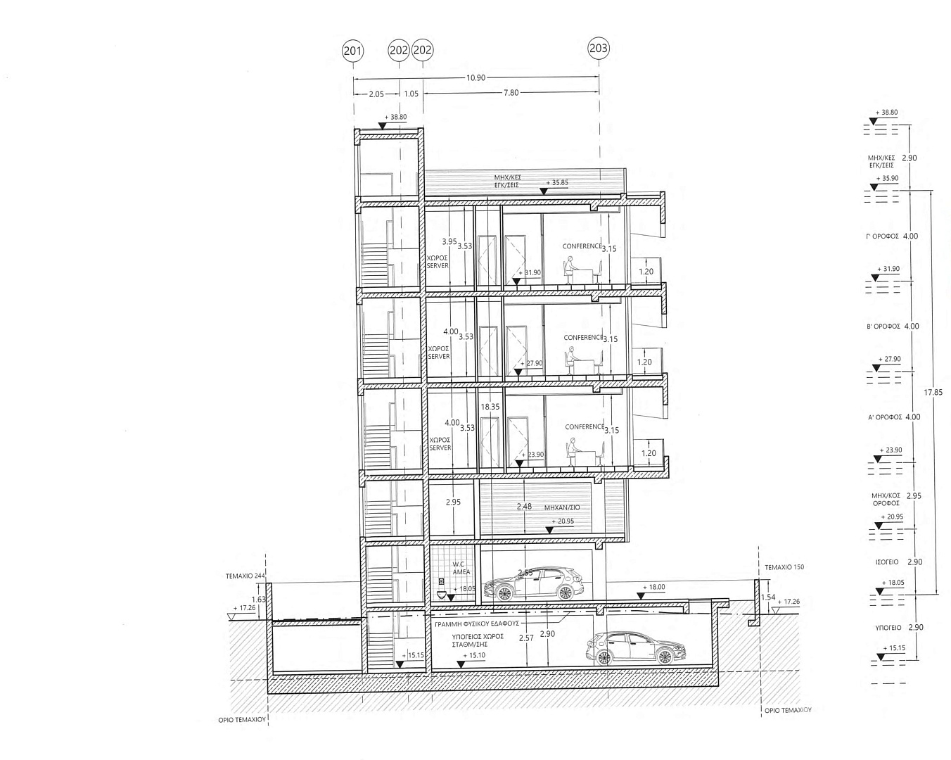
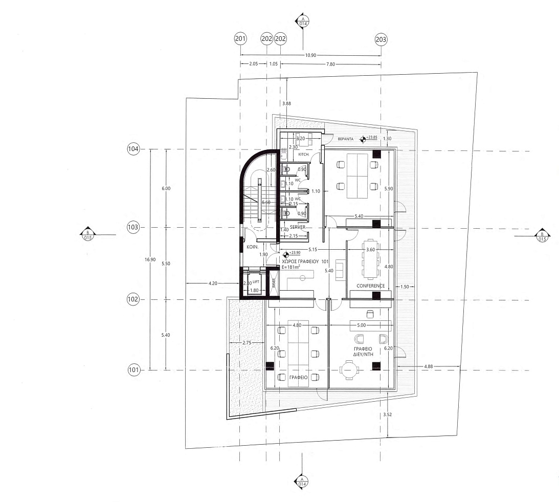
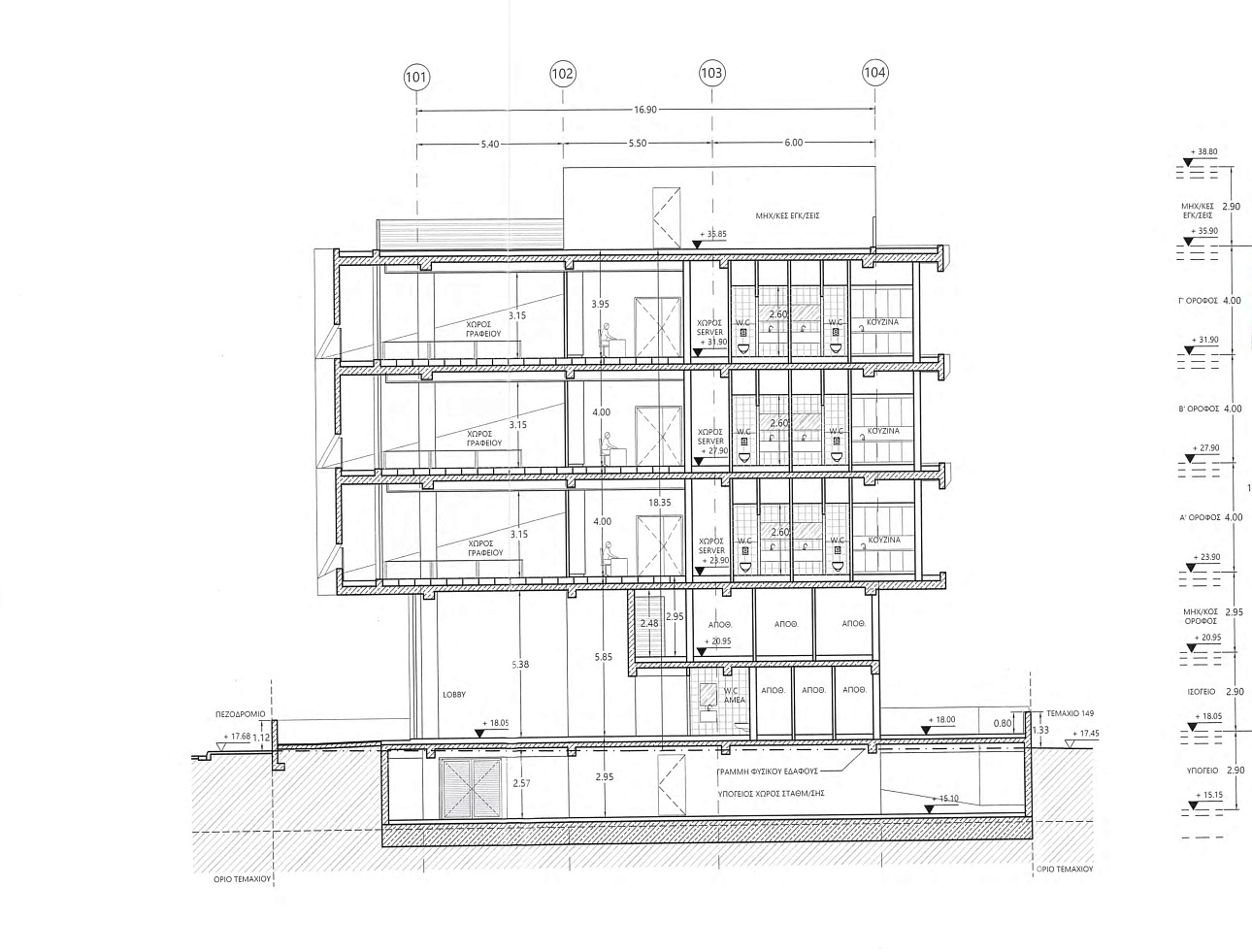
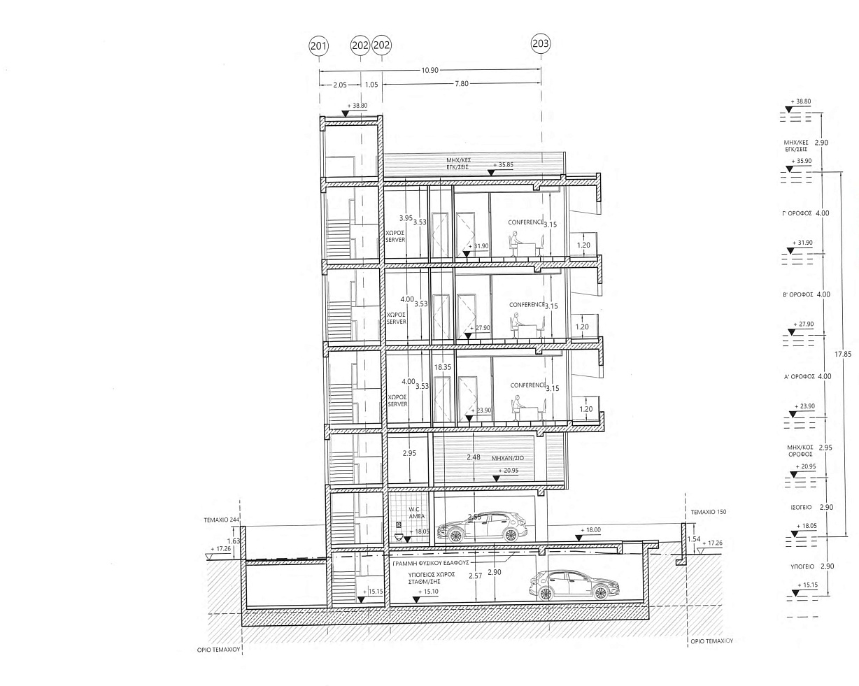
The building was designed according to the architectural plans of a famous architect and is being built using premium quality materials. The complex includes underground parking, a spacious lobby with a reception area, a technical floor and three levels of open-plan office space complemented by large covered verandas, which creates flexible and bright work spaces.

This office complex is ideal for companies seeking to emphasize their status, provide employees with comfortable conditions and get a favorable location with quick access to the main areas of the city. An excellent solution for those who are looking for a modern and functional office space in the rapidly developing Limassol area.

Read more
City
Limassol
Area
Zakaki
Updated
29.04.2026
Floors
3
Area of objects, m2
from 240 to 1290
Distance to the sea, m
910
Energy class
A
Cost of purchase, EUR:
from 1 075 000 to 3 400 000
Learn more:
Tatyana Kovalsky
Objects
Table
List
https://dom.com.cy/upload/resize_cache/uf/09a/1088_820_2/wnqhe6uuqeeoxxscf845ff3a0k6evthj.jpeg
№ 189090
Total area: 1290 m2
3 400 000 EUR+VAT
2 636 EUR/m2
https://dom.com.cy/upload/resize_cache/uf/871/1088_820_2/cg1qt6nsf6ns2621tzd5xwd7ofmhzvo0.jpeg
№ 189077
Total area: 240 m2
1 200 000 EUR+VAT
5 000 EUR/m2
https://dom.com.cy/upload/resize_cache/uf/01c/1088_820_2/xg9560i2kwreeeyitvu7odqmyx0kzgc0.jpeg
№ 189076
Total area: 240 m2
1 125 000 EUR+VAT
4 688 EUR/m2
https://dom.com.cy/upload/resize_cache/uf/3da/1088_820_2/y8eicxl89oaot4hstxx53lfsv2pym321.jpeg
№ 189039
Total area: 240 m2
1 075 000 EUR+VAT
4 479 EUR/m2
Add a comment
Leave a comment
Компания «Dom Real Estate» Контакты:
Адрес: Limassol, Cyprus,
Телефон:+357 25 212 212, Электронная почта: info@dom.com.cy