



City
Limassol
District
Linopetra
Updated
06.03.2023
Floors
4
Energy class
A
Objects count
1
Bedrooms range
0 – 0
Apartments area
1221 – 1221 m²
Distance to sea
600 m
Materials
Complex newsDescription
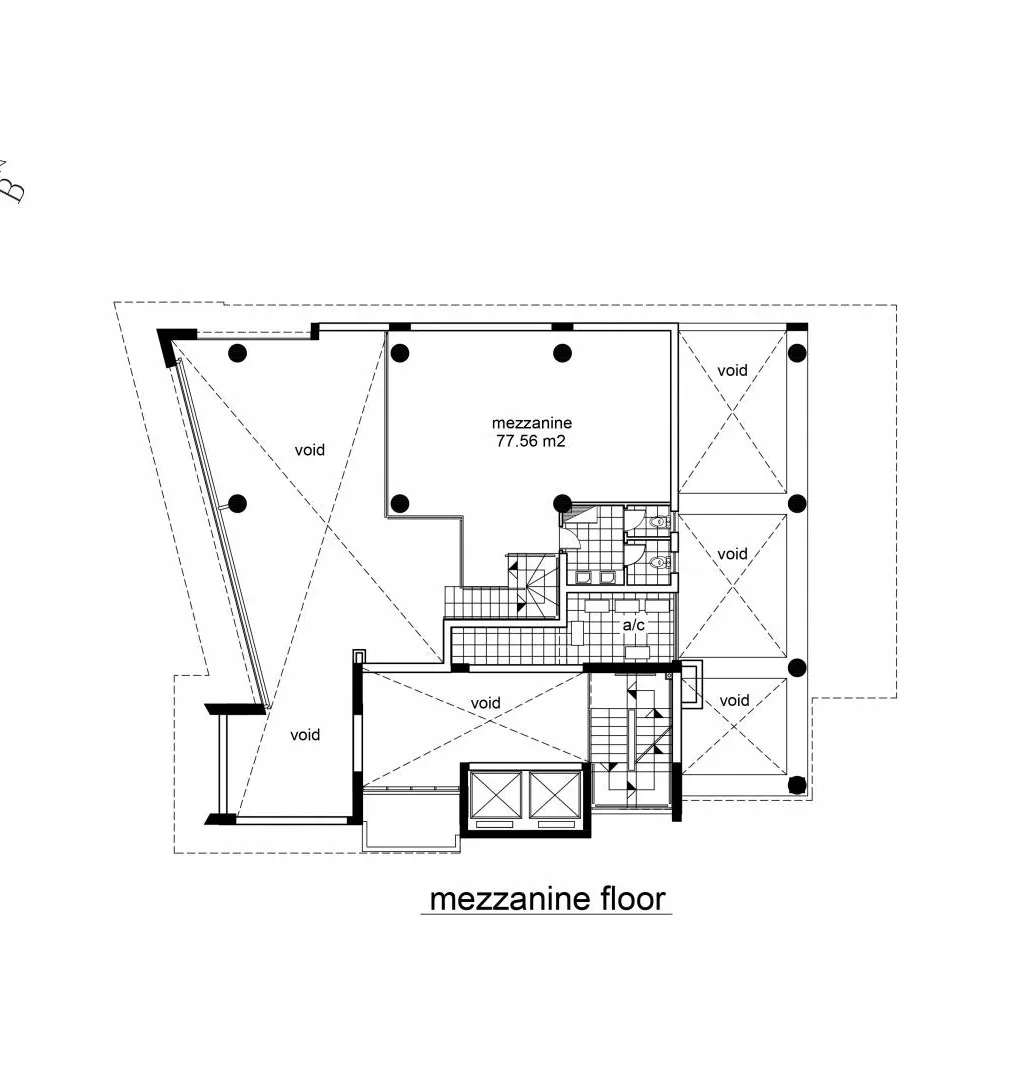
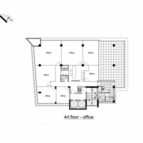
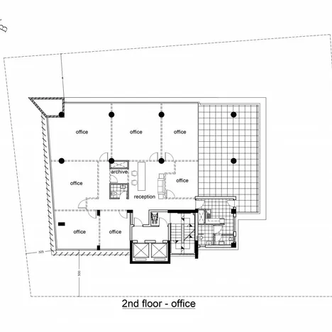
The project is located in the area of Linopetra, Limassol, with a quick exit to the highway and 1 minute drive from the sea. The project includes a shop on the ground floor with a mezzanine and a lobby at the entrance and 4 floors with a reception. Each floor is 259 m2 with a covered veranda of 72 m2. There are 7 offices and a lobby on each floor. Total area of 1221 m2, covered parking - 22 parking spaces

Aleksandr Chyrykal
+35725030643




Description
The project is located in the area of Linopetra, Limassol, with a quick exit to the highway and 1 minute drive from the sea. The project includes a shop on the ground floor with a mezzanine and a lobby at the entrance and 4 floors with a reception. Each floor is 259 m2 with a covered veranda of 72 m2. There are 7 offices and a lobby on each floor. Total area of 1221 m2, covered parking - 22 parking spaces
City
Limassol
District
Linopetra
Updated
06.03.2023
Floors
4
Energy class
A
Objects count
1
Bedrooms range
0 – 0
Apartments area
1221 – 1221 m²
Distance to sea
600 m
Materials
Complex news
Aleksandr Chyrykal
+35725030643
No properties found for this complex