



City
Nicosia
District
Engomi
Updated
29.03.2026
Floors
2
Energy class
A
Objects count
0
Bedrooms range
0 – 0
Apartments area
0 – 0 m²
Materials
Complex newsDescription
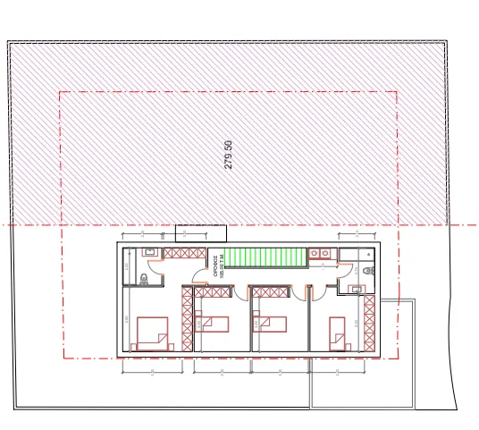
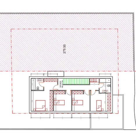
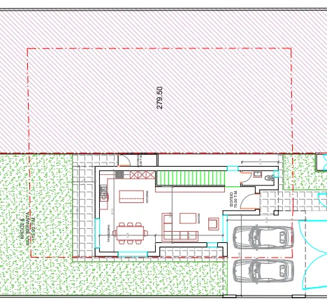
A new complex in the Engomi area. Reinforced concrete according to current regulations and plans, static and antiseismic studies. The exterior masonry is made of heat-insulating perforated bricks of excellent quality with a thickness of 33 cm. The ceilings will be lined and plastered. Externally, all surfaces are plastered in 3 layers. Kitchen cabinets will have a "soft closing" mechanism based on the original design. There is an oven, a gas stove, a deodorizer, a refrigerator and a dishwasher. All exterior doors and windows are made of MUSKITA heat-insulating aluminum frames. All bathrooms and toilets will be equipped with high-quality plumbing. Energy efficiency A.
DOM Real Estate
+357 22 030 670




Description
A new complex in the Engomi area. Reinforced concrete according to current regulations and plans, static and antiseismic studies. The exterior masonry is made of heat-insulating perforated bricks of excellent quality with a thickness of 33 cm. The ceilings will be lined and plastered. Externally, all surfaces are plastered in 3 layers. Kitchen cabinets will have a "soft closing" mechanism based on the original design. There is an oven, a gas stove, a deodorizer, a refrigerator and a dishwasher. All exterior doors and windows are made of MUSKITA heat-insulating aluminum frames. All bathrooms and toilets will be equipped with high-quality plumbing. Energy efficiency A.
City
Nicosia
District
Engomi
Updated
29.03.2026
Floors
2
Energy class
A
Objects count
0
Bedrooms range
0 – 0
Apartments area
0 – 0 m²
Materials
Complex newsDOM Real Estate
+357 22 030 670
No properties found for this complex