FC260 Theatro Houses

Description:

A new residential complex of houses in the area of Aglantzia, Nicosia.

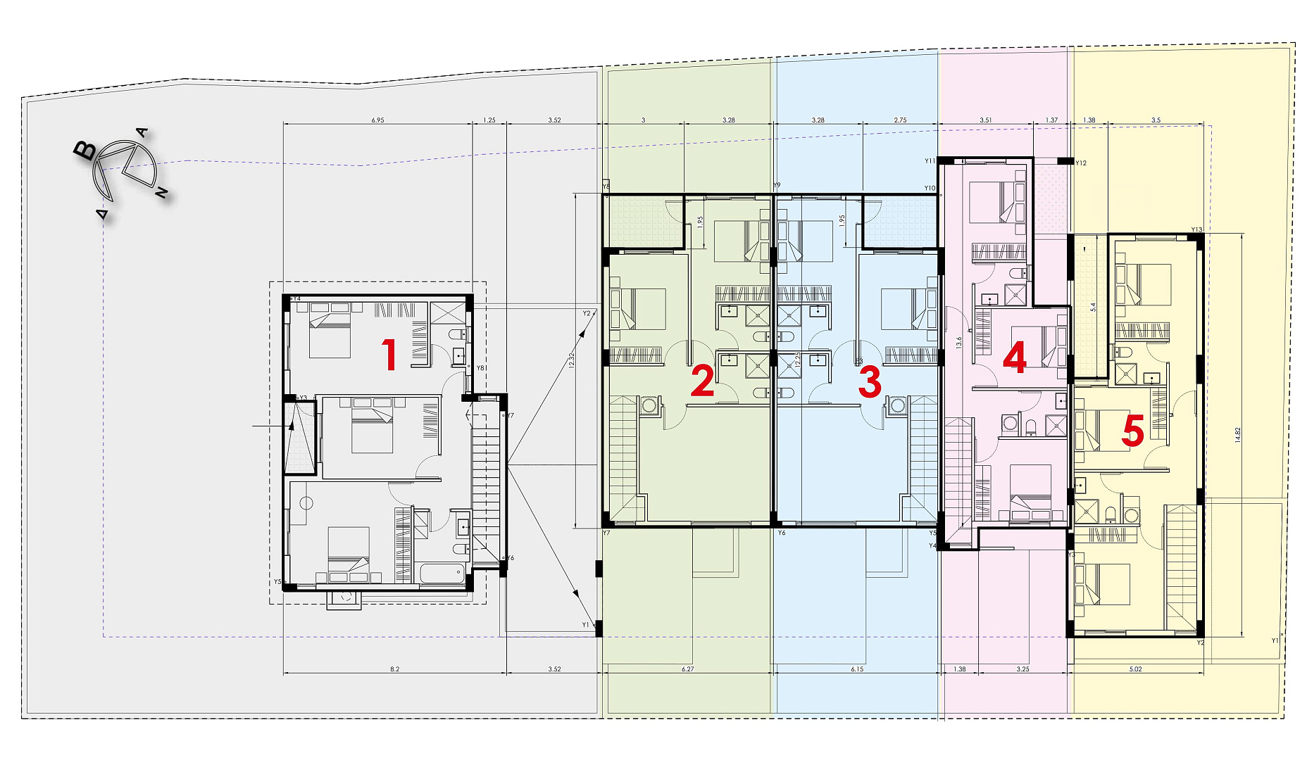
A modern project combining several houses made in a single architectural style. The complex is designed with high standards of quality, energy efficiency and comfort in mind. The territory is characterized by a well-thought-out organization: convenient access roads, parking spaces, green areas and a safe environment for family living.

Each house of the complex is built using an antiseismic reinforced concrete frame and external thermal insulation, which ensures high energy efficiency and a comfortable microclimate at any time of the year. The complex provides modern engineering systems, solar water heating and high-quality finishing materials.

Aglantzia area is famous for its developed infrastructure, proximity to the center of Nicosia, parks, educational institutions, sports facilities and everything necessary for a comfortable and peaceful life.

Read more
City
Nicosia
Area
Aglantzia
Updated
18.03.2026
Floors
2
Number of bedrooms
from 3 to 3
Area of objects, m2
from 123 to 150
Cost of purchase, EUR:
from 290 000 to 320 000
Learn more:
Alexandra Kastania
Objects
Table
List
https://dom.com.cy/upload/resize_cache/uf/02e/1088_820_2/b0afj7gwtibfs9bi2dfrlqu8zp3nz0yz.jpeg
№ 191129
Near Akadimias Park.
Total area: 142 m2
Bedrooms: 3
Plot Size: 200 m2
320 000 EUR+VAT
2 254 EUR/m2
https://dom.com.cy/upload/resize_cache/uf/50b/1088_820_2/3w922532ejgjoa6lgum2zikpyxle3idd.jpg
№ 191128
Total area: 123 m2
Bedrooms: 3
Plot Size: 117 m2
290 000 EUR+VAT
2 358 EUR/m2
https://dom.com.cy/upload/resize_cache/uf/a3b/1088_820_2/h8z00e9440d93hply5e8f7i10cks0bxf.jpg
№ 191127
Total area: 150 m2
Bedrooms: 3
Plot Size: 150 m2
315 000 EUR+VAT
2 100 EUR/m2
https://dom.com.cy/upload/resize_cache/uf/02e/1088_820_2/b0afj7gwtibfs9bi2dfrlqu8zp3nz0yz.jpeg
№ 191112
Total area: 150 m2
Bedrooms: 3
Plot Size: 151 m2
315 000 EUR+VAT
2 100 EUR/m2
Add a comment
Leave a comment
Компания «Dom Real Estate» Контакты:
Адрес: Limassol, Cyprus,
Телефон:+357 25 212 212, Электронная почта: info@dom.com.cy