Evanthia Residences

Description:

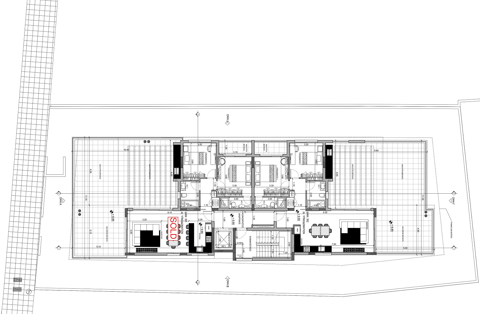
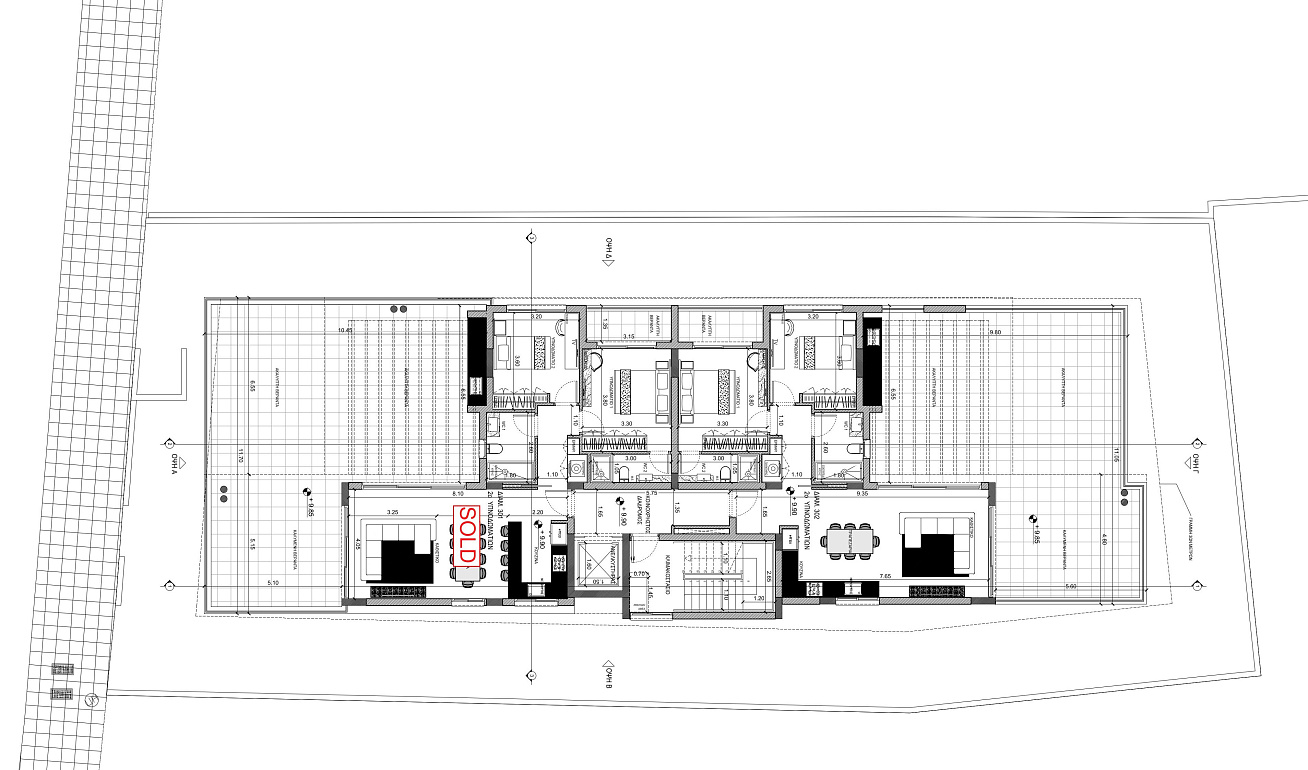
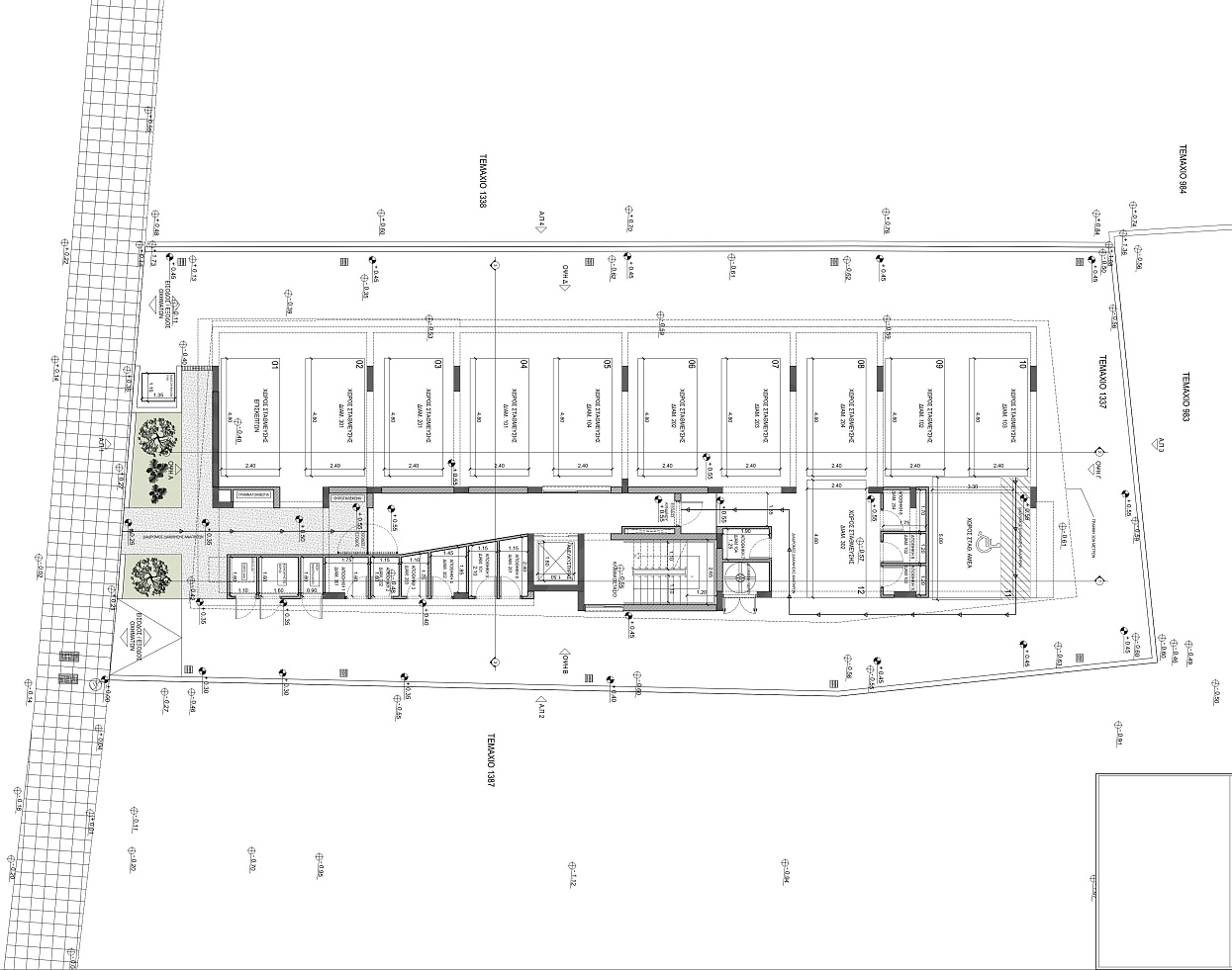
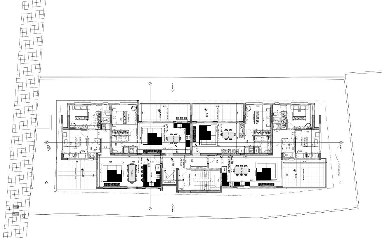
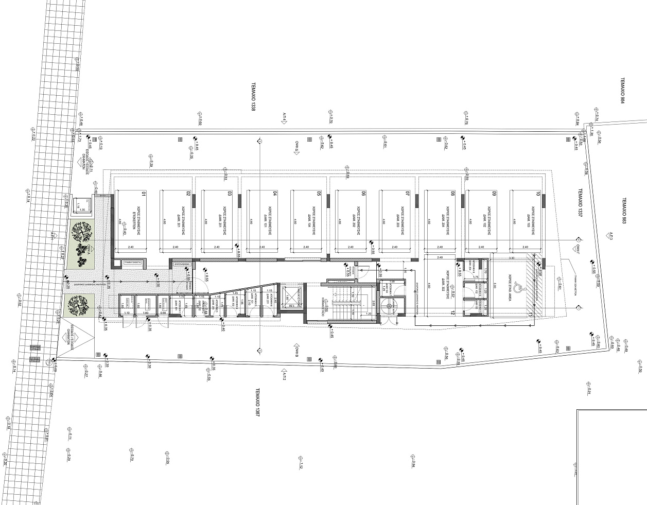
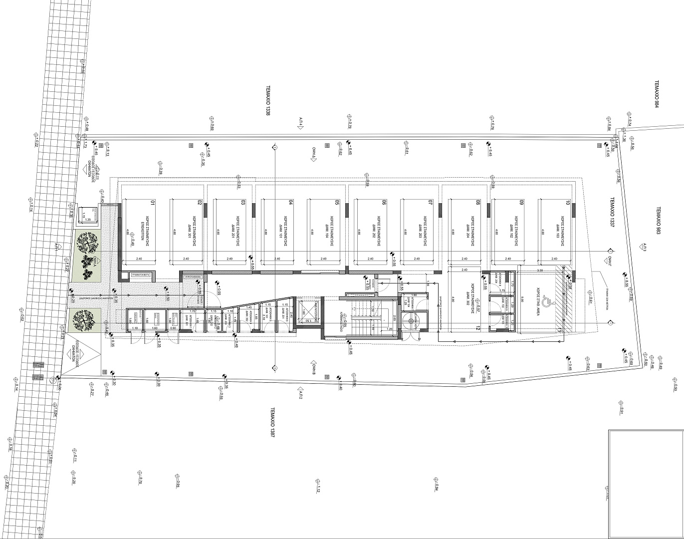
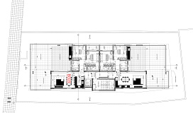
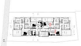
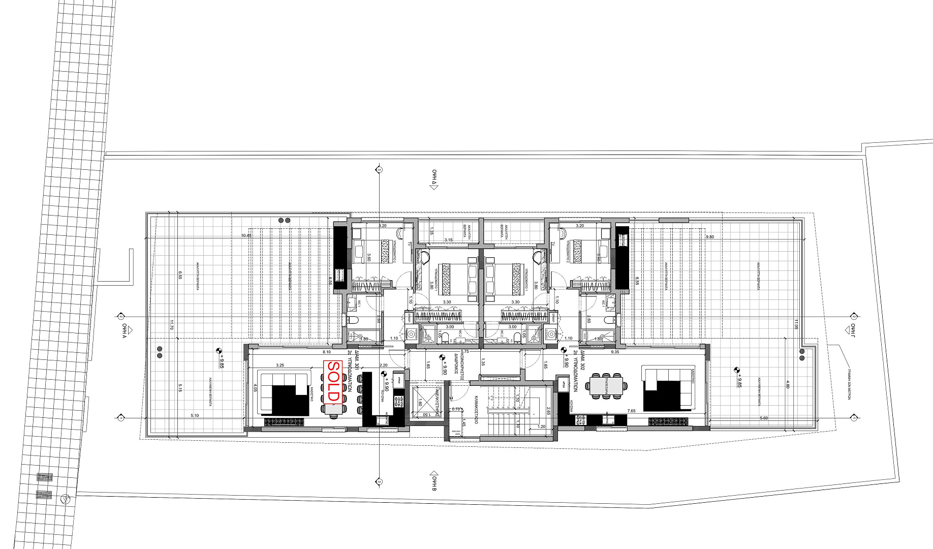
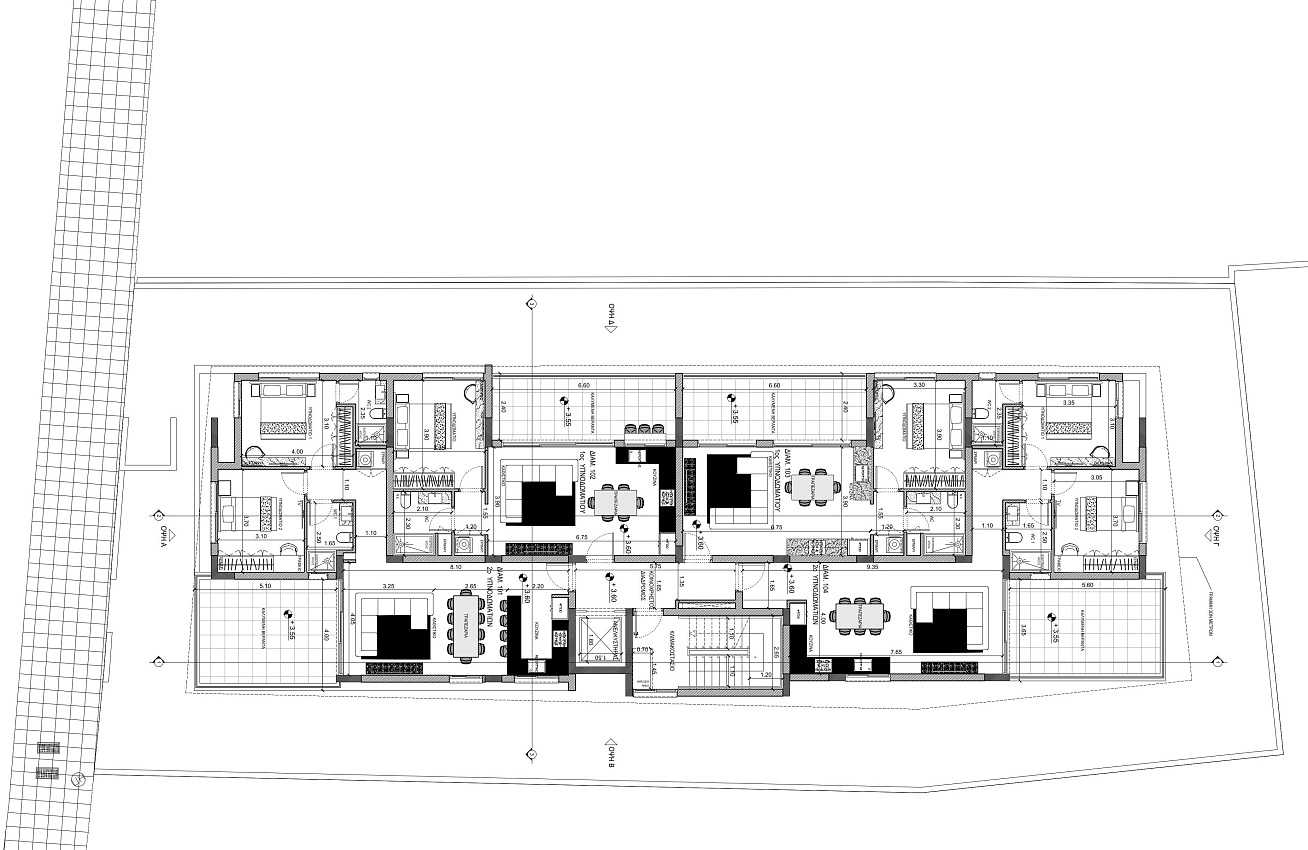
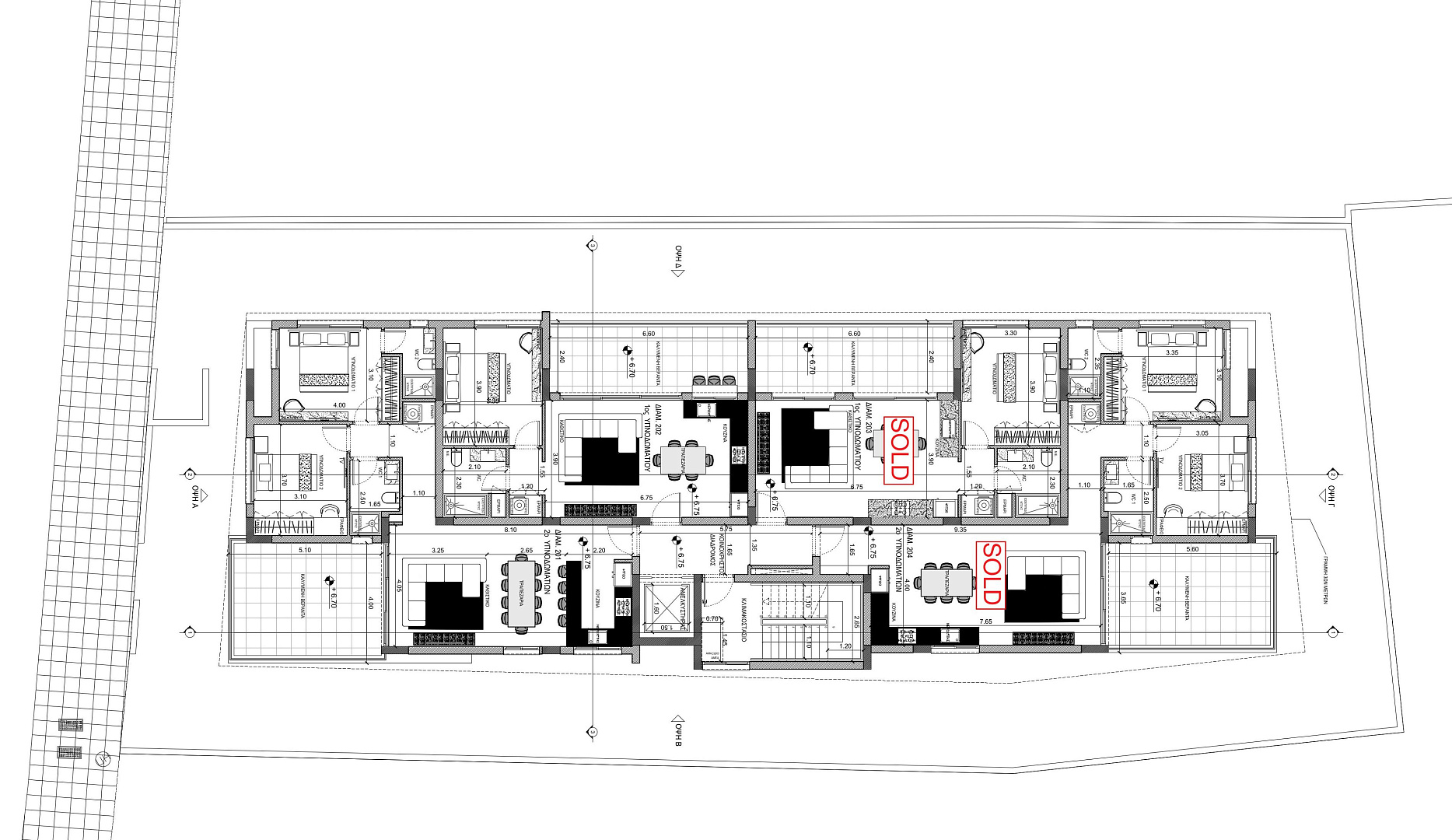
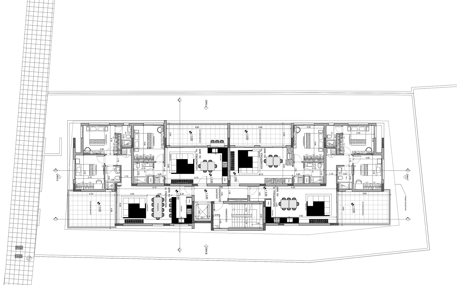
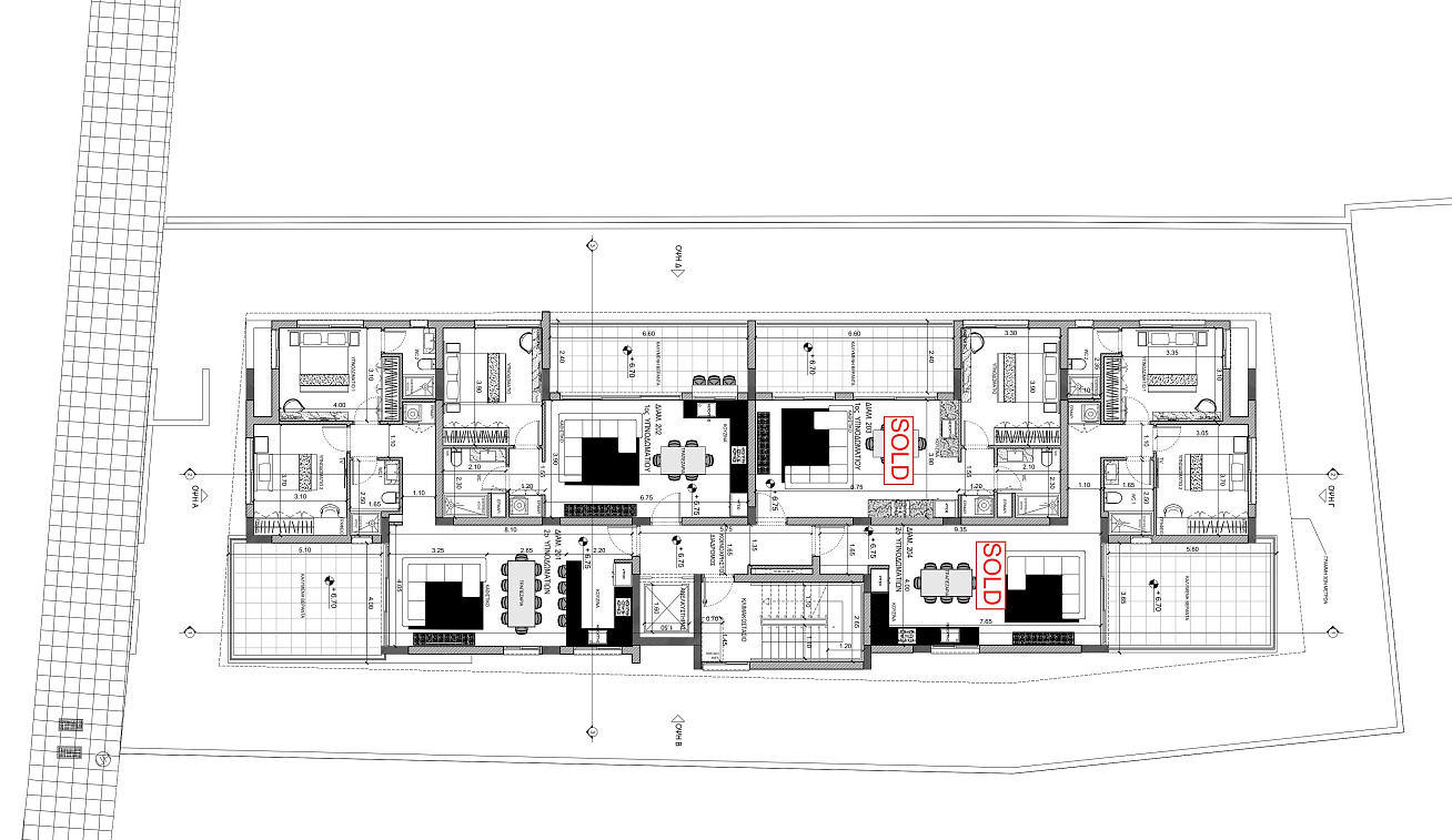
A new residential complex in Lakatamia, Nicosia, is located in a modern and well-maintained area with convenient access to urban infrastructure. The project was implemented using high-quality materials and modern construction technologies that ensure a high level of comfort and energy efficiency.

The building is made of reinforced concrete construction in compliance with antiseismic standards and is equipped with an external thermal insulation system that provides a high level of heat and sound insulation. The complex has modern aluminum MUSKITA double-glazed window systems that guarantee energy efficiency and comfort of living.

The apartments are distinguished by high-quality finishes and modern interior solutions, including ceramic floor coverings, kitchens with granite countertops, built-in wardrobes and modern plumbing. The entrance doors are equipped with a security system that provides additional protection and reliability.

This complex is a modern residential project combining construction quality, functionality and convenient location, which makes it attractive for both residential and investment purposes.

Read more
City
Nicosia
Area
Lakatameia
Updated
29.04.2026
Floors
3
Energy class
A
Learn more:
Vitaly Gutsal
Objects
Table
List
Add a comment
Leave a comment
Компания «Dom Real Estate» Контакты:
Адрес: Limassol, Cyprus,
Телефон:+357 25 212 212, Электронная почта: info@dom.com.cy