



City
Nicosia
District
Agios Dometios
Updated
29.03.2026
Floors
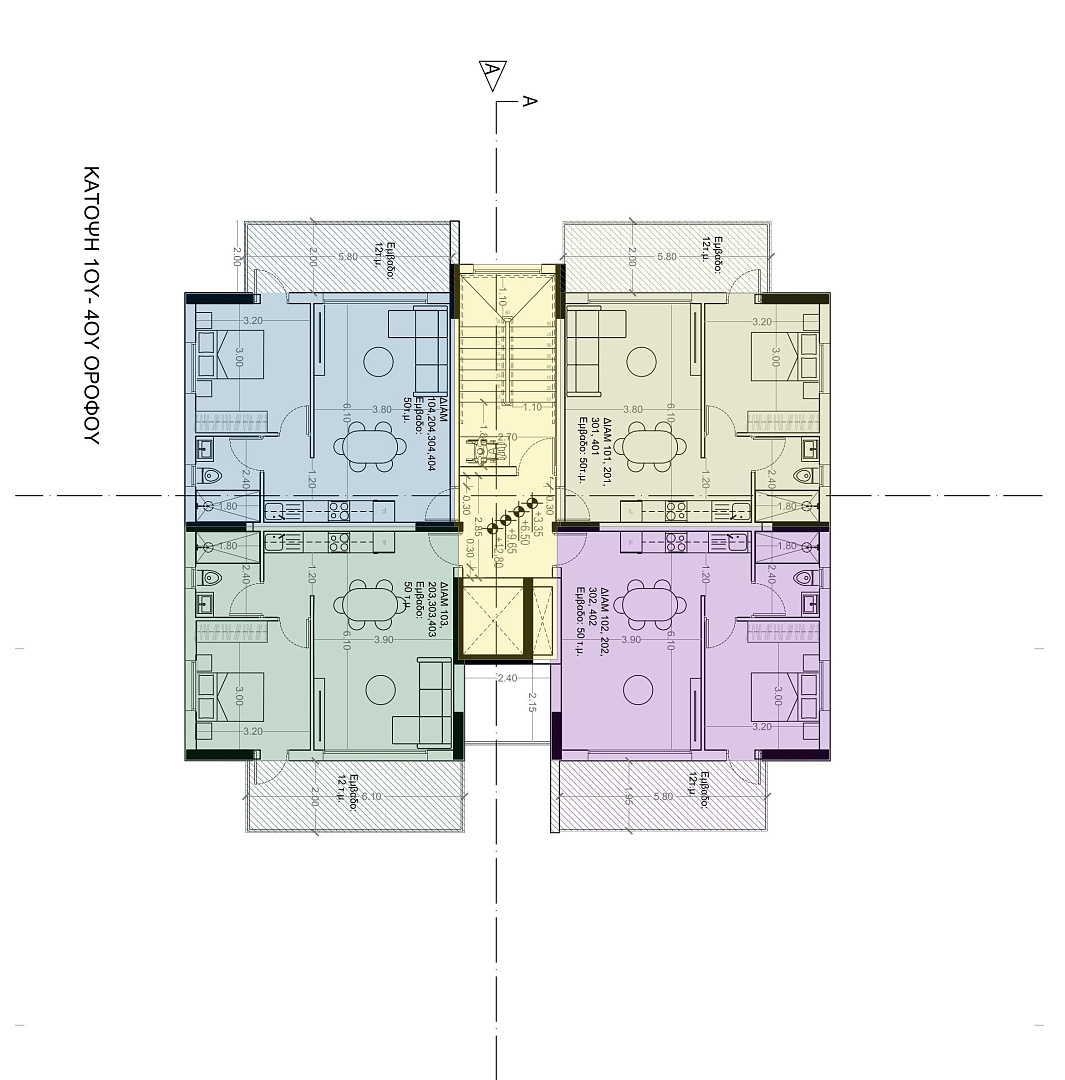
5
Energy class
A
Objects count
7
Bedrooms range
1 – 2
Apartments area
62 – 124 m²
Purchase cost, EUR:
from 140 000 to 250 000
Materials
Complex newsDescription
The new residential complex, located in the area of Agios Dometios, Nicosia, is located in a well-maintained residential area with convenient access to urban infrastructure. The project is at the design stage, which provides an opportunity to purchase real estate at an early stage of construction on favorable terms.
The complex is made in a modern architectural style and is designed with an emphasis on comfort, functionality and energy efficiency. The apartments feature bright and spacious layouts, covered verandas and high-quality finishes. The building has an elevator and an internal staircase, providing convenience for everyday living.
The residential complex is equipped with modern engineering systems, including the installation of LG air conditioners, modern electrical equipment, video intercom, solar water heater and thermal insulation facade system. The building has a Class A energy efficiency certificate, which guarantees low energy consumption and a high level of comfort for residents.
The location of the complex provides quick and convenient access to the University of Nicosia, as well as to various urban infrastructure facilities, including shops, services and transport interchanges. This project is an excellent opportunity for both comfortable living and long-term investment in one of the sought-after areas of Nicosia.
DOM Real Estate
+357 22 030 670




Description
The new residential complex, located in the area of Agios Dometios, Nicosia, is located in a well-maintained residential area with convenient access to urban infrastructure. The project is at the design stage, which provides an opportunity to purchase real estate at an early stage of construction on favorable terms.
The complex is made in a modern architectural style and is designed with an emphasis on comfort, functionality and energy efficiency. The apartments feature bright and spacious layouts, covered verandas and high-quality finishes. The building has an elevator and an internal staircase, providing convenience for everyday living.
The residential complex is equipped with modern engineering systems, including the installation of LG air conditioners, modern electrical equipment, video intercom, solar water heater and thermal insulation facade system. The building has a Class A energy efficiency certificate, which guarantees low energy consumption and a high level of comfort for residents.
The location of the complex provides quick and convenient access to the University of Nicosia, as well as to various urban infrastructure facilities, including shops, services and transport interchanges. This project is an excellent opportunity for both comfortable living and long-term investment in one of the sought-after areas of Nicosia.
City
Nicosia
District
Agios Dometios
Updated
29.03.2026
Floors
5
Energy class
A
Objects count
7
Bedrooms range
1 – 2
Apartments area
62 – 124 m²
Purchase cost, EUR:
from 140 000 to 250 000
Materials
Complex newsDOM Real Estate
+357 22 030 670
No properties found for this complex